
Basingstoke, Hampshire, RG24

- PROPERTY TYPE
End of Terrace
- BEDROOMS
2
- BATHROOMS
1
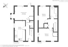
- SIZE
770 sq ft
72 sq m
- TENUREDescribes how you own a property. There are different types of tenure - freehold, leasehold, and commonhold.Read more about tenure in our glossary page.
Freehold
Key features
- Two Double Bedrooms
- Allocated Parking On Driveway
- Private South-East Facing Garden
- Kitchen / Diner
- Lounge With Door Into Garden
- W/C and Family Bathroom
- Cul De Sac Location
- Freehold
Description
This is this well presented spacious two bedroom end of terrace property which offers a kitchen/diner and separate lounge with double doors into garden it also has one allocated parking space directly in front of the house.
Property Details
The ground floor of this well-presented property features a bright and spacious lounge with direct access to the rear garden, providing the perfect space for relaxing or entertaining. The modern kitchen/diner is fitted with contemporary units and ample workspace, offering an ideal setting for family meals or hosting guests. A convenient downstairs WC and a welcoming hallway complete the ground floor layout.
Upstairs, the property boasts two generously sized double bedrooms, one of which benefits from a built-in wardrobe, offering excellent storage solutions. The first floor also includes a landing area, an airing cupboard, and a beautifully updated family bathroom, finished to a high standard with modern fittings. Additional storage is available via a fully boarded loft, ideal for keeping belongings neatly out of sight.
The gross internal floor area is 72.5sqm/780 square feet. To the rear of the property is a private garden with side gate access. The allocated parking space is on the drive directly in the front of the property.
Located perfectly for the M3, A33 for Reading, the M4, and the A339 for Newbury/Alton. Perfectly located for Chineham Business Park, Chineham Shopping Centre, Festival Place and Basingstoke Train Station which can all be reached by foot, vehicle or public transport.
Local parks and woodland walks are all within a 10 minute walk which is ideal for families and/or pet owners. The property is within short walking distance of highly rated nursery, primary and secondary schools. It is also a short walk to Basingstoke Train station which goes directly to Reading and Waterloo, you could be in Central London within an hour.
Brochures
More details from Chancellors- COUNCIL TAXA payment made to your local authority in order to pay for local services like schools, libraries, and refuse collection. The amount you pay depends on the value of the property.Read more about council Tax in our glossary page.
- Band: C
- PARKINGDetails of how and where vehicles can be parked, and any associated costs.Read more about parking in our glossary page.
- Off street
- GARDENA property has access to an outdoor space, which could be private or shared.
- Private garden
- ACCESSIBILITYHow a property has been adapted to meet the needs of vulnerable or disabled individuals.Read more about accessibility in our glossary page.
- Ask agent
Basingstoke, Hampshire, RG24
Add an important place to see how long it'd take to get there from our property listings.
__mins driving to your place
Explore area BETA
Basingstoke
Get to know this area with AI-generated guides about local green spaces, transport links, restaurants and more.
Get an instant, personalised result:
- Show sellers you’re serious
- Secure viewings faster with agents
- No impact on your credit score
Your mortgage
Notes
Staying secure when looking for property
Ensure you're up to date with our latest advice on how to avoid fraud or scams when looking for property online.
Visit our security centre to find out moreDisclaimer - Property reference 5852560. The information displayed about this property comprises a property advertisement. Rightmove.co.uk makes no warranty as to the accuracy or completeness of the advertisement or any linked or associated information, and Rightmove has no control over the content. This property advertisement does not constitute property particulars. The information is provided and maintained by Chancellors, Basingstoke. Please contact the selling agent or developer directly to obtain any information which may be available under the terms of The Energy Performance of Buildings (Certificates and Inspections) (England and Wales) Regulations 2007 or the Home Report if in relation to a residential property in Scotland.
*This is the average speed from the provider with the fastest broadband package available at this postcode. The average speed displayed is based on the download speeds of at least 50% of customers at peak time (8pm to 10pm). Fibre/cable services at the postcode are subject to availability and may differ between properties within a postcode. Speeds can be affected by a range of technical and environmental factors. The speed at the property may be lower than that listed above. You can check the estimated speed and confirm availability to a property prior to purchasing on the broadband provider's website. Providers may increase charges. The information is provided and maintained by Decision Technologies Limited. **This is indicative only and based on a 2-person household with multiple devices and simultaneous usage. Broadband performance is affected by multiple factors including number of occupants and devices, simultaneous usage, router range etc. For more information speak to your broadband provider.
Map data ©OpenStreetMap contributors.





