
The Fox & Hounds Inn, Ardley, Oxfordshire, OX27
- PROPERTY TYPE
Land
- BEDROOMS
10
- BATHROOMS
6
- SIZE
Ask agent
Key features
- Planning Permission Approved - 25/00177/F
- 5000 sq.ft of potential accommodation
- Former Public House/Inn Site with Large Barn
- Approximately 0.43 of an Acre Plot
- Alternate Plans could generate 6 units
- Approval For Three Unit Conversion including Barn
- Excellent Proximity to Bicester/Oxford & M40
- In Person Viewing Available & Recommended
Description
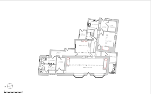
Currently classed as commercial with with approved planning conversion and alteration of former public house to provide three dwellings, plus hard and soft landscaping and associated works. The three separate units totalling around 5000 sq.ft of accommodation if utilising the existing plans.
Property Details
Current Consent
Barn - 175 sqm (1884 sqft)
House 1 - 160 sqm (1722 sqft)
House 2 - 130 sqm (1400 sqft)
TOTAL 5,006 SQ FT
6 Unit Scheme
Unit 1 - 110 sqm (1184 sqft)
Unit 2 - 112 sqm (1206 sqft)
Unit 3 - 175 sqm (1884 sqft)
Unit 4 - 112 sqm (1206 sqft)
Unit 5 - 68 sqm (732 sqft)
Unit 6 - 80 sqm (861 sqft)
TOTAL 7,073 SQ FT
Brochures
More details from ChancellorsEnergy Performance Certificates
EPCThe Fox & Hounds Inn, Ardley, Oxfordshire, OX27
NEAREST STATIONS
Distances are straight line measurements from the centre of the postcode- Bicester North Station3.8 miles
- Heyford Station4.1 miles
- Bicester Town Station4.4 miles
Notes
Disclaimer - Property reference 5830883. The information displayed about this property comprises a property advertisement. Rightmove.co.uk makes no warranty as to the accuracy or completeness of the advertisement or any linked or associated information, and Rightmove has no control over the content. This property advertisement does not constitute property particulars. The information is provided and maintained by Chancellors, Bicester. Please contact the selling agent or developer directly to obtain any information which may be available under the terms of The Energy Performance of Buildings (Certificates and Inspections) (England and Wales) Regulations 2007 or the Home Report if in relation to a residential property in Scotland.
Map data ©OpenStreetMap contributors.










