
6 bedroom bungalow for sale
7 Louisa Crescent, Crimond, Fraserburgh, AB43 8AD

- PROPERTY TYPE
Bungalow
- BEDROOMS
6
- BATHROOMS
4
- SIZE
Ask agent
- TENUREDescribes how you own a property. There are different types of tenure - freehold, leasehold, and commonhold.Read more about tenure in our glossary page.
Freehold
Description
The property is presented to the market in an immaculate walk-in condition, with generous room sizes over two floors that allow for modern-day and versatile family living. Immaculate decor in fresh neutral tones, with quality floor coverings, fixtures, and fittings offering luxury and comfort throughout, many of them specially commissioned. Further benefitting from full double glazing with gas central heating. Undoubtedly an ideal purchase for those looking for a spacious, immaculate property in a peaceful village setting. With its versatile living accommodation, it would suit the young family with room to grow or the extended family.
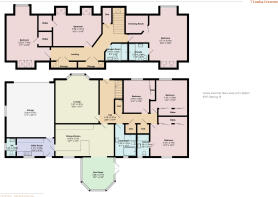
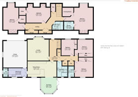
The property consists of a welcoming hallway, which in turn leads to all the accommodation. The modern kitchen has multiple units and is fitted with integrated appliances, with a breakfast bar which is open plan to the formal dining area and sun room with French doors to the rear garden. The kitchen is further enhanced by high-end appliances, including double smart ovens and an integrated smart dishwasher - combining convenience with modern functionality for effortless everyday living. This extensive area is the main hub at the centre of the family home and is awash with natural sunlight, with multiple windows. A rear hall from the kitchen leads to the utility room, the integrated double garage, a guest WC, and the garden.
To the front of the property, a spacious main reception room with a large bay window, off the hallway, there is a centrally located luxury family bathroom with a jacuzzi-style bath and a separate shower cubicle, an en-suite guest bedroom, two further double bedrooms, all three have fitted wardrobes.
A staircase with wooden balustrades leads to the upper floor where you have the master bedroom with an en-suite shower room, a large bay window and two Velux windows, with a huge walk-in wardrobe/ dressing room. There are two further double bedrooms and a centrally located family shower room completing the accommodation. In addition, there are ample storage cupboards throughout the property.
The property's electrical system has been professionally configured to accommodate a backup generator via an external connection point, ensuring continuous power supply and added peace of mind during outages.
The front garden is laid to decorative stone chip and lawn, and allows parking for a multitude of vehicles with access to the integrated garage. The extensive rear garden grounds are accessed from the patio doors of the sun room or the utility room, mostly laid to lawn with borders containing a multitude of shrubs, plants and are bordered by a high wooden fence. A patio area is perfect for alfresco dining and enjoying the sun, and the rear garden with its high perimeter fence provides a safe and secure environment for children and pets alike.
Electricity Supply: OVO
Water Supply: Scottish Water
Sewerage: Scottish Water
Broadband / Mobile Coverage: Sky, Partial 4G Coverage
Brochures
Brochure 1- COUNCIL TAXA payment made to your local authority in order to pay for local services like schools, libraries, and refuse collection. The amount you pay depends on the value of the property.Read more about council Tax in our glossary page.
- Ask agent
- PARKINGDetails of how and where vehicles can be parked, and any associated costs.Read more about parking in our glossary page.
- Yes
- GARDENA property has access to an outdoor space, which could be private or shared.
- Yes
- ACCESSIBILITYHow a property has been adapted to meet the needs of vulnerable or disabled individuals.Read more about accessibility in our glossary page.
- Ask agent
Energy performance certificate - ask agent
7 Louisa Crescent, Crimond, Fraserburgh, AB43 8AD
Add an important place to see how long it'd take to get there from our property listings.
__mins driving to your place
Get an instant, personalised result:
- Show sellers you’re serious
- Secure viewings faster with agents
- No impact on your credit score
Your mortgage
Notes
Staying secure when looking for property
Ensure you're up to date with our latest advice on how to avoid fraud or scams when looking for property online.
Visit our security centre to find out moreDisclaimer - Property reference MFL3247366. The information displayed about this property comprises a property advertisement. Rightmove.co.uk makes no warranty as to the accuracy or completeness of the advertisement or any linked or associated information, and Rightmove has no control over the content. This property advertisement does not constitute property particulars. The information is provided and maintained by McEwan Fraser Legal, Aberdeen. Please contact the selling agent or developer directly to obtain any information which may be available under the terms of The Energy Performance of Buildings (Certificates and Inspections) (England and Wales) Regulations 2007 or the Home Report if in relation to a residential property in Scotland.
*This is the average speed from the provider with the fastest broadband package available at this postcode. The average speed displayed is based on the download speeds of at least 50% of customers at peak time (8pm to 10pm). Fibre/cable services at the postcode are subject to availability and may differ between properties within a postcode. Speeds can be affected by a range of technical and environmental factors. The speed at the property may be lower than that listed above. You can check the estimated speed and confirm availability to a property prior to purchasing on the broadband provider's website. Providers may increase charges. The information is provided and maintained by Decision Technologies Limited. **This is indicative only and based on a 2-person household with multiple devices and simultaneous usage. Broadband performance is affected by multiple factors including number of occupants and devices, simultaneous usage, router range etc. For more information speak to your broadband provider.
Map data ©OpenStreetMap contributors.





