Haddenham, Buckinghamshire

- PROPERTY TYPE
Detached Bungalow
- BEDROOMS
5
- BATHROOMS
1
- SIZE
Ask agent
- TENUREDescribes how you own a property. There are different types of tenure - freehold, leasehold, and commonhold.Read more about tenure in our glossary page.
Freehold
Key features
- NO CHAIN
- Detached Bungalow
- Five Bedrooms
- Large Reception rooms
- Large Garden
- Garden Room
- Potential for Modernisation
- Prime Location
- Transport Links To London
Description
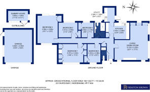
20 Church Way, tucked away on one of Haddenham’s most sought-after roads and offers a rare chance to create your ideal home. This large bungalow, with its generous footprint and expansive garden, is full of potential.
Enter through the front door into the entrance hall. To your right, a bright and spacious sitting room with a gas fire, flowing into the adjoining dining area. The kitchen, is well-proportioned and fitted with a range of wall and base units, providing ample storage and worktop space, the kitchen enjoys natural light from the rear aspect. It opens seamlessly into a spacious utility room, where you'll find additional storage, plumbing for white goods
The home flows beautifully, the layout of the home is both practical and well-balanced. There are four bedrooms, a generous master bedroom with fitted cupboards and a view to the front, two further doubles, one featuring a full wall of fitted wardrobes and a fourth bedroom, currently used as a home office, which looks out over the rear garden.
At the rear of the property is a spacious second bedroom, currently arranged as an additional sitting room. Bright and versatile, it’s flooded with natural light and features sliding patio doors that open directly onto the garden, making it an ideal space for relaxing, working, or entertaining.
Completing the layout is a modern family bathroom at the heart of the home, fitted with a walk-in shower and easily accessible from all rooms.
The garden is a true highlight, a beautifully established outdoor space brimming with privacy and character. Mature trees offer both structure and gentle shade, while well-stocked herbaceous borders add bursts of seasonal colour throughout. Tucked away within this tranquil setting is a charming summer house.
Winding paths meander through the garden, leading to secluded seating areas. At the heart of the space lies a delightful mini orchard, complete with apple trees. Large, shaded patio provides the perfect spot for outdoor dining and entertaining.
The property benefits from double glazing, mains drainage, gas and oil central heating
EPC D Council Tax F
Haddenham, a charming Buckinghamshire village, offers a blend of pastoral tranquillity and contemporary conveniences. Conveniently located three miles from Thame, it provides a host of amenities including a local Co-op, Morrisons and a Waitrose supermarket in nearby Thame. The Thame & Haddenham Parkway rail station, with direct fast-train service to London Marylebone, is a major draw for commuters and families. Local education is outstanding, with several quality schools including Haddenham Community Infant School, Haddenham Junior School, and St Mary’s Church of England School. The village is also in the catchment area for highly regarded grammar schools, and there are a number of private schools in the area. The village boasts architectural treasures like the Norman-origin St Mary the Virgin Church, and a museum nestled in a former schoolroom. Local amenities include independent food shops, a doctor’s surgery, dentist, garage, a library, and a garden centre. The dining scene offers a variety of choices in the local area, catering to a range of tastes. The well-known Tiggywinkles animal hospital signifies the village's deep-rooted respect for the environment. Haddenham truly encapsulates the essence of a thriving community life, complete with modern conveniences, making it an idyllic place to reside for those seeking both historical charm and contemporary living.
The property comprises the following with all dimensions being approximate only. Please note that Reaston Brown has not tested appliances or systems and no warranty as to condition or suitability is confirmed or implied. Any prospective purchaser is advised to obtain verification from their Surveyor or Solicitor.
Brochures
20 Churchway , Haddenham HP17 8AA WEB.pdf- COUNCIL TAXA payment made to your local authority in order to pay for local services like schools, libraries, and refuse collection. The amount you pay depends on the value of the property.Read more about council Tax in our glossary page.
- Ask agent
- PARKINGDetails of how and where vehicles can be parked, and any associated costs.Read more about parking in our glossary page.
- Yes
- GARDENA property has access to an outdoor space, which could be private or shared.
- Yes
- ACCESSIBILITYHow a property has been adapted to meet the needs of vulnerable or disabled individuals.Read more about accessibility in our glossary page.
- Ask agent
Haddenham, Buckinghamshire
Add an important place to see how long it'd take to get there from our property listings.
__mins driving to your place
Get an instant, personalised result:
- Show sellers you’re serious
- Secure viewings faster with agents
- No impact on your credit score
Your mortgage
Notes
Staying secure when looking for property
Ensure you're up to date with our latest advice on how to avoid fraud or scams when looking for property online.
Visit our security centre to find out moreDisclaimer - Property reference 4263083. The information displayed about this property comprises a property advertisement. Rightmove.co.uk makes no warranty as to the accuracy or completeness of the advertisement or any linked or associated information, and Rightmove has no control over the content. This property advertisement does not constitute property particulars. The information is provided and maintained by Reaston Brown, Thame. Please contact the selling agent or developer directly to obtain any information which may be available under the terms of The Energy Performance of Buildings (Certificates and Inspections) (England and Wales) Regulations 2007 or the Home Report if in relation to a residential property in Scotland.
*This is the average speed from the provider with the fastest broadband package available at this postcode. The average speed displayed is based on the download speeds of at least 50% of customers at peak time (8pm to 10pm). Fibre/cable services at the postcode are subject to availability and may differ between properties within a postcode. Speeds can be affected by a range of technical and environmental factors. The speed at the property may be lower than that listed above. You can check the estimated speed and confirm availability to a property prior to purchasing on the broadband provider's website. Providers may increase charges. The information is provided and maintained by Decision Technologies Limited. **This is indicative only and based on a 2-person household with multiple devices and simultaneous usage. Broadband performance is affected by multiple factors including number of occupants and devices, simultaneous usage, router range etc. For more information speak to your broadband provider.
Map data ©OpenStreetMap contributors.







