1A Adelaide Road, Chichester, West Sussex, PO19 7NG
- SIZE AVAILABLE
1,211 sq ft
113 sq m
- SECTOR
Commercial property to lease
Lease details
- Lease available date:
- Ask agent
Key features
- Chichester is a busy and attractive Cathedral city
- Established residential location
- Previously fitted as a take-away unit ( requires a full fit out including new extraction)
- Ground Floor - 564 sq ft
- First floor two bedroom flat above (no kitchen)
- Rear garden
- 100% small business rate relief eligible and no VAT
- New FRI lease available
- Rent - £25,000 PAX
- Freehold interest available at £270,000 stc
Description
The property comprises a recently refurbished, detached two-storey retail unit, of traditional brick construction (painted finish) beneath a pitched tiled roof.
Internally, the ground floor was most recently used as a takeaway, and is arranged to provide a front sales area leading through to a commercial kitchen, with access to the rear garden. A detached storage room is located within the garden area.
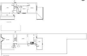
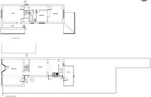
The first floor provides residential accommodation, comprising two bedrooms, a spacious living room, WC, and a storage area.
Externally, the property benefits from a large rear garden with a store.
Location
Chichester is an attractive cathedral city, and the county town of West Sussex. It is conveniently located along the A27 south coast trunk road, and lies approximately 15 miles to the east of Portsmouth and 30 miles west of Brighton. A mainline railway service to London reinforces commerce.
Adelaide Road is a predominantly residential street located within approximately 0.7 miles of Chichester city centre.
Planning
A new Use Classes Order (UCO) came into effect on 1st September 2020. Under the new UCO uses that were categorised under the former UCO as A4, A5 (Hot Food Take-away) and some D2 uses (cinemas, concert halls, bingo halls and dance halls) are now regarded as a Sui Generis use. We therefore understand that the use of the subject premises is a Sui Generis use.
VAT
We understand the property is not registered for VAT.
Accommodation
The accommodation has the following approximate Area:
Business Rates / Council Tax Band
Rateable Value (2023): £8,200
Rateable Value (Draft - Scheduled for Implementation from 1st April 2026): £8,000
Occupiers will pay approximately 50% of this per annum (on sub £50,001 Rateable Values) and approximately 55% on Ratable Values above.
Interested parties should make their own enquiries to satisfy themselves of their business rates liability: tax band - TBC
EPC
We understand the property has an EPC rating of E (107).
Legal Fees
Each party to bear their own legal costs incurred.
AML
In accordance with current Government legislation, we are legally required to conduct Anti-Money Laundering (AML) checks on all prospective purchasers or tenants where the transaction involves a capital value of €15,000 (EUR) or more, or a rental value of €10,000 (EUR) per calendar month or greater.
This process includes verifying identity, as well as confirming the source and availability of funds. Please note that we must obtain and record this information before any transaction can be formalised or contracts exchanged.
Brochures
1A Adelaide Road, Chichester, West Sussex, PO19 7NG
NEAREST STATIONS
Distances are straight line measurements from the centre of the postcode- Chichester Station0.8 miles
- Fishbourne Station2.0 miles
- Bosham Station3.4 miles

Notes
Disclaimer - Property reference 7205LH. The information displayed about this property comprises a property advertisement. Rightmove.co.uk makes no warranty as to the accuracy or completeness of the advertisement or any linked or associated information, and Rightmove has no control over the content. This property advertisement does not constitute property particulars. The information is provided and maintained by Flude Property Consultants, Chichester. Please contact the selling agent or developer directly to obtain any information which may be available under the terms of The Energy Performance of Buildings (Certificates and Inspections) (England and Wales) Regulations 2007 or the Home Report if in relation to a residential property in Scotland.
Map data ©OpenStreetMap contributors.






