Highfield Road, Dartford, Kent, DA1
- PROPERTY TYPE
Serviced Office
- SIZE
7,020 sq ft
652 sq m
Key features
- Recently converted serviced office building (c. 2021)
- Subject to occupational serviced office tenancies
- Passing rent - c. £325,000 per annum (Jul-24 to Jun-25)
- Opportunity to increase rent roll
- Two storey building plus basement
- Approximately 0.33 acre site
- 23 serviced offices, 21 co-working spaces
- Additional two meeting rooms, kitchens and toilets
- Passenger lift
- Car parking
Description
Known as The Hill Hub, the property comprises a Grade II listed former police station that has been converted and refurbished into excellent modern serviced office accommodation in circa. 2021.
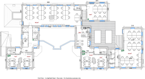
The property extends to circa. 7,000 square feet (NIA) and has office accommodation spread over two floors, plus a useful basement storage area. There are 23 serviced offices, 21 co-working desks and 2 meeting rooms. There is a passenger lift servicing the ground and first floor, which also has kitchens and toilets on both floors.
It has been fitted out to an excellent standard throughout and there is buzz about the building with over 35 tenants (licensees) using it. There is also a café within the building serving food and snacks.
Externally, there is car parking for 13/14 cars and the site extends to circa. 1/3 of an acre.
As of June 2025, the property was generating c. £325,000 per annum. It should be noted, there were a few vacant offices at the time RPRS reviewed the accounts (approx. 85% occupied) and there is opportunity to increase the income. Information on the operating costs can be found in the buyer pack.
LOCATION
Prime Town Centre Location with Excellent Connectivity
The Hill Hub occupies a prominent position on Highfield Road in the heart of Dartford, just 0.3 miles from the town centre and a short walk from Dartford Station, which offers direct rail links to London Bridge, Cannon Street, and Charing Cross. The property benefits from excellent road access via the A2 and M25, placing Central London, Kent, and Essex within easy reach.
This Grade II Listed former police station has been thoughtfully redeveloped into a vibrant business hub, surrounded by a mix of commercial occupiers, civic buildings, and retail amenities. The nearby Priory Shopping Centre and Bluewater-one of Europe's largest retail destinations-offer a wealth of shops, restaurants, and services.
The area is undergoing significant regeneration, with over £75 million invested into Dartford's town centre, including new residential, leisure, and public realm developments. This strategic location supports strong tenant demand and long-term growth potential.
NET INTERNAL AREA
Total - 652.17sqm / 7,020ft2
RPRS have not measured the building and have been provided with these measurements. Purchasers will have to satisfy themselves.
FINANCE
Finance available via accredited lender.
BUYER PACK
The Buyer Pack includes:
* Tenancy schedule
* Profit & loss account
* EPC
* Tenancy agreements
* Floor plans
Information has been provided by The Hill Hub Dartford Ltd and buyers must check the documents and undertake their own investigations.
TENANCIES
The property is occupied by a wide variety of businesses. There are currently 37 different businesses using the building including 19 tenants and 18 virtual tenants. The property is approximately 85% occupied meaning the annual rent can be increased. The tenants are in occupation under licence agreements. Each tenant can expect manned reception, WIFI, utilities and cleaning.
The passing rent for the building is £324,496.98 per annum (£27,041.41 per month average) between July 2024 to June 2025. Information on the operating costs can be found in the buyer pack.
PLANNING
Planning was granted by Dartford Borough Council planning authority for the development of the property on 28 February 2020. Planning reference 19/01698/COU - Change of use of building fronting Highfield Road from Sui Generis use to co-working office spaces (including facilities and meeting rooms) (Class B1) and café (Class A3) for local community. Purchaser should review the planning portal and satisfy themselves.
SERVICES
We understand the property has mains electricity, water and drainage. There is a HVAC centralised system servicing the building. None of the appliances have been tested and interested parties should make their own investigations.
TENURE
Freehold
GUIDE PRICE
£1,995,000
VAT
VAT may be applicable to the purchase price. Purchasers to make their own enquiries.
EPC
TBC
Brochures
Brochure 1Highfield Road, Dartford, Kent, DA1
NEAREST STATIONS
Distances are straight line measurements from the centre of the postcode- Dartford Station0.4 miles
- Crayford Station1.5 miles
- Slade Green Station1.9 miles
Notes
Disclaimer - Property reference HighfieldRd. The information displayed about this property comprises a property advertisement. Rightmove.co.uk makes no warranty as to the accuracy or completeness of the advertisement or any linked or associated information, and Rightmove has no control over the content. This property advertisement does not constitute property particulars. The information is provided and maintained by RPRS, Covering London. Please contact the selling agent or developer directly to obtain any information which may be available under the terms of The Energy Performance of Buildings (Certificates and Inspections) (England and Wales) Regulations 2007 or the Home Report if in relation to a residential property in Scotland.
Map data ©OpenStreetMap contributors.







