
4 bedroom barn conversion for sale
Old Wimpole Road, Arrington, SG8

- PROPERTY TYPE
Barn Conversion
- BEDROOMS
4
- BATHROOMS
3
- SIZE
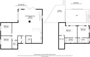
2,387 sq ft
222 sq m
- TENUREDescribes how you own a property. There are different types of tenure - freehold, leasehold, and commonhold.Read more about tenure in our glossary page.
Freehold
Key features
- Stunning Contemporary Barn Conversion
- Sold with No Onwards Chain
- High Specification Modern Kitchen Space with Built in Appliances
- Large Open Plan Living Space/Dining Space with Valuated Ceilings
- Allocated Parking for Multiple Vehicles
- 2 Ensuites, Family Bathroom & Utility Room
- Private Garden with Patio Space
- Countryside Setting with Fantastic Views
- Walking Distance to Wimpole National Trust Estate
Description
Property Insight
Ensum Brown are delighted to offer for sale this stunning contemporary barn conversion in the sought-after village of Arrington. This property is within walking distance of Wimpole National Trust Estate and enjoys a countryside setting, with fantastic views, no upward chain, a large open-plan living/dining space, vaulted ceilings, a high-spec modern kitchen with integrated appliances, a utility room, 4 double bedrooms, 2 en-suites and a family bathroom, a private garden with patio space, and allocated parking for multiple vehicles.
This stunning contemporary barn conversion enjoys a unique and attractive approach, with the front door set back inside a wide alcove. Upon stepping inside, the entrance hallway is bright and beautifully decorated, alluding to the high standard seen throughout this lovely home. It benefits from tiled flooring, integrated storage, inset lighting and access through to the ground floor living space.
The kitchen/dining/living room is wonderfully open-plan and enjoys windows and bi-fold doors to a glorious garden outlook, gloss tiled flooring, inset lighting, vaulted ceilings, a mezzanine landing, stairs to the first floor, and vast amounts of space for living, dining and storage furniture. In the kitchen area, there is a range of modern base and wall units, composite worktops, under-cabinet lighting, pendant lighting, an integrated double oven, hob, extractor fan, dishwasher and fridge/freezer, and space for smaller kitchen appliances. The utility room provides further storage and space for large laundry appliances.
Two of the four well-proportioned bedrooms can also be found on the ground floor, along with a shower room, comprising a corner shower, WC and hand wash basin. Upstairs to the first floor, there are a further 2 bedrooms, each with large en-suites. The master suite also enjoys its own large dressing room.
Outside, to the rear, the garden is a very good size, fully enclosed by fencing and offering a lovely spot to sit and relax in the sunshine. It is laid mainly to lawn, with a paved patio area providing ample space for garden furniture, enjoying meals al fresco and entertaining guests. There are also stairs up to a beautiful first-floor open and undercover terrace, with stunning countryside views and plenty of space for furniture.
Contact Ensum Brown today to arrange your private viewing appointment.
ONLINE VIEWING & 3D VIRTUAL REALITY 360° TOUR
Explore this property in full 360° reality. On Rightmove, on a desktop click photos and you will find the 3D tour within the photos, on a tablet or phone click the virtual tour tab. 3D virtual reality marketing now comes as part of our standard marketing, don't hesitate to call us if we can help you.
LocationArrington is a small parish village, situated in an ideal location just 6 miles north of the town of Royston, 9 miles southwest of the city of Cambridge, and a stone's throw from the locally renowned National Trust property, Wimpole Hall. The grounds and surrounding area offer locals idyllic walks, wildlife spotting, and further means of escape from the hustle and bustle of daily life. Sitting on the old Roman Ermine Street, the village has a wealth of rich heritage with 20 listed buildings and a converted coaching inn, The Hardwicke Arms, is a charming public house, offering guestrooms, good food and regular entertainment. The Church of St. Nicholas is situated off the main road, on one of the highest points of the village, which is at the core of the former late Anglo-Saxon settlement, dating back to potentially the 11th Century. Arrington has a village hall and offers many clubs and groups, such as snooker, carpet bowls, aerobics and karate. Just outside of the village there is a large garden centre, and further amenities can be found in the nearest town of Royston. In Royston, residents also have access to the town's many other amenities, such as the mainline train station offering regular fast services to both Cambridge and London Kings Cross. There is also a leisure centre, sports clubs, dentist's surgeries, and highly-regarded schools for all ages. The A1M and M11 are within a 20-minute drive via the A10/A505, and London Stansted and Luton Airports are both 30-minutes away. If you're looking to escape to a countryside location, full of rich heritage, Arrington is certainly one not to overlook!
EPC Rating: C
- COUNCIL TAXA payment made to your local authority in order to pay for local services like schools, libraries, and refuse collection. The amount you pay depends on the value of the property.Read more about council Tax in our glossary page.
- Band: D
- PARKINGDetails of how and where vehicles can be parked, and any associated costs.Read more about parking in our glossary page.
- Yes
- GARDENA property has access to an outdoor space, which could be private or shared.
- Yes
- ACCESSIBILITYHow a property has been adapted to meet the needs of vulnerable or disabled individuals.Read more about accessibility in our glossary page.
- Ask agent
Old Wimpole Road, Arrington, SG8
Add an important place to see how long it'd take to get there from our property listings.
__mins driving to your place
Get an instant, personalised result:
- Show sellers you’re serious
- Secure viewings faster with agents
- No impact on your credit score
Your mortgage
Notes
Staying secure when looking for property
Ensure you're up to date with our latest advice on how to avoid fraud or scams when looking for property online.
Visit our security centre to find out moreDisclaimer - Property reference 8aabdb6f-0293-4325-b511-c24eb9a4d228. The information displayed about this property comprises a property advertisement. Rightmove.co.uk makes no warranty as to the accuracy or completeness of the advertisement or any linked or associated information, and Rightmove has no control over the content. This property advertisement does not constitute property particulars. The information is provided and maintained by Ensum Brown, Royston. Please contact the selling agent or developer directly to obtain any information which may be available under the terms of The Energy Performance of Buildings (Certificates and Inspections) (England and Wales) Regulations 2007 or the Home Report if in relation to a residential property in Scotland.
*This is the average speed from the provider with the fastest broadband package available at this postcode. The average speed displayed is based on the download speeds of at least 50% of customers at peak time (8pm to 10pm). Fibre/cable services at the postcode are subject to availability and may differ between properties within a postcode. Speeds can be affected by a range of technical and environmental factors. The speed at the property may be lower than that listed above. You can check the estimated speed and confirm availability to a property prior to purchasing on the broadband provider's website. Providers may increase charges. The information is provided and maintained by Decision Technologies Limited. **This is indicative only and based on a 2-person household with multiple devices and simultaneous usage. Broadband performance is affected by multiple factors including number of occupants and devices, simultaneous usage, router range etc. For more information speak to your broadband provider.
Map data ©OpenStreetMap contributors.





