Lisbon, Cadaval, Portugal
- PROPERTY TYPE
Land
- BATHROOMS
2
- SIZE
5,382 sq ft
500 sq m
Description
The purchase includes the land with the construction of a single-storey 3 bedroom house. Turnkey! However, this project can be adapted to your ideas or budget.
Construction will begin after the reservation and approval of the city hall project, with delivery expected within 12 months.
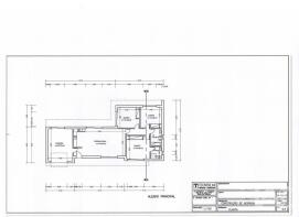
It consists of: - Open space living room and kitchen (47.50m2);
- 2 bedrooms with built-in wardrobes (15m2/each);
- 1 Suite Bedroom with built-in wardrobe (22.40m2);
- Social bathroom (6.30m2);
- Garage (28.55m2) for 2 vehicles.
The features are: - PVC windows with double glazing and thermal break;
- Floating floor;
- Electric blinds;
- Solar panels;
- Preheating of air conditioning without appliances;
- Unequipped kitchen;
- Swimming pool (optional).
Plot Area: approximately 500 square meters
It is a 5-minute drive from Vila do Cadaval where you can find banks, pharmacies, schools, gas stations and all types of shops and services.
It is also: 15 minutes from Budha Eden Garden;
10 minutes from the A8;
20 minutes from Torres Vedras;
25 minutes from Caldas da Rainha;
30 minutes from the A1;
50 minutes from Lisbon;
Close to the beaches of the West: Peniche, Baleal, Areia Branca, Foz do Arelho, Santa Cruz.
Book your visit now and start planning your dream home here!
#ref: 91180
Lisbon, Cadaval, Portugal
NEAREST AIRPORTS
Distances are straight line measurements- Lisbon(International)31.6 miles
Advice on buying Portuguese property
Learn everything you need to know to successfully find and buy a property in Portugal.
Notes
This is a property advertisement provided and maintained by IAD, Porto (reference 91180) and does not constitute property particulars. Whilst we require advertisers to act with best practice and provide accurate information, we can only publish advertisements in good faith and have not verified any claims or statements or inspected any of the properties, locations or opportunities promoted. Rightmove does not own or control and is not responsible for the properties, opportunities, website content, products or services provided or promoted by third parties and makes no warranties or representations as to the accuracy, completeness, legality, performance or suitability of any of the foregoing. We therefore accept no liability arising from any reliance made by any reader or person to whom this information is made available to. You must perform your own research and seek independent professional advice before making any decision to purchase or invest in overseas property.





