High street retail property for sale
15 New Market, Beccles, Suffolk, NR34
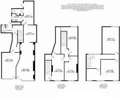
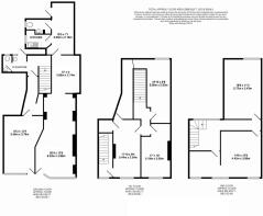
- SIZE AVAILABLE
2,288 sq ft
213 sq m
- SECTOR
High street retail property for sale
- USE CLASSUse class orders: A1 Shops, A2 Financial and Professional Services and B1 Business
A1, A2, B1
Key features
- Retail investment
- Central location
- Redevelopment potential (STPP)
- Rental income £31,500pa
Description
The property is in the centre of Beccles, an affluent and thriving market town and popular boating centre situated in North Suffolk approximately 18 miles south-east of Norwich and 9 miles west of Lowestoft. The town has an immediate population of approximately 11,000 with a large catchment area. CACI and Acorn have produced a report based on a 16 minute drive time which demonstrates a catchment of 37,604 of which 30,618 are either "wealthy achievers" or "comfortably off". Beccles' retail influence extends to West Lowestoft, Bungay and Halesworth. The latter two do not have a major supermarket, whilst Beccles has Morrisons and a Tesco. There is also an outdoor market held every Friday.
DESCRIPTION
The shop is in one of the most central parts of Beccles, situated between the national retailers of Coral and Greggs, and close to QD, WH Smiths and the Coop.
The unit has a large glazed frontage with access from the front leading directly into 2 independent retailers. Both with kitchen and toilet facilities to the rear. There is also access and parking to the rear of the shop. The upper parts are arranged over 2 floor and could either be used for a commercial tenant or residential (STPP), separate access would have to be facilitated from the rear.
NOTE: The property is Grade II Listed.
ACCOMMODATION
Unit 15a Ground and part 1st floor - Renewal of lease from 8th March 2026 for 5 years at a rent of £15,500pa, let to Fred Olsen Travel Limited. (currently £10,000pa)
Unit 15b Ground floor -Lease from September 2020 for 10 years (5yrly RR) at a rent of £16,000pa, let to Sweeties confectionary shop.
The upper parts had PP for conversion to residential, which has now lapsed.
PRICE
The Vendor is seeking offers in excess of £400,000 for their freehold interest.
SERVICES
The mains water, electricity and drainage are available. Toilet facilities and kitchen facilities are available. None of the services, including heating, plumbing or electrical systems (nor appliances) have been tested by the Sales Agent.
EPC
Energy Performance Certificate details:
Unit 15a-Band D (78)
Unit 15b-Band D (76)
RATEABLE VALUE
The Rateable Value of the property is:
Unit 15a-£7,900 from April 2026
Unit 15b- £10,500 from April 2026
Both units qualify for 100% Small Business Rates Relief.
Brochures
15 New Market, Beccles, Suffolk, NR34
NEAREST STATIONS
Distances are straight line measurements from the centre of the postcode- Beccles Station0.3 miles
- Brampton Station4.4 miles
- Somerleyton Station5.2 miles
Notes
Disclaimer - Property reference bestestatesINV. The information displayed about this property comprises a property advertisement. Rightmove.co.uk makes no warranty as to the accuracy or completeness of the advertisement or any linked or associated information, and Rightmove has no control over the content. This property advertisement does not constitute property particulars. The information is provided and maintained by Fennel Chartered Surveyors, Halesworth. Please contact the selling agent or developer directly to obtain any information which may be available under the terms of The Energy Performance of Buildings (Certificates and Inspections) (England and Wales) Regulations 2007 or the Home Report if in relation to a residential property in Scotland.
Map data ©OpenStreetMap contributors.





