Miles Close, West Thamesmead, London, SE28

- PROPERTY TYPE
Apartment
- BEDROOMS
2
- BATHROOMS
2
- SIZE
Ask agent
Key features
- Riverside Apartment with Views
- 2 Double Bedrooms, 2 Bathrooms (1 En Suite)
- Underground Parking, Gated Development
- 21ft. Private Balcony with Stunning River Views
- Walking Distance to Woolwich Arsenal DLR & Elizabeth Line
- Modern Fitted kitchen
- Double Glazed
- Internal Viewing a Must
Description
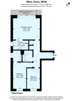
HI Residential is proud to present this fully renovated two-bedroom, two-bathroom apartment located on the third floor of a secure gated development in Miles Close, West Thamesmead. With uninterrupted views across the River Thames to the Royal Docks, this beautifully finished home offers a rare combination of style, space, and scenery.
The property has been tastefully refurbished throughout and features a contemporary fitted kitchen with integrated appliances including a dishwasher, washing machine/dryer, and fridge-freezer. The sleek open-plan layout flows into a bright and spacious reception area, which opens onto a 21ft private balcony offering breath-taking direct river views—ideal for relaxing or entertaining.
Accommodation includes two well-proportioned double bedrooms, with the principal bedroom benefiting from a stylish en suite shower room. A second modern bathroom and a large entrance hall with built-in storage complete the internal layout.
Additional highlights include a private underground allocated parking, gas central heating, and double glazing, all within a secure and well-maintained development.
Transport links are excellent, with the property situated approximately 15 minutes from Woolwich Arsenal station offering DLR, mainline, and Elizabeth Line services—Canary Wharf in just 7 minutes and Bond Street in approximately 21 minutes. The nearby River Bus also provides scenic connections to Westminster, Chelsea Harbour, and Putney.
This is a fantastic opportunity to secure a riverfront lifestyle with all the benefits of modern living and outstanding transport connections. Early viewing is highly recommended—contact HI Residential today to arrange your appointment.
- COUNCIL TAXA payment made to your local authority in order to pay for local services like schools, libraries, and refuse collection. The amount you pay depends on the value of the property.Read more about council Tax in our glossary page.
- Band: C
- PARKINGDetails of how and where vehicles can be parked, and any associated costs.Read more about parking in our glossary page.
- Yes
- GARDENA property has access to an outdoor space, which could be private or shared.
- Ask agent
- ACCESSIBILITYHow a property has been adapted to meet the needs of vulnerable or disabled individuals.Read more about accessibility in our glossary page.
- Ask agent
Miles Close, West Thamesmead, London, SE28
Add an important place to see how long it'd take to get there from our property listings.
__mins driving to your place
Get an instant, personalised result:
- Show sellers you’re serious
- Secure viewings faster with agents
- No impact on your credit score

Your mortgage
Notes
Staying secure when looking for property
Ensure you're up to date with our latest advice on how to avoid fraud or scams when looking for property online.
Visit our security centre to find out moreDisclaimer - Property reference 10675720. The information displayed about this property comprises a property advertisement. Rightmove.co.uk makes no warranty as to the accuracy or completeness of the advertisement or any linked or associated information, and Rightmove has no control over the content. This property advertisement does not constitute property particulars. The information is provided and maintained by hi-residential, South East London. Please contact the selling agent or developer directly to obtain any information which may be available under the terms of The Energy Performance of Buildings (Certificates and Inspections) (England and Wales) Regulations 2007 or the Home Report if in relation to a residential property in Scotland.
*This is the average speed from the provider with the fastest broadband package available at this postcode. The average speed displayed is based on the download speeds of at least 50% of customers at peak time (8pm to 10pm). Fibre/cable services at the postcode are subject to availability and may differ between properties within a postcode. Speeds can be affected by a range of technical and environmental factors. The speed at the property may be lower than that listed above. You can check the estimated speed and confirm availability to a property prior to purchasing on the broadband provider's website. Providers may increase charges. The information is provided and maintained by Decision Technologies Limited. **This is indicative only and based on a 2-person household with multiple devices and simultaneous usage. Broadband performance is affected by multiple factors including number of occupants and devices, simultaneous usage, router range etc. For more information speak to your broadband provider.
Map data ©OpenStreetMap contributors.




