Ingleboro Drive, Purley

- PROPERTY TYPE
Semi-Detached
- BEDROOMS
3
- BATHROOMS
1
- SIZE
Ask agent
- TENUREDescribes how you own a property. There are different types of tenure - freehold, leasehold, and commonhold.Read more about tenure in our glossary page.
Freehold
Key features
- Exclusive to Frost Estate Agents
- Stunning Extended Family Home
- Three Receptions
- Stunning Kitchen and Separate Utility Room and Guest WC
- Great Location for Schools Transport and Recreational Outdoor Pursuits
- Off Street Parking
- EPC Rating C
Description
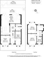
This beautifully extended and improved semi-detached family home offers bright, spacious living throughout, finished to an exceptional standard. Located in the highly desirable Riddlesdown area of Purley, the property enjoys excellent transport links from both Riddlesdown and Purley stations, and is within close proximity to outdoor recreational spaces and the well-regarded Riddlesdown Collegiate.
The ground floor has been thoughtfully extended to provide flexible and stylish living spaces, enhanced by underfloor heating. The heart of the home is the superb kitchen, featuring an area for a free standing island ideal for casual dining, a range of attractive units, and complementary fitted cupboards. Three distinct reception areas offer versatility: a front lounge with bay window, a cosy study/snug, and a rear open-plan living and dining area that connects seamlessly to the south-westerly garden via Bifold doors—perfect for indoor/outdoor living and entertaining.
Additional ground floor benefits include a spacious utility room and a convenient guest WC. Upstairs, there are two double bedrooms and a single, along with a beautifully appointed family bathroom. Externally, the property features off-street parking at the front. The rear garden has been thoughtfully landscaped to include an entertaining patio, a large lawn, and mature shrub borders—an ideal setting for family life and summer gatherings.
The location is renowned for its excellent transportation facilities, from Purley Mainline Station which is within 0.25 miles you can take your pick from Victoria or London Bridge as destinations – both around 25 minutes’ travel time on the fast trains, trains from central London also run throughout the night for ultra convenience. Alternatively, Gatwick Airport is just 26 minutes in the other direction and Thameslink services also run into central London. Riddlesdown station with the East Grinstead line trains is also only 0.5 miles away. Road links are excellent too, with the A23 a matter of minutes away, providing fast, easy access to London, the South Coast and the M25. There are excellent schools within the area for all ages including the highly regarded Riddlesdown Collegiate which is currently rated outstanding by Ofsted, this property is within the catchment area. Outside recreational facilities are also close by at both Riddlesdown and Kenley commons providing acres of land to explore and enjoy.
Brochures
Full Details- COUNCIL TAXA payment made to your local authority in order to pay for local services like schools, libraries, and refuse collection. The amount you pay depends on the value of the property.Read more about council Tax in our glossary page.
- Band: E
- PARKINGDetails of how and where vehicles can be parked, and any associated costs.Read more about parking in our glossary page.
- Yes
- GARDENA property has access to an outdoor space, which could be private or shared.
- Yes
- ACCESSIBILITYHow a property has been adapted to meet the needs of vulnerable or disabled individuals.Read more about accessibility in our glossary page.
- Ask agent
Ingleboro Drive, Purley
Add an important place to see how long it'd take to get there from our property listings.
__mins driving to your place
Get an instant, personalised result:
- Show sellers you’re serious
- Secure viewings faster with agents
- No impact on your credit score
Affordability
Notes
Staying secure when looking for property
Ensure you're up to date with our latest advice on how to avoid fraud or scams when looking for property online.
Visit our security centre to find out moreDisclaimer - Property reference 12703507. The information displayed about this property comprises a property advertisement. Rightmove.co.uk makes no warranty as to the accuracy or completeness of the advertisement or any linked or associated information, and Rightmove has no control over the content. This property advertisement does not constitute property particulars. The information is provided and maintained by Frost Estate Agents, Purley. Please contact the selling agent or developer directly to obtain any information which may be available under the terms of The Energy Performance of Buildings (Certificates and Inspections) (England and Wales) Regulations 2007 or the Home Report if in relation to a residential property in Scotland.
*This is the average speed from the provider with the fastest broadband package available at this postcode. The average speed displayed is based on the download speeds of at least 50% of customers at peak time (8pm to 10pm). Fibre/cable services at the postcode are subject to availability and may differ between properties within a postcode. Speeds can be affected by a range of technical and environmental factors. The speed at the property may be lower than that listed above. You can check the estimated speed and confirm availability to a property prior to purchasing on the broadband provider's website. Providers may increase charges. The information is provided and maintained by Decision Technologies Limited. **This is indicative only and based on a 2-person household with multiple devices and simultaneous usage. Broadband performance is affected by multiple factors including number of occupants and devices, simultaneous usage, router range etc. For more information speak to your broadband provider.
Map data ©OpenStreetMap contributors.





