
Farrington, Blandford Forum, Dorset, DT11
- PROPERTY TYPE
Land
- SIZE
4,693 sq ft
436 sq m
Key features
- Stunning ring-fenced site of 8.1 acres, in stunning countryside.
- Planning permission provides for a new country house of c. 4,600 sq ft.
- Swimming pool with pool house.
- Garage with 1st floor annex above.
- 5.7 miles from Shaftesbury.
Description
Description
PLANNING PERMISSION - GRANTED 11 AUGUST 2025
The owners have engaged with the highly regarded Richmond Bell architects to design a superb new country house on the site of an old chicken shed. The natural appeal of the site and bucolic surrounding countryside formed the foundation of design for this exciting new opportunity to build a brand new country house, surrounded by its own land.
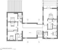
In summary, the planning permission provides for the erection of a five bedroom self-build dwelling, garage with ancillary accommodation and storage, swimming pool and pool room, landscaping, parking and associated works. With reference to the computer generated images and floor plans, the dwelling will be two storeys in height and its design comprises a traditional form with contemporary elements, including the use of timber cladding. An area of parking and a garage is proposed within the site and new landscaping (see below) is also proposed, including a formal courtyard garden adjacent to the swimming pool and pool room, with a larger garden beyond which will include a meadow and wildlife pond.
OUTSIDE
The site stands on the northern edge of Farrington, in a glorious rural position with access from the local village road. The site extends to just over 8 acres, in a ring fence, with no public rights of way. The existing barn stands well back from the road and is surrounded by farmland. There is an existing curtilage of trees which the owners have incorporated into a fabulous plan for the immediate gardens and further grounds, designed by renowned garden designer Fi Boyle. Please see the illustration in the details.
The additional land would naturally form excellent amenity to the domestic garden, ideal for traditional post and rail paddock or natural meadowland.
Location
SITUATION AND AMENITIES
The site is located in a rural position to the north of Farrington, a small hamlet which forms part of the Parish of Shroton. The local area is beautifully rural yet accessible to Shaftesbury which is about 5.7 miles away, with its boutique shops and supermarkets. The village of Shroton has a vibrant community, Grade I Listed church, public house and village hall. Child Okeford has an excellent village shop and two pubs, whilst other villages of note nearby include Iwerne Minster, Fontmell Magna and Stourpaine, all of which have a variety of further amenities.
Gillingham is slightly further to the north (9.2 miles) with a Waitrose and station to London Waterloo (from 2 hours), whilst Salisbury is 27 miles to the east. The market towns of Blandford and Shaftesbury have a good variety of shopping, educational and recreational facilities, whilst the Abbey town of Sherborne (18 miles) is also very popular.
The Georgian town of Bath (38 miles) is easily accessible offering excellent shopping, the arts, excellent restaurants and rugby.
The general area is renowned for its excellent range of schools. Private schools include Port Regis, Sandroyd, Clayesmore, Hanford, Hazelgrove, Godolphin, the Sherborne schools, Bryanston and Marlborough. There is an excellent choice of state primary schools locally as well as Bishops Wordsworth & South Wilts Grammar schools in Salisbury.
Square Footage: 4,693 sq ft
Acreage: 8.1 Acres
Directions
Postcode: DT11 8RA
What3Words:
Additional Info
Services : Mains water and electricity are currently supplied to the site.
Outgoings : None at present.
Planning : The current permission has been granted with reference P/FUL/2024/06839.
Local Authority : Dorset Council:
Tenure : Freehold.
Rights of Way : The property is sold subject to any wayleaves or easements, whether mentioned in these particulars or not. There are no public rights of way.
Viewing : Strictly by appointment with sole selling agents Savills.
Brochures
Web DetailsFarrington, Blandford Forum, Dorset, DT11
NEAREST STATIONS
Distances are straight line measurements from the centre of the postcode- Gillingham (Dorset) Station6.7 miles
Notes
Disclaimer - Property reference SAS250048. The information displayed about this property comprises a property advertisement. Rightmove.co.uk makes no warranty as to the accuracy or completeness of the advertisement or any linked or associated information, and Rightmove has no control over the content. This property advertisement does not constitute property particulars. The information is provided and maintained by Savills, Salisbury. Please contact the selling agent or developer directly to obtain any information which may be available under the terms of The Energy Performance of Buildings (Certificates and Inspections) (England and Wales) Regulations 2007 or the Home Report if in relation to a residential property in Scotland.
Map data ©OpenStreetMap contributors.







