
Holme Road, Market Weighton, York, YO43 3GT

- PROPERTY TYPE
Detached
- BEDROOMS
4
- SIZE
Ask developer
- TENUREDescribes how you own a property. There are different types of tenure - freehold, leasehold, and commonhold.Read more about tenure in our glossary page.
Freehold
Key features
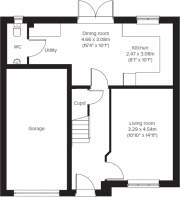
- Open plan kitchen/dining room with French doors leading into the garden
- Downstairs WC
- Front-aspect living room
- Integral garage
- Bedroom 1 with en suite
- First floor study
- Family bathroom with modern fixtures and fittings
- Energy efficient
Description
There’s space in this detached family house for four bedrooms and a study and that’s all just on the first floor. The Marston has super flexible living space downstairs too. The combination of an open-plan kitchen/dining room, a separate living room and an integral garage, make this new home the ideal choice for all the comings and goings of busy family life.
Additional Information
- Tenure: Freehold
- Annual service charge amount (£): 126
- Council tax band: Not made available by local authority until post-occupation
Parking - Allocated Parking
Room Dimensions
- Dining room - 4.66 x 3.08 metre
- Kitchen - 2.47 x 3.08 metre
- Living room - 3.29 x 4.54 metre
- Bedroom One - 3.29 x 4.18 metre
- Bedroom Two - 3.11 x 3.0 metre
- Bedroom Three - 2.79 x 3.5 metre
- Bedroom Four - 2.89 x 2.93 metre
- Study - 2.37 x 1.91 metre
- COUNCIL TAXA payment made to your local authority in order to pay for local services like schools, libraries, and refuse collection. The amount you pay depends on the value of the property.Read more about council Tax in our glossary page.
- Ask developer
- PARKINGDetails of how and where vehicles can be parked, and any associated costs.Read more about parking in our glossary page.
- Yes
- GARDENA property has access to an outdoor space, which could be private or shared.
- Yes
- ACCESSIBILITYHow a property has been adapted to meet the needs of vulnerable or disabled individuals.Read more about accessibility in our glossary page.
- Ask developer
Energy performance certificate - ask developer
Holme Road, Market Weighton, York, YO43 3GT
Add an important place to see how long it'd take to get there from our property listings.
__mins driving to your place
Get an instant, personalised result:
- Show sellers you’re serious
- Secure viewings faster with agents
- No impact on your credit score
About Persimmon Homes
Perfect for first-time buyers and growing families, our exciting new development offers energy-efficient one, two, three and four-bedroom homes, and one bedroom apartments.
Surrounded by tranquil countryside views, our new development is situated on the edge of the semi-rural town of Market Weighton. Known as one of the jewels of the Yorkshire Wolds, the town offers walking distance amenities, including independent and well-known shops and its popular weekly market. Plus, there?s a range of good schools for nursery to secondary school ages - making it a great choice for growing families.
Less than an hour away by car, the quaint cobbled streets of York await. Perfect for shopping trips, you can wander down the famous Shambles and enjoy beautiful boutiques and various eateries. And when you fancy adventures out in nature, you have easy access to the wilds of the North York Moors National Park.
This development offers the following schemes:
- New Build Boost
- Deposit Boost: 5% Deposit Contribution Scheme
- Part Exchange your Home
- Own New Rate Reducer Scheme
- Home Change
- Deposit Unlock
- Armed Forces, Key Workers & NHS Discount Scheme
- Bank of Mum and Dad
- First Homes
- Early Bird Scheme
Schemes are available on selected plots only, subject to status, terms and conditions apply. Contact the development for latest information.
Affordability
Notes
Staying secure when looking for property
Ensure you're up to date with our latest advice on how to avoid fraud or scams when looking for property online.
Visit our security centre to find out moreDisclaimer - Property reference 4_189. The information displayed about this property comprises a property advertisement. Rightmove.co.uk makes no warranty as to the accuracy or completeness of the advertisement or any linked or associated information, and Rightmove has no control over the content. This property advertisement does not constitute property particulars. The information is provided and maintained by Persimmon Homes. Please contact the selling agent or developer directly to obtain any information which may be available under the terms of The Energy Performance of Buildings (Certificates and Inspections) (England and Wales) Regulations 2007 or the Home Report if in relation to a residential property in Scotland.
*This is the average speed from the provider with the fastest broadband package available at this postcode. The average speed displayed is based on the download speeds of at least 50% of customers at peak time (8pm to 10pm). Fibre/cable services at the postcode are subject to availability and may differ between properties within a postcode. Speeds can be affected by a range of technical and environmental factors. The speed at the property may be lower than that listed above. You can check the estimated speed and confirm availability to a property prior to purchasing on the broadband provider's website. Providers may increase charges. The information is provided and maintained by Decision Technologies Limited. **This is indicative only and based on a 2-person household with multiple devices and simultaneous usage. Broadband performance is affected by multiple factors including number of occupants and devices, simultaneous usage, router range etc. For more information speak to your broadband provider.
Map data ©OpenStreetMap contributors.






