Tavern Close, Cramlington, Northumberland, NE23 8AR

- PROPERTY TYPE
Detached
- BEDROOMS
4
- BATHROOMS
2
- SIZE
Ask agent
- TENUREDescribes how you own a property. There are different types of tenure - freehold, leasehold, and commonhold.Read more about tenure in our glossary page.
Freehold
Key features
- Beautifully presented
- Corner plot
- Four double bedrooms
- Close to amenities
- West facing garden
Description
Occupying a generous corner plot on a sought-after private estate developed by Avant Homes, this beautifully maintained four-bedroom detached house offers an outstanding opportunity for family living. Ideally located close to the local railway station and just a short drive from town centre amenities, the property combines convenience with comfort and space.
At the heart of the home is a stunning open-plan family room and kitchen, expertly extended to include bi-fold doors and a lantern roof, flooding the space with natural light and creating a perfect area for entertaining or everyday family life. The original integral garage has been thoughtfully converted, providing an additional versatile room ideal for a playroom, home office, or snug.
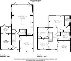
Ground Floor
Entrance Hall: Feature oak and glass staircase, understairs storage, tiled flooring.
Cloakroom: Modern suite with floating basin, WC, and designer radiator.
Living Room One: Front-facing with fireplace recess and cast iron log burner.
Living Room Two: Converted from original garage, versatile extra living space.
Open-Plan Kitchen/Family Room: Bright and spacious with lantern roof, bi-fold doors, central island, integrated appliances, wine/beer fridge, and TV wall mount. Three designer radiators, recessed lighting, fully tiled floors.
Utility Room: Workbenches, plumbing for washer, gas boiler.
First Floor
Landing: With study area, storage cupboard, and loft access.
Master Bedroom: Includes dressing area, fitted wardrobes, and en suite with rain shower, floating vanity unit, and full tiling.
Three Double Bedrooms: All well-proportioned, one with built-in wardrobes.
Family Bathroom: Double-ended bath, overhead rain shower, floating basin, WC, and full tiling.
Exterior
Driveway for Two Cars, electric car charging point.
The west-facing rear aspect ensures plenty of afternoon and evening sun, while the internal layout offers spacious and flexible accommodation throughout.
This modern and flexible family home offers generous space, quality finishes, and a sought-after location. Early viewing is highly recommended.
Council Tax Band: E
Tenure: Freehold
Brochures
Brochure- COUNCIL TAXA payment made to your local authority in order to pay for local services like schools, libraries, and refuse collection. The amount you pay depends on the value of the property.Read more about council Tax in our glossary page.
- Band: E
- PARKINGDetails of how and where vehicles can be parked, and any associated costs.Read more about parking in our glossary page.
- Driveway
- GARDENA property has access to an outdoor space, which could be private or shared.
- Yes
- ACCESSIBILITYHow a property has been adapted to meet the needs of vulnerable or disabled individuals.Read more about accessibility in our glossary page.
- Ask agent
Tavern Close, Cramlington, Northumberland, NE23 8AR
Add an important place to see how long it'd take to get there from our property listings.
__mins driving to your place
Get an instant, personalised result:
- Show sellers you’re serious
- Secure viewings faster with agents
- No impact on your credit score

Your mortgage
Notes
Staying secure when looking for property
Ensure you're up to date with our latest advice on how to avoid fraud or scams when looking for property online.
Visit our security centre to find out moreDisclaimer - Property reference 489325. The information displayed about this property comprises a property advertisement. Rightmove.co.uk makes no warranty as to the accuracy or completeness of the advertisement or any linked or associated information, and Rightmove has no control over the content. This property advertisement does not constitute property particulars. The information is provided and maintained by Pattinson Estate Agents, Cramlington. Please contact the selling agent or developer directly to obtain any information which may be available under the terms of The Energy Performance of Buildings (Certificates and Inspections) (England and Wales) Regulations 2007 or the Home Report if in relation to a residential property in Scotland.
*This is the average speed from the provider with the fastest broadband package available at this postcode. The average speed displayed is based on the download speeds of at least 50% of customers at peak time (8pm to 10pm). Fibre/cable services at the postcode are subject to availability and may differ between properties within a postcode. Speeds can be affected by a range of technical and environmental factors. The speed at the property may be lower than that listed above. You can check the estimated speed and confirm availability to a property prior to purchasing on the broadband provider's website. Providers may increase charges. The information is provided and maintained by Decision Technologies Limited. **This is indicative only and based on a 2-person household with multiple devices and simultaneous usage. Broadband performance is affected by multiple factors including number of occupants and devices, simultaneous usage, router range etc. For more information speak to your broadband provider.
Map data ©OpenStreetMap contributors.




