
Mill Grove, Drury Close, Stowmarket, Suffolk, IP14 1FS

- PROPERTY TYPE
Bungalow
- BEDROOMS
3
- BATHROOMS
2
- SIZE
1,037 sq ft
96 sq m
- TENUREDescribes how you own a property. There are different types of tenure - freehold, leasehold, and commonhold.Read more about tenure in our glossary page.
Freehold
Key features
- Open plan kitchen/living/dining area.
- A high specification as standard with intergrated appliances
- Flooring included to certain areas
- Separate living room
- Overlooking green open space
- Garage and parking
- Fitted wardrobe to the master bedroom
- Superfast FTTP broadband - useful if you work from home
- Security of a 10 Year NHBC Buildmark Warranty, which includes a 2 year Hopkins Homes warranty
- A hassle free move with no chain!
Description
Perfect for those looking to downsize without compromise or simply enjoy a more relaxed lifestyle, The Haughly combines traditional architecture with thoughtful modern detailing throughout.
Step inside to a generous open plan kitchen, dining and living area, filled with natural light and seamlessly extending to your south facing rear garden, a great space for morning coffee, evening entertaining or weekend relaxation. The principal bedroom benefits from an en suite and fitted wardrobe, with two additional bedrooms and a family bathroom offering flexibility for guests, hobbies or a home office.
Set within the desirable Mill Grove community, this home overlooks open space and enjoys the tranquillity of its surroundings, while still being close to the charm and amenities of Stowmarket. With a garage, parking and easy single level access, The Haughly offers a lifestyle of comfort and convenience.
*Images show an indicative interior.
Estimated Completion - Spring 2026
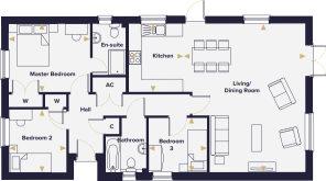
Room Dimensions
Kitchen
3.22m x 2.52m
10'7'' x 8'4''
Living/Dining Room
6.99m x 5.72m
23'0'' x 18'10''
Master Bedroom
3.82m x 3.22m
12'7'' x 10'7''
Bedroom 2
2.97m x 2.70m
9'9'' x 8'11''
Bedroom 3
2.74m x 2.56m
9'0'' x 8'5''
About Mill Grove and Stowmarket
Located on the edge of the historic market town of Stowmarket, Mill Grove offers the beauty of rural living alongside all the facilities and convenience you would expect within a thriving town. Set within the heart of the idyllic Suffolk countryside and yet ideally located for travel, Stowmarket offers a range of shopping and leisure facilities as well as its own main line train station.
The town high street has a unique blend of national and independent retailers, with a range of family run specialist stores and national chains that provide a variety of products. The local market, held on Thursdays and Saturdays, offers fresh local produce from the region whilst a selection of large supermarkets and smaller stores cater for all your grocery and household needs.
Location
The town occupies a perfectly central location, only 2 miles from the A14, the main trunk road through the heart of Suffolk and, being just over a mile from the train station, you can be in Ipswich in 14 minutes, Bury St Edmunds in 20 minutes or Norwich in 32 minutes. Heading into the capital is easy as there is a direct line into London Liverpool Street offering journey times of just 78
minutes.
Entertainment is plentiful with both the John Peel Centre for Creative Arts and the Regal Theatre hosting a variety of events including live music, theatre, comedy nights and blockbuster film screenings. . There are also plenty of sports clubs including rugby, football, cricket and bowls and an abundance of hobbies to take up or perfect from amateur dramatics, falconry, golf, fencing, martial arts, Pilates and several bands and choirs. Everything you could want for a great lifestyle is all close to home.
Education
For families, Stowmarket affords a variety of schools covering all key stages, including playgroups and nurseries, as well as two tier education with further education opportunities available at Suffolk New College, Suffolk One and the University of Suffolk all located in nearby Ipswich. The highly rated Finborough School, an independent day and boarding school, is just under 3 miles away.*
Top 10 Reasons to Buy with Hopkins Homes
1. A house builder you can trust - we are a multi-award-winning house builder and are driven to build exceptional quality homes.
2. Modern homes with heritage at their heart - our homes are expertly designed to create contemporary houses using faultless housebuilding traditions.
3. Homes that stand the test of time - buying a brand-new home eliminates the cost and time of repairs and renovations.
4. Stress free living - our 10-year NHBC warranty includes 2-year Hopkins Homes warranty offers you security you do not get when buying a second-hand property.
5. No chain - move into your Hopkins home as soon as it's ready.
6. Energy efficient living - the central heating in our homes is controlled via thermostatically controlled radiators.
7. Building new communities - our developments offer the chance to join a flourishing new community.
8. Homes that will last for generations - we create homes families are proud of and establish long lasting legacies in our communities.
9. A home to make your own - with our expansive interior specification choices.
10. Homes for everyone - from affordable starter homes to executive five-bedroom homes, we create houses for everybody.
- COUNCIL TAXA payment made to your local authority in order to pay for local services like schools, libraries, and refuse collection. The amount you pay depends on the value of the property.Read more about council Tax in our glossary page.
- Ask developer
- PARKINGDetails of how and where vehicles can be parked, and any associated costs.Read more about parking in our glossary page.
- Yes
- GARDENA property has access to an outdoor space, which could be private or shared.
- Yes
- ACCESSIBILITYHow a property has been adapted to meet the needs of vulnerable or disabled individuals.Read more about accessibility in our glossary page.
- Ask developer
Energy performance certificate - ask developer
- Historic market town of Stowmarket
- Heart of the idyllic Suffolk countryside
- Variety of schools
- Perfectly central location
Mill Grove, Drury Close, Stowmarket, Suffolk, IP14 1FS
Add an important place to see how long it'd take to get there from our property listings.
__mins driving to your place
Get an instant, personalised result:
- Show sellers you’re serious
- Secure viewings faster with agents
- No impact on your credit score
About Hopkins Homes
A Tradition of Excellence
From cottage to country to town house, every Hopkins home has a personality you'll love – from the classic look and feel to the everyday practicality of modern living.
There's something about the look of older buildings that appeals to us all. The design, the scale, the feel - our approach takes those qualities that have stood the test of time and blends them with the convenience, practicality and low maintenance demanded by today's modern lifestyle. The result is a home that we and many of our purchasers believe is a joy to own and to live in.
We’re proud of what we do and of the contributions we make to people’s lives and communities. While it’s great to be recognised by industry experts, we never rest on our laurels. That’s why we continue to be awarded year after year.
We are an enthusiastic team of professionals whose skills encompass planning, design, construction and, importantly, after sales - a dedicated customer care team is on hand to take care of any teething problems, however minor.
You can be sure that a home by Hopkins Homes is designed and built to last. Homes that people trust and aspire to.
Craftsmanship
The key to our look and feel is the traditional crafts and materials we use. It’s our focus on the little details that helps set us apart from other housebuilders.
From the careful selection of bricks and brick detailing to window placements and beautiful front entranceways, the exterior of a Hopkins home is always full of character and charm.
Internally, you will find contemporary interior design, superior appliances, the finest of finishing touches – everything you can expect and more from a Hopkins Home.
Kitchen tiled splashbacks are provided as standard, along with fitted wardrobes in most bedrooms, the latest high-speed broadband, coving, and raised ceiling heights to provide that essential ‘light and airy’ feel.
Placemaking
At Hopkins Homes, we spend as much time designing the spaces that embody our developments as we do our homes.
Consideration for the environment plays a large part in our design concepts - trees and natural hedges are often retained as boundaries, experts are consulted to assist where appropriate and additional planting is introduced to mature in keeping with existing surroundings.
Every home is thoughtfully positioned, taking into account the topography, weather, sound and privacy needed.
The Hopkins Homes approach is straightforward: to do what's right to the highest possible standards, the results of which are borne out time and time again. Our homes are hailed by customers and estate agents alike for their continuing desirability and value.
Sustainable Living
We incorporate energy-saving features in all our homes, often going beyond the statutory requirements, helping to reduce heat loss and the emission of greenhouse gases.
With every home, we take a ‘fabric-first’ approach. Instead of adding environmental measures as an afterthought, we weave them into the fabric of each property.
We are introducing air source heat pumps, underfloor heating, zoned heating, car charging points or an allowance for, wastewater heat recovery and photovoltaic panels on some of our developments.
This is in addition to the usual energy efficient savings you would expect from a modern home including insulated lofts and cavities, double glazed windows, LED lighting and water efficient sanitaryware, kitchen fittings and appliances.
Every property comes with its own independent energy audit.
Having a more energy efficient home will significantly reduce your household bills. All our homes achieve a minimum EPC (energy performance certificate) rating of B and according to Which? the average EPC rating for a home in the UK is D.
The Home Builders Federation ‘Greener, Cleaner, Cheaper’ report states that owners of new build homes can save approximately £435 a year on household bills, with more significant savings gained on houses at £555 per year.
Your mortgage
Notes
Staying secure when looking for property
Ensure you're up to date with our latest advice on how to avoid fraud or scams when looking for property online.
Visit our security centre to find out moreDisclaimer - Property reference 86_Haughly. The information displayed about this property comprises a property advertisement. Rightmove.co.uk makes no warranty as to the accuracy or completeness of the advertisement or any linked or associated information, and Rightmove has no control over the content. This property advertisement does not constitute property particulars. The information is provided and maintained by Hopkins Homes. Please contact the selling agent or developer directly to obtain any information which may be available under the terms of The Energy Performance of Buildings (Certificates and Inspections) (England and Wales) Regulations 2007 or the Home Report if in relation to a residential property in Scotland.
*This is the average speed from the provider with the fastest broadband package available at this postcode. The average speed displayed is based on the download speeds of at least 50% of customers at peak time (8pm to 10pm). Fibre/cable services at the postcode are subject to availability and may differ between properties within a postcode. Speeds can be affected by a range of technical and environmental factors. The speed at the property may be lower than that listed above. You can check the estimated speed and confirm availability to a property prior to purchasing on the broadband provider's website. Providers may increase charges. The information is provided and maintained by Decision Technologies Limited. **This is indicative only and based on a 2-person household with multiple devices and simultaneous usage. Broadband performance is affected by multiple factors including number of occupants and devices, simultaneous usage, router range etc. For more information speak to your broadband provider.
Map data ©OpenStreetMap contributors.






