
2 bedroom flat for sale
Snuff Street, Devizes, SN10

- PROPERTY TYPE
Flat
- BEDROOMS
2
- BATHROOMS
1
- SIZE
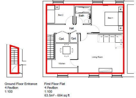
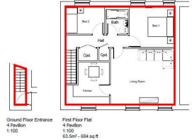
684 sq ft
64 sq m
Key features
- 2-bedroom apartment
- In the heart of Devizes town centre
- Ideal for first time buyers, downsizers or investors
- Large wooden sash windows
- Character conversion
- 1 allocated parking space
- No onward chain
- Leasehold - share of freehold
Description
The building was completely refurbished in 2023, and now returns to the market in good condition with no onward chain.
The layout is practical and well-balanced, offering around 684 sq ft of space. Inside, there's a bright open-plan living/kitchen area with plenty of room for relaxing and entertaining, two comfortable bedrooms, and a sleek, modern bathroom.
This would make an ideal first home for someone wanting to be close to the town centre, a great option for downsizers looking for something easy to manage, or a solid buy-to-let investment in a consistently popular spot. With no major work needed and everything on your doorstep—including cafés, shops, restaurants, and transport links—this one’s well worth a look.
Property Information - Agents note: The current photos on the listing were taken before the current tenant moved in.
Tenure: Leasehold - share of freehold. 990 year lease from 17/07/2023. We have been advised that the service charge is currently £1911.48 per annum.
Electric room heaters. We are advised mains electricity, drainage and water are connected at the property.
Council tax band: A
EPC rating: E
Situation - Snuff Court is well situated right in the heart of the town and only a stone's throw from supermarkets and other amenities. The historic market town of Devizes has many amenities including town centre shopping, a leisure centre, schools for all ages, various supermarkets, a variety of shops, cinema, theatre and thriving weekly market. The historic Kennet & Avon Canal runs through the town providing fishing and walking facilities. The major centres of Bath, Salisbury, Swindon, Marlborough and Chippenham are all within a 30 mile radius.
Brochures
Snuff Street, Devizes, SN10- COUNCIL TAXA payment made to your local authority in order to pay for local services like schools, libraries, and refuse collection. The amount you pay depends on the value of the property.Read more about council Tax in our glossary page.
- Band: A
- PARKINGDetails of how and where vehicles can be parked, and any associated costs.Read more about parking in our glossary page.
- Communal
- GARDENA property has access to an outdoor space, which could be private or shared.
- Ask agent
- ACCESSIBILITYHow a property has been adapted to meet the needs of vulnerable or disabled individuals.Read more about accessibility in our glossary page.
- Ask agent
Snuff Street, Devizes, SN10
Add an important place to see how long it'd take to get there from our property listings.
__mins driving to your place
Get an instant, personalised result:
- Show sellers you’re serious
- Secure viewings faster with agents
- No impact on your credit score
Your mortgage
Notes
Staying secure when looking for property
Ensure you're up to date with our latest advice on how to avoid fraud or scams when looking for property online.
Visit our security centre to find out moreDisclaimer - Property reference 34050999. The information displayed about this property comprises a property advertisement. Rightmove.co.uk makes no warranty as to the accuracy or completeness of the advertisement or any linked or associated information, and Rightmove has no control over the content. This property advertisement does not constitute property particulars. The information is provided and maintained by Strakers, Devizes & Pewsey Vale. Please contact the selling agent or developer directly to obtain any information which may be available under the terms of The Energy Performance of Buildings (Certificates and Inspections) (England and Wales) Regulations 2007 or the Home Report if in relation to a residential property in Scotland.
*This is the average speed from the provider with the fastest broadband package available at this postcode. The average speed displayed is based on the download speeds of at least 50% of customers at peak time (8pm to 10pm). Fibre/cable services at the postcode are subject to availability and may differ between properties within a postcode. Speeds can be affected by a range of technical and environmental factors. The speed at the property may be lower than that listed above. You can check the estimated speed and confirm availability to a property prior to purchasing on the broadband provider's website. Providers may increase charges. The information is provided and maintained by Decision Technologies Limited. **This is indicative only and based on a 2-person household with multiple devices and simultaneous usage. Broadband performance is affected by multiple factors including number of occupants and devices, simultaneous usage, router range etc. For more information speak to your broadband provider.
Map data ©OpenStreetMap contributors.





