
Land for sale
Slindon - Development potential
- PROPERTY TYPE
Land
- SIZE
Ask agent
Key features
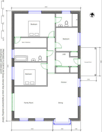
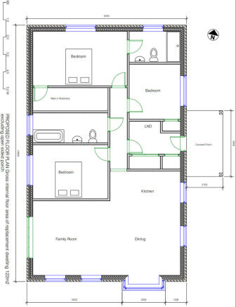
- Proposed accommodation (under the approved planning permission) will comprise:
- Single storey dwelling - approx. 1313sqft
- Existing Site Features include:
- Garage and Workshop,
- Three-Bay Stables, tack room and storage
- Hardened entrance and driveway with large parking area
- and 0.2 acre paddock to the rear
- Additional information: Tenure is Freehold
- Local Authority is South Downs National Park
- CIL is liable
Description
The site benefits from an established and hardened entrance with a generous parking area, and a comprehensive range of existing outbuildings including a large garage/workshop with electric door, lighting and power, and equestrian facilities comprising a three-bay stable block with tack room and storage.
There is also an adjoining paddock of approximately 0.2 acres. This is a flexible and exciting opportunity for a range of buyers, with scope to either develop the site in line with the approved consent or retain the existing setup for residential, leisure, or mixed-use purposes.
FURTHER INFORMATION The proposed accommodation under the approved planning permission will comprise:
Single-Storey Dwelling (Approx. 122 sqm / 1,313 sq ft)
- Entrance Hall
- Spacious Kitchen / Dining Room
- Separate Sitting Room
- Principal Bedroom with En-Suite
- Two Further Bedrooms
- Family Bathroom
Existing Site Features
- Garage & Workshop with electric door, lighting and power
- Three-Bay Stables with tack room and storage
- Hardened entrance and driveway with large parking area
- 0.2-acre paddock to the rear
Additional Information:
- Tenure: Freehold
- Local Authority: South Downs National Park Authority
- Services: Mains water and electricity, private drainage
- CIL: Buyers should make their own enquiries regarding liability
Cil is Liable
Brochures
BrochureSlindon - Development potential
NEAREST STATIONS
Distances are straight line measurements from the centre of the postcode- Barnham Station2.0 miles
- Ford Station2.5 miles
- Arundel Station3.2 miles
Notes
Disclaimer - Property reference 100074007051. The information displayed about this property comprises a property advertisement. Rightmove.co.uk makes no warranty as to the accuracy or completeness of the advertisement or any linked or associated information, and Rightmove has no control over the content. This property advertisement does not constitute property particulars. The information is provided and maintained by Fowlers, Storrington. Please contact the selling agent or developer directly to obtain any information which may be available under the terms of The Energy Performance of Buildings (Certificates and Inspections) (England and Wales) Regulations 2007 or the Home Report if in relation to a residential property in Scotland.
Map data ©OpenStreetMap contributors.








