
Stackwood Avenue, Barrow-in-furness, LA13 9HH

- PROPERTY TYPE
Terraced
- BEDROOMS
3
- BATHROOMS
1
- SIZE
Ask agent
- TENUREDescribes how you own a property. There are different types of tenure - freehold, leasehold, and commonhold.Read more about tenure in our glossary page.
Freehold
Key features
- Nicely proportioned accommodation
- Dual aspect lounge
- Three bedrooms
- Large shower room
- Gas-fired central heating system
- Combination of single and double glazed windows
- Garden to the front and rear
- No upper chain
- Council tax band A
Description
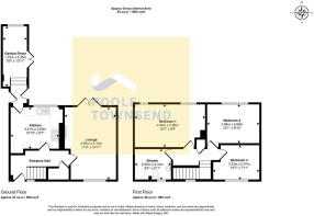
This terraced home is set in a slightly elevated position which gives improved privacy to the house. The accommodation is nicely proportioned and comprises; dual aspect lounge with direct access to the garden, a kitchen with access to the converted outhouses which now forms a garden room/storage room that also has direct access to the garden. The first floor retains its layout of three nicely proportioned bedrooms and a large shower room. The property has gas-fired central heating system and a combination of single and double glazed windows, garden to the front and to the rear. No upper chain.
Location
What3Words///snows.moon.barks
Description
This mid-terrace property provides family sized accommodation that will also appeal to first-time purchasers and couples searching for a house that they can grow into.
The living space is accessed from the entrance hall where there is a staircase with a useful storage cupboard beneath.
The lounge is a great size room that runs the full depth of the property, featuring a large window to the front elevation and glazed double doors to the rear opening onto the patio. There is a central fireplace with a gas fire creating a focal point and secondary heating option.
The kitchen has modern fitted units with a cream finish to the panelled door and drawer fronts and a contrasting wood effect work surface above with an inset sink. There is space to accommodate a range style cooker, fridge freezer and washing machine.
The former single-storey outbuildings at the back of the property has been developed and extended so there is a direct link to the main house. This room has multiple points of access leading to the shared ginnel that provides access between the front and rear garden. There are also two sets of doors leading into the main garden itself.
The landing has a built-in cupboard providing storage, loft access and doors to each of the three nicely proportioned bedrooms and to the shower room.
The shower room has a three-piece suite that includes a close coupled WC, pedestal wash hand basin and a shower enclosure with an electric wall mounted shower unit.
Tenure
Freehold. Please note, there is also a flying freehold that extends over shared ginnel.
Services
Mains gas, electricity, water and drainage.
Brochures
Brochure 1- COUNCIL TAXA payment made to your local authority in order to pay for local services like schools, libraries, and refuse collection. The amount you pay depends on the value of the property.Read more about council Tax in our glossary page.
- Band: A
- PARKINGDetails of how and where vehicles can be parked, and any associated costs.Read more about parking in our glossary page.
- On street
- GARDENA property has access to an outdoor space, which could be private or shared.
- Private garden
- ACCESSIBILITYHow a property has been adapted to meet the needs of vulnerable or disabled individuals.Read more about accessibility in our glossary page.
- Ask agent
Stackwood Avenue, Barrow-in-furness, LA13 9HH
Add an important place to see how long it'd take to get there from our property listings.
__mins driving to your place
Get an instant, personalised result:
- Show sellers you’re serious
- Secure viewings faster with agents
- No impact on your credit score



Your mortgage
Notes
Staying secure when looking for property
Ensure you're up to date with our latest advice on how to avoid fraud or scams when looking for property online.
Visit our security centre to find out moreDisclaimer - Property reference S1394145. The information displayed about this property comprises a property advertisement. Rightmove.co.uk makes no warranty as to the accuracy or completeness of the advertisement or any linked or associated information, and Rightmove has no control over the content. This property advertisement does not constitute property particulars. The information is provided and maintained by Poole Townsend, Barrow-in-Furness. Please contact the selling agent or developer directly to obtain any information which may be available under the terms of The Energy Performance of Buildings (Certificates and Inspections) (England and Wales) Regulations 2007 or the Home Report if in relation to a residential property in Scotland.
*This is the average speed from the provider with the fastest broadband package available at this postcode. The average speed displayed is based on the download speeds of at least 50% of customers at peak time (8pm to 10pm). Fibre/cable services at the postcode are subject to availability and may differ between properties within a postcode. Speeds can be affected by a range of technical and environmental factors. The speed at the property may be lower than that listed above. You can check the estimated speed and confirm availability to a property prior to purchasing on the broadband provider's website. Providers may increase charges. The information is provided and maintained by Decision Technologies Limited. **This is indicative only and based on a 2-person household with multiple devices and simultaneous usage. Broadband performance is affected by multiple factors including number of occupants and devices, simultaneous usage, router range etc. For more information speak to your broadband provider.
Map data ©OpenStreetMap contributors.






