3 bedroom detached bungalow for sale
Bothel, Wigton

- PROPERTY TYPE
Detached Bungalow
- BEDROOMS
3
- BATHROOMS
2
- SIZE
Ask agent
- TENUREDescribes how you own a property. There are different types of tenure - freehold, leasehold, and commonhold.Read more about tenure in our glossary page.
Freehold
Key features
- *** ONLINE VIEWING AVAILABLE ***
- A rare opportunity to make this spacious property your dream home!
- Detached Bungalow in Sought-After Village Location
- Well-Proportioned 3-Bed Home Boasting Parking & Attractive Gardens
- Enjoy Stunning Outlooks – A Home with a Super View!
- Spacious, Versatile & Full of Possibilities!
- Viewing is highly recommended – opportunities like this don’t come along often!
- Conveniently located for the Lake District National Park, with easy access to Cockermouth, Carlisle, and surrounding western towns
- The village thrives on a great sense of community spirit, with residents coming together to support one another and celebrate local life
- EPC Rating-E
Description
With generous space, plenty of potential, and an abundance of natural light, this well-proportioned three-bedroom detached dormer bungalow in Bothel is a fantastic find!
Set in neatly maintained gardens with a lovely outlook across rooftops to the Scottish Fells, the property enjoys a peaceful setting while remaining convenient for the Lake District, the coast, Cockermouth, and Carlisle. It’s just a stone’s throw from the village primary school, within the catchment for Outstanding schools, and only a short stroll to the local pub.
The accommodation is practical and well planned, offering the chance to move straight in while the kitchen and outhouse would benefit from some updating, the house as a whole is in very good shape. Three double bedrooms, two reception rooms, two bathrooms, a spacious kitchen, perfect for cooking and entertaining , complemented by attractive gardens and a driveway for two cars.
Things You Need To Know - The property benefits from oil-fired central heating, with the boiler located in the outhouse.
Both the first-floor shower room and ground-floor bathroom feature programmable underfloor heating, and the property is fully double glazed.
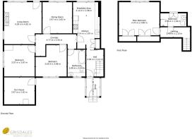
Inner Porch - 2.18 x 1.59 (7'1" x 5'2") - The property is accessed via a uPVC door which leads to into inner porch. With windows to three sides and a polycarbonate ceiling grey slate floor and step up leading into:
Entrance Hallway - 3.14 x 2.02 (10'3" x 6'7") - With parquet floor, open tread pine staircase to first floor level, alcove and small understairs fitted cupboard. Coving. Sliding door leading into kitchen.
Inner Hallway - 4.77 x 2.56 (15'7" x 8'4") - With spotlighting and coat hooks.
Lounge - 4.92 x 4.39 (16'1" x 14'4") - Large window overlooking the front with a delightful outlook over rooftops to countryside in the distance. Open fire on tiled hearth with matching surround. Coving, telephone and television points and patio door leading out to the garden.
Dining Room - 3.65 x 3.47 (11'11" x 11'4") - With window overlooking the front and coving.
Kitchen - 3.87 x 3.14 + 3.14 x 1.58 (12'8" x 10'3" + 10'3" x - Fitted with a range of base and wall units with white laminate worktop over and tiled splashback. Includes stainless steel sink, space for electric cooker, space for fridge freezer.
Coving, spotlighting, large window overlooking the garden and ample space for dining table. Two sets of double fronted built-in cupboards.
Bedroom 2 - 3.68 x 3.65 (12'0" x 11'11") - Double room to the rear.
Bedroom 3 - 3.67 x 3.57 (12'0" x 11'8") - Double room to the side with coving.
Bathroom 1 - 3.14 x 2.08 (10'3" x 6'9") - Fitted with bath, with chrome mixer tap over, and wall mounted chrome shower with attachments. Clear screen in chrome frame, low-level WC and wash basin set into white fronted vanity unit with chrome handles and white laminate work top over. Fitted mostly with grey marble effect tiling. Grey tiled floor, chrome ladder style radiator, shaver point and chrome bathroom fittings. Frosted window to the rear and extractor fan.
Landing - With round, frosted glass feature window to the side.
Bedroom 1 - 4.74 x 3.89 (15'6" x 12'9") - A fabulous double bedroom with an outlook over the rooftops to the countryside in the distance. Two sets of double built-in cupboards, one containing header tank and cylinder tank.
Bathroom 2 - 3.06 x 1.54 (10'0" x 5'0") - Fitted with shower enclosure, with curved screen and chrome frame, and wall mounted electric shower with attachments, wash basin with chrome mixer tap with vanity unit below and low-level WC. Pale grey tiled floor and ceramic tiles to the walls, wall mounted chrome bathroom fittings, extractor fan, spotlights and chrome ladder style electric radiator. Useful under eaves storage cupboard.
Front Garden - Accessed via a gate from the road, or from the lounge, with steps down leading to a large patio. Surrounded by beautifully maintained borders of shrubs and flowers, along with a lovely collection of trees.
Drive And Rear Garden - To the rear of the property a gateway leads into a gravel parking area, surrounded by shrubs and planting. Bin store area and bunded oil tank.
Outhouse - 3.57 x 3.16 (11'8" x 10'4") - Accessed via a uPVC door and leads into a spacious utility room fitted with shelving and plumbing with for washing machine. Oil central heating boiler and fuse box.
Outlook - From the front of the property is a delightful outlook over rooftops to the Scottish fells in the distance.
Directions - W3W ///freedom.releasing.divisible
From the A595 from the Cockermouth direction turn off at the first turning opposite the Keswick junction. Proceed through the village, bearing left and the property is located on the right hand side.
Council Tax - We have been advised by Cumberland Council ) that this property is placed in Tax Band D
Viewing Arrangements - To view this property, please contact us on
Notes To Brochure - Please note that all measurements have been taken using a laser tape measure which may be subject to a small margin of error. None of the appliances, heating system or fittings included within the sale have been tested or can be assumed to be in full working order. Purchasers are strongly advised to satisfy themselves by way of survey and their own enquiries. The brochure does not constitute a contract, part of a contract or warranty.
The Consumer Protection Regulations 2008 - Please contact us before viewing the property. If there is any point of particular importance to you we will be pleased to provide additional information or to make further enquiries. We will also confirm that the property remains available. This is particularly important if you are contemplating travelling some distance to view the property.
Moving With Grisdales - Moving is an exciting time but only if everything proceeds smoothly. Whether you are selling, letting, buying or renting, we understand that moving home can be a very stressful and daunting prospect. That's why, at Grisdales, we work together as a team, giving dedicated support and advice every step of the way to help your move run as smoothly and efficiently as possible.
Free Market Appraisal - If you are thinking of moving, we offer a completely free market valuation and appraisal of your existing home. We will advise you upon an asking price which accurately positions your property in the current market place, maximising viewings and your sale prospects.
Lettings And Management - If you are interested in property as an investment, we can help you every step of the way from Buy to Let advice to effective property letting and management
Surveys And Valuations - We want your purchase to live up to those dreams, hopes and expectations. You need to know that your new home will not only be a sound investment, but also one which you will enjoy without the worry of the unknown. Grisdales offer a wide range of survey and valuation reports to meet different needs all backed by the qualification, experience and knowledge of a Chartered Surveyor.
Mortgage Advice - Grisdales works with The Right Advice Cumbria (Bulman Pollard) part of The Right Mortgage Ltd, one of the UK's fastest-growing Networks, offering expert professional advice to find the right mortgage for you. We have access to thousands of mortgages from across the whole market in the UK.
Our advice will be specifically tailored to your needs and circumstances which could be for your first home, moving home, re-mortgaging or investing in property. To find out more about how we can assist you, just call your nearest Grisdales office.
Your home or property may be repossessed if you do not keep up repayments on your mortgage. Some forms of Buy to Let Mortgages are not regulated by the Financial Conduct Authority. You may be charged a fee for mortgage advice. The actual amount you pay will depend upon your circumstances.
Brochures
Bothel, Wigton- COUNCIL TAXA payment made to your local authority in order to pay for local services like schools, libraries, and refuse collection. The amount you pay depends on the value of the property.Read more about council Tax in our glossary page.
- Band: D
- PARKINGDetails of how and where vehicles can be parked, and any associated costs.Read more about parking in our glossary page.
- Yes
- GARDENA property has access to an outdoor space, which could be private or shared.
- Yes
- ACCESSIBILITYHow a property has been adapted to meet the needs of vulnerable or disabled individuals.Read more about accessibility in our glossary page.
- Ask agent
Bothel, Wigton
Add an important place to see how long it'd take to get there from our property listings.
__mins driving to your place
Get an instant, personalised result:
- Show sellers you’re serious
- Secure viewings faster with agents
- No impact on your credit score



Your mortgage
Notes
Staying secure when looking for property
Ensure you're up to date with our latest advice on how to avoid fraud or scams when looking for property online.
Visit our security centre to find out moreDisclaimer - Property reference 34054239. The information displayed about this property comprises a property advertisement. Rightmove.co.uk makes no warranty as to the accuracy or completeness of the advertisement or any linked or associated information, and Rightmove has no control over the content. This property advertisement does not constitute property particulars. The information is provided and maintained by Grisdales Estate Agents, Cockermouth. Please contact the selling agent or developer directly to obtain any information which may be available under the terms of The Energy Performance of Buildings (Certificates and Inspections) (England and Wales) Regulations 2007 or the Home Report if in relation to a residential property in Scotland.
*This is the average speed from the provider with the fastest broadband package available at this postcode. The average speed displayed is based on the download speeds of at least 50% of customers at peak time (8pm to 10pm). Fibre/cable services at the postcode are subject to availability and may differ between properties within a postcode. Speeds can be affected by a range of technical and environmental factors. The speed at the property may be lower than that listed above. You can check the estimated speed and confirm availability to a property prior to purchasing on the broadband provider's website. Providers may increase charges. The information is provided and maintained by Decision Technologies Limited. **This is indicative only and based on a 2-person household with multiple devices and simultaneous usage. Broadband performance is affected by multiple factors including number of occupants and devices, simultaneous usage, router range etc. For more information speak to your broadband provider.
Map data ©OpenStreetMap contributors.




