
5 bedroom terraced house for sale
Kingston Road, North End PO2 7LR

- PROPERTY TYPE
Terraced
- BEDROOMS
5
- BATHROOMS
1
- SIZE
Ask agent
- TENUREDescribes how you own a property. There are different types of tenure - freehold, leasehold, and commonhold.Read more about tenure in our glossary page.
Freehold
Description
TO BE SOLD BY PUBLIC AUCTION AT A DATE TO BE CONFIRMED
(UNLESS SOLD PREVIOUSLY).
GUIDE PRICE: £224,995
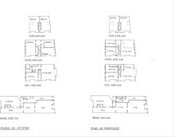
We invite IMMEDIATE CASH OFFERS, prior to possible Public Auction, from investors and developers for this MIXED COMMERCIAL/RESIDENTIAL BUILDING, the ground floor retail part being LET currently, the upper three floors (six rooms plus kitchen and bathroom) being VACANT and having considerable potential. Kingston Road runs from Fratton Road to London Road, No. 232 being on the east side a little to the north of Powerscourt Road. This convenient, secondary trading area and residential address is close to a wide range of public amenities. The premises comprise a late-Victorian four-storey building with brick elevations under a pitched roof, the facade incorporating splay bay window, glazed shop front, and private door to the living accommodation. Trading as Matts Fisheries, the retail unit is LET at £550 p.c.m. on a renewed 3 year lease from 12th April 2024. The upper living accommodation is available with the benefit of VACANT POSSESSION, having been previously occupied (informally) as shared rooms. Planning consent (not implemented, and since lapsed) was granted in 2008 for conversion of this part to form a 1 Bedroom Flat plus a 2 Bedroom Maisonette. Offering much scope to create a lucrative investment return, full particulars of this opportunity are given as follows:
SHOP
RETAIL AREA - 6.1m x 3.68m (20'0" x 12'1")
PREPARATION ROOM - 3.56m x 2.97m (11'8" x 9'9")
REAR STORE 1 - 5.77m x 1.42m (18'11" x 4'8")
REAR STORE 2 - 6.1m x 3.05m (20'0" x 10'0")
LIVING ACCOMMODATION
Hallway
First Floor
Room One - 4.98m x 4.32m (16'4" x 14'2")
Kitchen - 3.86m x 2.54m (12'8" x 8'4")
Bathroom & W.C. - 2.39m x 1.8m (7'10" x 5'11")
Second Floor
Landing
Room Two - 4.52m x 3.12m (14'10" x 10'3")
Room Three - 4.37m x 2.49m (14'4" x 8'2")
Room Four - 3.05m x 2.21m (10'0" x 7'3")
Top (3rd) Floor
Small Landing
Room Five - 4.62m x 2.67m (15'2" x 8'9")
Room Six - 4.65m x 2.79m (15'3" x 9'2")
OUTSIDE
Commercial EPC 'C'
Residential EPC 'D'
RESIDENTIAL COUNCIL TAX
VIEWING
D. M. NESBIT & CO.
(17831/048317)
ADDITIONAL AUCTION COSTS
Brochures
Brochure 1Full Details- COUNCIL TAXA payment made to your local authority in order to pay for local services like schools, libraries, and refuse collection. The amount you pay depends on the value of the property.Read more about council Tax in our glossary page.
- Band: A
- PARKINGDetails of how and where vehicles can be parked, and any associated costs.Read more about parking in our glossary page.
- Ask agent
- GARDENA property has access to an outdoor space, which could be private or shared.
- Ask agent
- ACCESSIBILITYHow a property has been adapted to meet the needs of vulnerable or disabled individuals.Read more about accessibility in our glossary page.
- Ask agent
Kingston Road, North End PO2 7LR
Add an important place to see how long it'd take to get there from our property listings.
__mins driving to your place
Get an instant, personalised result:
- Show sellers you’re serious
- Secure viewings faster with agents
- No impact on your credit score
Your mortgage
Notes
Staying secure when looking for property
Ensure you're up to date with our latest advice on how to avoid fraud or scams when looking for property online.
Visit our security centre to find out moreDisclaimer - Property reference S899670. The information displayed about this property comprises a property advertisement. Rightmove.co.uk makes no warranty as to the accuracy or completeness of the advertisement or any linked or associated information, and Rightmove has no control over the content. This property advertisement does not constitute property particulars. The information is provided and maintained by Nesbits, Southsea. Please contact the selling agent or developer directly to obtain any information which may be available under the terms of The Energy Performance of Buildings (Certificates and Inspections) (England and Wales) Regulations 2007 or the Home Report if in relation to a residential property in Scotland.
Auction Fees: The purchase of this property may include associated fees not listed here, as it is to be sold via auction. To find out more about the fees associated with this property please call Nesbits, Southsea on 0238 214 8243.
*Guide Price: An indication of a seller's minimum expectation at auction and given as a Guide Price or a range of Guide Prices. This is not necessarily the figure a property will sell for and is subject to change prior to the auction.
Reserve Price: Each auction property will be subject to a Reserve Price below which the property cannot be sold at auction. Normally the Reserve Price will be set within the range of Guide Prices or no more than 10% above a single Guide Price.
*This is the average speed from the provider with the fastest broadband package available at this postcode. The average speed displayed is based on the download speeds of at least 50% of customers at peak time (8pm to 10pm). Fibre/cable services at the postcode are subject to availability and may differ between properties within a postcode. Speeds can be affected by a range of technical and environmental factors. The speed at the property may be lower than that listed above. You can check the estimated speed and confirm availability to a property prior to purchasing on the broadband provider's website. Providers may increase charges. The information is provided and maintained by Decision Technologies Limited. **This is indicative only and based on a 2-person household with multiple devices and simultaneous usage. Broadband performance is affected by multiple factors including number of occupants and devices, simultaneous usage, router range etc. For more information speak to your broadband provider.
Map data ©OpenStreetMap contributors.






