
4 bedroom end of terrace house for sale
Alford Close, Tilehurst, Reading, Berkshire, RG30

- PROPERTY TYPE
End of Terrace
- BEDROOMS
4
- BATHROOMS
2
- SIZE
Ask agent
- TENUREDescribes how you own a property. There are different types of tenure - freehold, leasehold, and commonhold.Read more about tenure in our glossary page.
Freehold
Key features
- Four generous bedrooms
- Dressing room and en-suite to Bed 1
- Modern family shower room
- Two large reception rooms
- Impressive kitchen
- Outbuildings/office/gym/storage+flexi room
- Tidy rear 40ft garden
- Driveway parking
Description
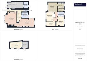
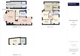
The welcoming entrance hall provides access to all ground floor rooms, including a generous living room, an exceptionally large dining/reception room, a modern fitted kitchen and a convenient ground floor WC.
To the first floor, the impressive principal bedroom benefits from a fully fitted walk-in wardrobe/dressing room and access to a stylish en-suite shower room. The remaining three bedrooms are all well-proportioned doubles and are served by an impressive family shower room.
To the front of the property is a garden with driveway parking, leading to the garage which has been thoughtfully converted into additional living space, complemented by a useful utility room to the rear.
The maintained 40ft rear garden has been carefully landscaped and features a covered patio area overlooking the well-stocked flower and shrub borders. An external office/gym/chill-out room and additional storage unit further enhance the outdoor space.
Additional benefits include double-glazed windows and gas radiator heating throughout.
Location:
The suburb of Tilehurst is located on the western side of Reading with the River Thames running through its north and A4 to the south. Junction 12 of the M4 is close by and Tilehurst has its own station offering regular trains to Reading (taking 5 minutes and running twice an hour) and Oxford (35 Minutes) and several bus routes making it an excellent place for commuters. There are lots of shops including the Tilehurst Triangle and Meadway shopping precincts and a large Waitrose on the Oxford Road and some lovely parks including Reading’s biggest, Prospect Park. Very popular with families there are a number of good quality schools including Springfield, Birch Copse and Downsway primary and Little Heath and Denefield secondary schools.
Brochures
Web DetailsParticulars- COUNCIL TAXA payment made to your local authority in order to pay for local services like schools, libraries, and refuse collection. The amount you pay depends on the value of the property.Read more about council Tax in our glossary page.
- Band: E
- PARKINGDetails of how and where vehicles can be parked, and any associated costs.Read more about parking in our glossary page.
- Driveway
- GARDENA property has access to an outdoor space, which could be private or shared.
- Yes
- ACCESSIBILITYHow a property has been adapted to meet the needs of vulnerable or disabled individuals.Read more about accessibility in our glossary page.
- Ask agent
Alford Close, Tilehurst, Reading, Berkshire, RG30
Add an important place to see how long it'd take to get there from our property listings.
__mins driving to your place
Get an instant, personalised result:
- Show sellers you’re serious
- Secure viewings faster with agents
- No impact on your credit score
Your mortgage
Notes
Staying secure when looking for property
Ensure you're up to date with our latest advice on how to avoid fraud or scams when looking for property online.
Visit our security centre to find out moreDisclaimer - Property reference REA250694. The information displayed about this property comprises a property advertisement. Rightmove.co.uk makes no warranty as to the accuracy or completeness of the advertisement or any linked or associated information, and Rightmove has no control over the content. This property advertisement does not constitute property particulars. The information is provided and maintained by Winkworth, Reading. Please contact the selling agent or developer directly to obtain any information which may be available under the terms of The Energy Performance of Buildings (Certificates and Inspections) (England and Wales) Regulations 2007 or the Home Report if in relation to a residential property in Scotland.
*This is the average speed from the provider with the fastest broadband package available at this postcode. The average speed displayed is based on the download speeds of at least 50% of customers at peak time (8pm to 10pm). Fibre/cable services at the postcode are subject to availability and may differ between properties within a postcode. Speeds can be affected by a range of technical and environmental factors. The speed at the property may be lower than that listed above. You can check the estimated speed and confirm availability to a property prior to purchasing on the broadband provider's website. Providers may increase charges. The information is provided and maintained by Decision Technologies Limited. **This is indicative only and based on a 2-person household with multiple devices and simultaneous usage. Broadband performance is affected by multiple factors including number of occupants and devices, simultaneous usage, router range etc. For more information speak to your broadband provider.
Map data ©OpenStreetMap contributors.





