Ty Brachty Terrace, crumlin, NP11

- PROPERTY TYPE
Terraced
- BEDROOMS
3
- BATHROOMS
1
- SIZE
Ask agent
- TENUREDescribes how you own a property. There are different types of tenure - freehold, leasehold, and commonhold.Read more about tenure in our glossary page.
Freehold
Description
Parking? No problem it has its own garage, and the rear garden is so big with an abundance of mature floral borders and sun seating areas!
Local amenities and schools are on hand as are travel links.
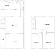
Inside the property you find,
A hallway, welcoming you with laminate flooring.
A lounge (3.63mx 2.89m) having a front window, modern décor, and laminate flooring.
It opens to the dining room (3.37m x 3.81m) with further laminate flooring, and an enclosed staircase to one side.
A kitchen (4.70m max x 3.14m) super modern with so much natural daylight.
Two lantern windows, such a lovely feature, and a window and door to the garden.
Vinyl flooring, modern décor and a range of cream high sheen cabinets having an oven, a hob, an extractor, and a sink/drainer with space for further appliances to the utility area.
A bathroom (2.17m x 1.71m) with tiled flooring and part walls, a rear window and a white suite comprising of a WC, a wash basin, and a P bath with an electric shower over.
The first floor houses a landing, and three spacious bedrooms.
Bedroom one (3.83m x 3.37m) has carpet, a rear window, and an ornate traditional fireplace.
Bedroom two (2.90m x 2.58m) has a front window, an ornate fireplace, and carpet flooring.
Bedroom three (2.87m x 2.06m) has a front window and carpet flooring.
Submit Your Interest
- COUNCIL TAXA payment made to your local authority in order to pay for local services like schools, libraries, and refuse collection. The amount you pay depends on the value of the property.Read more about council Tax in our glossary page.
- Ask agent
- PARKINGDetails of how and where vehicles can be parked, and any associated costs.Read more about parking in our glossary page.
- Yes
- GARDENA property has access to an outdoor space, which could be private or shared.
- Yes
- ACCESSIBILITYHow a property has been adapted to meet the needs of vulnerable or disabled individuals.Read more about accessibility in our glossary page.
- Ask agent
Ty Brachty Terrace, crumlin, NP11
Add an important place to see how long it'd take to get there from our property listings.
__mins driving to your place
Get an instant, personalised result:
- Show sellers you’re serious
- Secure viewings faster with agents
- No impact on your credit score
Your mortgage
Notes
Staying secure when looking for property
Ensure you're up to date with our latest advice on how to avoid fraud or scams when looking for property online.
Visit our security centre to find out moreDisclaimer - Property reference tybrackety. The information displayed about this property comprises a property advertisement. Rightmove.co.uk makes no warranty as to the accuracy or completeness of the advertisement or any linked or associated information, and Rightmove has no control over the content. This property advertisement does not constitute property particulars. The information is provided and maintained by Cariad Property, Newbridge. Please contact the selling agent or developer directly to obtain any information which may be available under the terms of The Energy Performance of Buildings (Certificates and Inspections) (England and Wales) Regulations 2007 or the Home Report if in relation to a residential property in Scotland.
*This is the average speed from the provider with the fastest broadband package available at this postcode. The average speed displayed is based on the download speeds of at least 50% of customers at peak time (8pm to 10pm). Fibre/cable services at the postcode are subject to availability and may differ between properties within a postcode. Speeds can be affected by a range of technical and environmental factors. The speed at the property may be lower than that listed above. You can check the estimated speed and confirm availability to a property prior to purchasing on the broadband provider's website. Providers may increase charges. The information is provided and maintained by Decision Technologies Limited. **This is indicative only and based on a 2-person household with multiple devices and simultaneous usage. Broadband performance is affected by multiple factors including number of occupants and devices, simultaneous usage, router range etc. For more information speak to your broadband provider.
Map data ©OpenStreetMap contributors.





