1 bedroom bungalow for sale
First Avenue, Ravenswing Park, Aldermaston, Reading, RG7

- PROPERTY TYPE
Bungalow
- BEDROOMS
1
- BATHROOMS
1
- SIZE
Ask agent
Description
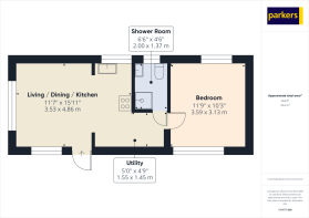
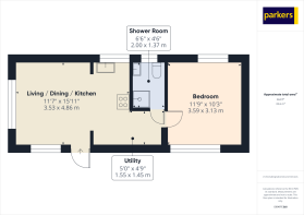
The open plan living space comprises of areas of lounge, dining and kitchen refitted with a range of storage units, an electric oven, electric hob and designated utility space.
Further accommodation comprises of a double bedroom and three-piece bathroom shower room.
Outside, the grounds wrap around the property are mainly laid to shingle, perfect for creating a potted garden.
Local Authority - West Berkshire
Council Tax Band - A
Annual Estimate - £1546.10
Lease Term - N/A
Annual Pitch Fee - £1878
Annual Water Charge - £240
Heating - LPG gas radiator central heating.
Parking - unallocated carpark.
Services available – LPG, electric, water and sewage through site owners.
These particulars are a general guide only. They do not form part of any contract. Services, systems, and appliances have not been tested. The title is currently under review for any potential covenants or restrictions and will be available upon request shortly.
Brochures
Particulars- COUNCIL TAXA payment made to your local authority in order to pay for local services like schools, libraries, and refuse collection. The amount you pay depends on the value of the property.Read more about council Tax in our glossary page.
- Band: TBC
- PARKINGDetails of how and where vehicles can be parked, and any associated costs.Read more about parking in our glossary page.
- Yes
- GARDENA property has access to an outdoor space, which could be private or shared.
- Yes
- ACCESSIBILITYHow a property has been adapted to meet the needs of vulnerable or disabled individuals.Read more about accessibility in our glossary page.
- Ask agent
Energy performance certificate - ask agent
First Avenue, Ravenswing Park, Aldermaston, Reading, RG7
Add an important place to see how long it'd take to get there from our property listings.
__mins driving to your place
Get an instant, personalised result:
- Show sellers you’re serious
- Secure viewings faster with agents
- No impact on your credit score
Your mortgage
Notes
Staying secure when looking for property
Ensure you're up to date with our latest advice on how to avoid fraud or scams when looking for property online.
Visit our security centre to find out moreDisclaimer - Property reference TAD240379. The information displayed about this property comprises a property advertisement. Rightmove.co.uk makes no warranty as to the accuracy or completeness of the advertisement or any linked or associated information, and Rightmove has no control over the content. This property advertisement does not constitute property particulars. The information is provided and maintained by Parkers, Tadley. Please contact the selling agent or developer directly to obtain any information which may be available under the terms of The Energy Performance of Buildings (Certificates and Inspections) (England and Wales) Regulations 2007 or the Home Report if in relation to a residential property in Scotland.
*This is the average speed from the provider with the fastest broadband package available at this postcode. The average speed displayed is based on the download speeds of at least 50% of customers at peak time (8pm to 10pm). Fibre/cable services at the postcode are subject to availability and may differ between properties within a postcode. Speeds can be affected by a range of technical and environmental factors. The speed at the property may be lower than that listed above. You can check the estimated speed and confirm availability to a property prior to purchasing on the broadband provider's website. Providers may increase charges. The information is provided and maintained by Decision Technologies Limited. **This is indicative only and based on a 2-person household with multiple devices and simultaneous usage. Broadband performance is affected by multiple factors including number of occupants and devices, simultaneous usage, router range etc. For more information speak to your broadband provider.
Map data ©OpenStreetMap contributors.




