Callington Road, Saltash, Cornwall

- PROPERTY TYPE
Bungalow
- BEDROOMS
3
- BATHROOMS
1
- SIZE
Ask agent
- TENUREDescribes how you own a property. There are different types of tenure - freehold, leasehold, and commonhold.Read more about tenure in our glossary page.
Freehold
Key features
- Detached Bungalow
- Single Skinned
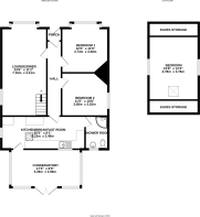
- 23'6 Lounge/Diner
- 20'5 Split Level Kitchen
- 17'3 uPVC Double Glazed Conservatory
- Three Bedrooms
- Shower Room
- uPVC Double Glazing
- Gas Central Heating with a Condensing Boiler
- Driveway with Parking for 1/2 Cars
Description
.
Access into the property via a uPVC double glazed opaque stained and leaded door into...
Entrance Hall
Decorative glass panelled door leading through to...
Hallway
Radiator and coving.
Lounge/Diner
7.16m x 3.4m (23' 6" x 11' 2")
Measurement includes stairwell. Dual aspect with uPVC double glazed bay window to the front and uPVC double glazed window to the side. Two radiators, coving and feature fireplace with electric fire.
Bedroom One
3.73m max x 3.48m - Maximum measurement into bay. uPVC double glazed bay window to the front, radiator and coving.
Bedroom Two
3.48m x 3.25m (11' 5" x 10' 8")
uPVC double glazed window to the side, radiator and coving.
Kitchen/Breakfast Room
6.22m x 2.46m (20' 5" x 8' 1")
The kitchen is split-level and has a range of wall and floor mounted storage units, roll top work surfaces, stainless steel sink and drainer unit, double oven, gas hob, tiling above worktops, tiled flooring, built in fridge freezer and two radiators. Dual aspect with uPVC double glazed window to the side and to the rear and uPVC double glazed door giving access to the conservatory.
Conservatory
5.26m x 2.87m (17' 3" x 9' 5")
uPVC double glazed to three sides, uPVC double glazed French doors giving access to the rear garden, tiled flooring, radiator and polycarbonate roof.
Shower Room
Shower room with corner shower cubicle and Mira shower unit, wash hand basin, WC, chrome heated towel rail, uPVC double glazed opaque window to the rear, tiled flooring and tiled to ceiling height.
.
Stairs from the lounge/diner lead up to...
First Floor
Bedroom
4.78m x 3.76m (15' 8" x 12' 4")
Restricted headroom. Measurement includes stairwell. Eaves storage cupboards, dual aspect with uPVC double glazed window to the front and to the rear and double glazed skylight to the side.
Gardens
To the front there is a gate that leads to steps and tarmac pathway leading to the front door and across the front of the property. Outside the pathway there is an area of lawn with edging border and maturing shrubs. Tarmac driveway to the side with parking for one to two vehicles leading to double wrought gates and additional tarmac area to the side of the property, and parking area in front of the garage.
Garage
With up and over door, access door to the side and external water supply to the rear of the garage.
Rear Garden
The rear garden has a paved patio area directly behind the property with edging border. The remainder of the garden is laid to artificial lawn, paved pathways and gravelled areas with edging borders and maturing shrubs and trees. The rear garden is south facing.
Agents Note
Broadband and Mobile Signal Availability - We advise that you should check the availability and signal strength with your supplier via the Ofcom website Broadband and mobile coverage checker - Ofcom
Brochures
Particulars- COUNCIL TAXA payment made to your local authority in order to pay for local services like schools, libraries, and refuse collection. The amount you pay depends on the value of the property.Read more about council Tax in our glossary page.
- Band: C
- PARKINGDetails of how and where vehicles can be parked, and any associated costs.Read more about parking in our glossary page.
- Yes
- GARDENA property has access to an outdoor space, which could be private or shared.
- Yes
- ACCESSIBILITYHow a property has been adapted to meet the needs of vulnerable or disabled individuals.Read more about accessibility in our glossary page.
- Ask agent
Callington Road, Saltash, Cornwall
Add an important place to see how long it'd take to get there from our property listings.
__mins driving to your place
Get an instant, personalised result:
- Show sellers you’re serious
- Secure viewings faster with agents
- No impact on your credit score
Your mortgage
Notes
Staying secure when looking for property
Ensure you're up to date with our latest advice on how to avoid fraud or scams when looking for property online.
Visit our security centre to find out moreDisclaimer - Property reference SAL250125. The information displayed about this property comprises a property advertisement. Rightmove.co.uk makes no warranty as to the accuracy or completeness of the advertisement or any linked or associated information, and Rightmove has no control over the content. This property advertisement does not constitute property particulars. The information is provided and maintained by Bradleys, Saltash. Please contact the selling agent or developer directly to obtain any information which may be available under the terms of The Energy Performance of Buildings (Certificates and Inspections) (England and Wales) Regulations 2007 or the Home Report if in relation to a residential property in Scotland.
*This is the average speed from the provider with the fastest broadband package available at this postcode. The average speed displayed is based on the download speeds of at least 50% of customers at peak time (8pm to 10pm). Fibre/cable services at the postcode are subject to availability and may differ between properties within a postcode. Speeds can be affected by a range of technical and environmental factors. The speed at the property may be lower than that listed above. You can check the estimated speed and confirm availability to a property prior to purchasing on the broadband provider's website. Providers may increase charges. The information is provided and maintained by Decision Technologies Limited. **This is indicative only and based on a 2-person household with multiple devices and simultaneous usage. Broadband performance is affected by multiple factors including number of occupants and devices, simultaneous usage, router range etc. For more information speak to your broadband provider.
Map data ©OpenStreetMap contributors.







