
3 bedroom character property for sale
The Barracks, Parkend

- PROPERTY TYPE
Character Property
- BEDROOMS
3
- BATHROOMS
1
- SIZE
Ask agent
- TENUREDescribes how you own a property. There are different types of tenure - freehold, leasehold, and commonhold.Read more about tenure in our glossary page.
Freehold
Key features
- Three bedroom period property
- Situated in a rarely available position in a highly sought after village
- Extensive front and rear gardens
- On the doorstep of woodland walks
- Characterful living accommodation throughout
- Freehold, Council tax band B, EPC Rating F
Description
Rarely available in this location and nestled within the heart of the woodland, this charming three-bedroom character home is tucked away in ‘The Barracks’, a unique and highly sought-after position in the popular village of Parkend. Rich in history and full of period charm, the property offers a warm and welcoming interior, with original features throughout and generous, well-maintained gardens that provide space to relax, entertain, and immerse yourself in the surrounding natural beauty.
Parkend is a picturesque village in the Forest of Dean, known for its rich industrial heritage, strong community feel, and beautiful forest surroundings. Once a hub for ironworks, coal mining, and the railway, it now attracts visitors with its heritage steam trains at Parkend Station, excellent walking and cycling routes, and access to nature. The village has a friendly atmosphere, local pubs, and amenities, making it a desirable place to live or explore.
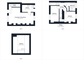
Step inside through from a storm porch and you're welcomed into the living room/diner. This character-filled space is the heart of the home, blending old-world charm with everyday comfort. Positioned at the front of the home, the living area is bathed in natural light from the wide, multi-pane window, which beautifully frames views of the lush countryside beyond. The parquet flooring adds a warm, traditional feel underfoot, while the wood-burning stove with its chunky beam mantel creates a cosy and characterful focal point. Whether you're curling up with a book or enjoying a film, this space is ready for comfort. To the rear, the dining room is full of rustic charm, thanks to the exposed stone wall and feature fireplace recess, ideal for log storage or future reinstatement. There’s ample space for a family-sized dining table, and the rear-facing window draws in light while offering garden views.
The kitchen is both stylish and practical, featuring a contemporary shaker-style design with soft sage-green cabinetry, wood-effect worktops, and classic white metro tile splashbacks. Integrated appliances are complemented by ample storage, including deep corner cupboards and overhead units that make full use of the vertical space. The layout provides an efficient U-shaped working area, ideal for both everyday cooking and entertaining. Natural light pours in through the rear-facing window, creating a bright and welcoming atmosphere. A door leads directly to the rear of the property, offering easy access to the garden, perfect for enjoying outdoor meals or letting in a refreshing breeze while you cook.
From the living room/diner, a staircase leads up to the first floor landing. The landing has a front-facing window lets in morning light, and doors lead off to two bedrooms and the bathroom. A staircase also leads to the third bedroom.
Bedroom one is a calm and characterful double bedroom which offers a lovely sense of retreat at the back of the home. A large rear-facing window looks out over the garden greenery, drawing in natural light and giving the room a peaceful, leafy outlook. There’s plenty of room for a full-size bed and accompanying furniture, while the exposed wooden floorboards and soft colour palette create a homely, relaxed feel. A charming original fireplace with ornate surround adds real period charm and a focal point to the space, while the deep windowsill offers a perfect spot for a few potted plants or books.
The second bedroom is another charming double bedroom, situated to the front of the property, also being full of warmth and personality. A large sash-style window allows natural light to flood in, softening the room and drawing attention to the pretty front garden outlook. The space is ideal for a full-size bed and accompanying furniture, with original wooden floorboards underfoot adding character and continuity. Soft neutral walls act as a gentle backdrop for your personal touches, while the room’s length makes it feel spacious and airy.
Positioned at the rear of the home, a thoughtfully designed bathroom blends traditional character with modern finishes. A beautiful rear-facing window draws in natural light and frames leafy green views, setting a tranquil tone for morning routines or evening wind-downs. The room is fully tiled in soft grey with a subtle marble effect, giving it a clean and contemporary feel while complementing the warmth of the original wooden floorboards that run beneath. There’s a walk-in corner shower with a glass enclosure, a low-level WC, and a sleek vanity unit with integrated storage and basin. A black tiled feature wall adds a touch of sophistication, while the built-in airing cupboard houses the immersion tank and provides useful storage.
Tucked away at the top of the home, this inviting loft conversion makes for a wonderfully private third bedroom, guest space or even a creative studio. The room stretches beneath the eaves, offering a unique sense of cosiness and charm, enhanced by the exposed timber beams that add rustic texture to the clean white walls and ceiling. Two large rear-facing Velux windows flood the room with natural light while offering serene treetop views, giving the space a peaceful and airy feel. There’s ample space for a double bed and furniture, as well as discreet storage tucked into the eaves.
Stepping outside, the property offers a generous and well-established garden that wraps around the home with a mix of open lawn, pretty floral borders, and useful outbuildings—ideal for those seeking a peaceful country lifestyle.
Outside- Access is via a gated entrance that leads into a spacious lawned front garden, perfect for children to play or for enjoying sunny afternoons in the open air. At the top of the lawn is a raised patio area, ideal for alfresco dining or simply relaxing with a coffee while enjoying the surroundings. To the rear, a shared pathway leads down to the back door, opening out into another substantial area of lawn. A plum tree and well-stocked floral borders bring colour and interest through the seasons, creating a lovely environment for gardeners and nature lovers alike. Practical features include an undercover log store and a detached outbuilding/workshop, providing ample space for hobbies, DIY or extra storage. A versatile workshop sits neatly to the rear and benefits from both side and rear aspect wooden windows, allowing in plenty of natural light. Whether you’re a keen craftsman, potter, or simply need space for tools and bikes, it’s a valuable addition that’s both secure and full of potential.
- COUNCIL TAXA payment made to your local authority in order to pay for local services like schools, libraries, and refuse collection. The amount you pay depends on the value of the property.Read more about council Tax in our glossary page.
- Band: B
- PARKINGDetails of how and where vehicles can be parked, and any associated costs.Read more about parking in our glossary page.
- Ask agent
- GARDENA property has access to an outdoor space, which could be private or shared.
- Private garden
- ACCESSIBILITYHow a property has been adapted to meet the needs of vulnerable or disabled individuals.Read more about accessibility in our glossary page.
- Ask agent
The Barracks, Parkend
Add an important place to see how long it'd take to get there from our property listings.
__mins driving to your place
Get an instant, personalised result:
- Show sellers you’re serious
- Secure viewings faster with agents
- No impact on your credit score
Your mortgage
Notes
Staying secure when looking for property
Ensure you're up to date with our latest advice on how to avoid fraud or scams when looking for property online.
Visit our security centre to find out moreDisclaimer - Property reference S1401324. The information displayed about this property comprises a property advertisement. Rightmove.co.uk makes no warranty as to the accuracy or completeness of the advertisement or any linked or associated information, and Rightmove has no control over the content. This property advertisement does not constitute property particulars. The information is provided and maintained by Hattons Estate Agents, Forest of Dean. Please contact the selling agent or developer directly to obtain any information which may be available under the terms of The Energy Performance of Buildings (Certificates and Inspections) (England and Wales) Regulations 2007 or the Home Report if in relation to a residential property in Scotland.
*This is the average speed from the provider with the fastest broadband package available at this postcode. The average speed displayed is based on the download speeds of at least 50% of customers at peak time (8pm to 10pm). Fibre/cable services at the postcode are subject to availability and may differ between properties within a postcode. Speeds can be affected by a range of technical and environmental factors. The speed at the property may be lower than that listed above. You can check the estimated speed and confirm availability to a property prior to purchasing on the broadband provider's website. Providers may increase charges. The information is provided and maintained by Decision Technologies Limited. **This is indicative only and based on a 2-person household with multiple devices and simultaneous usage. Broadband performance is affected by multiple factors including number of occupants and devices, simultaneous usage, router range etc. For more information speak to your broadband provider.
Map data ©OpenStreetMap contributors.





