Shop for sale
Moulsham Street, Chelmsford, Essex, CM2
- SIZE AVAILABLE
753 sq ft
70 sq m
- SECTOR
Shop for sale
- USE CLASSUse class orders: A1 Shops and Class E
A1, E
Description
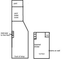
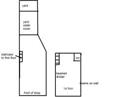
Internally the ground floor, with a shop front width of 3.1m has wooden floors and with the main area offering 35sq m of trading area (approx 12.5m deep) tapers to the back of the premises and a rear area which includes a yard (no rear access) which has been partially roofed to extend the ground floor area.
Stairs to the first floor, where the WC is located, offers an area of approx 26m2 which boasts timber beams and the sash window that overlooks Moulsham Street. There is a storage area, with a dormer window, which can be accessed via a ladder. EPC to be commissioned. The freeholder will continue to trade from number 157.
PRICE: £280,000 no VAT applicable
RATEABLE VALUE: £11,750 - nil rates payable for eligible occupier
LOCATION:
156 is located on the western side of Moulsham Street a popular secondary trading location with on street parking. The main shopping facilities of Chelmsford City Centre are within a 10-minute walk, Chelmsford Station, offers a mainline train service to London Liverpool Street (35 mins)
TERMS AND CONDITIONS:
Available for sale freehold subject to contract.
PARKING:
There is long and short term parking available in George Street car park as well as free 1 hour parking in Moulsham Street including outside the premises.
VIEWING:
Strictly by appointment with Robert Dewar Associates on
Brochures
Moulsham Street, Chelmsford, Essex, CM2
NEAREST STATIONS
Distances are straight line measurements from the centre of the postcode- Chelmsford Station0.5 miles
- Ingatestone Station5.7 miles
Notes
Disclaimer - Property reference 156MoulshamStreet. The information displayed about this property comprises a property advertisement. Rightmove.co.uk makes no warranty as to the accuracy or completeness of the advertisement or any linked or associated information, and Rightmove has no control over the content. This property advertisement does not constitute property particulars. The information is provided and maintained by Robert Dewar Associates, Chelmsford. Please contact the selling agent or developer directly to obtain any information which may be available under the terms of The Energy Performance of Buildings (Certificates and Inspections) (England and Wales) Regulations 2007 or the Home Report if in relation to a residential property in Scotland.
Map data ©OpenStreetMap contributors.





