Hanover Street, Warrington, WA1

- PROPERTY TYPE
Terraced
- BEDROOMS
3
- BATHROOMS
3
- SIZE
Ask agent
Key features
- Large 4 Bedroom Terraced converted into Three self contained flats
- Two Flats Vacant One Currently Tenanted. Can Be Purchased Completely Vacant
- Town Centre Location
- Garage
- Cellar
- Within Walking Distance of Bank Quay and Warrington Central Train Stations.
Description
** This property has a virtual tour, professional photographs, and detailed floorplan. **
** Please send us an enquiry for more information. **
Belvoir Warrington are delighted to present this unique opportunity to purchase a terraced property in the heart of Warrington Town Centre that has been converted into three self-contained one-bedroom flats. Each flat has access to its own lounge, kitchen/diner and bathroom. Flat one has the benefit of having access to its own back yard.
This property also benefits from a separate utility room on the ground floor, cellar and separate garage. Theres is also access to the back yard via flat one.
The property is within walking distance to shops, bars, restaurants, Warrington Central and Bank Quay train stations.
Council Tax Band C
All room sizes to be used as a guide only.
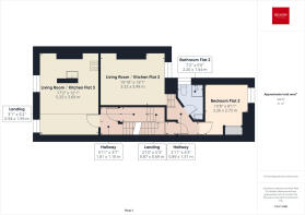
Entry
1.32m x 1.29m
Main Hallway
1.81m x 5.35m
Laundry Room
3.70m x 2.09m
Office Space
2.60m x 1.52m
WC
1.57m x 0.89m
FLAT 1
Bedroom
3.26m x 2.95m
Living Room
3.18m x 4.65m
Kitchen
1.60m x 2.92m
Bathroom 1
1.51m x1.95m
FLAT 2
Living Room / Kitchen
3.32m x 3.99m
Bedroom
3.26m x 2.73m
Bathroom
2.20m x 1.54m
FLAT 3
Living Room / Kitchen
5.25m x 3.69m
Bedroom
3.17m x 2.71m
Bathroom
1.70m x 1.92m
Cellar
5.26m x 3.85m
EPC's - Ordered, just awaiting updated version.
Tenure
We believe this property to be Leasehold.
Belvoir and our partners provide a range of services to buyers, although you are free to use an alternative provider. For more information simply speak to someone in our branch today. We can refer you on to a Mortgage advisor for help with finance. If you require a solicitor to handle your purchase, we can refer you on to "Frodshams" and “Tickle Hall Cross” solicitors.
We may receive commission on referrals.
Disclaimer
Belvoir Sales and Letting Agent Warrington has not tested any apparatus, equipment, fixtures and fittings or services and cannot verify that they are in working order or fit for purpose. A buyer is advised to obtain verification from their solicitor or surveyor. References to the tenure of a property and guarantees are based on information supplied by the seller. Belvoir Sales and Letting Agent Warrington has not had sight of the title documents or guarantees relating to the property advertised. A buyer is advised to obtain verification from their solicitor. Items shown in photographs are NOT included unless specifically mentioned within the sales particulars. They may however be available by separate negotiation.
Tenure: Leasehold, Length of lease (remaining): 867 years 1 months,- COUNCIL TAXA payment made to your local authority in order to pay for local services like schools, libraries, and refuse collection. The amount you pay depends on the value of the property.Read more about council Tax in our glossary page.
- Band: A
- PARKINGDetails of how and where vehicles can be parked, and any associated costs.Read more about parking in our glossary page.
- Permit
- GARDENA property has access to an outdoor space, which could be private or shared.
- Private garden
- ACCESSIBILITYHow a property has been adapted to meet the needs of vulnerable or disabled individuals.Read more about accessibility in our glossary page.
- Ask agent
Energy performance certificate - ask agent
Hanover Street, Warrington, WA1
Add an important place to see how long it'd take to get there from our property listings.
__mins driving to your place
Get an instant, personalised result:
- Show sellers you’re serious
- Secure viewings faster with agents
- No impact on your credit score
Your mortgage
Notes
Staying secure when looking for property
Ensure you're up to date with our latest advice on how to avoid fraud or scams when looking for property online.
Visit our security centre to find out moreDisclaimer - Property reference P2963. The information displayed about this property comprises a property advertisement. Rightmove.co.uk makes no warranty as to the accuracy or completeness of the advertisement or any linked or associated information, and Rightmove has no control over the content. This property advertisement does not constitute property particulars. The information is provided and maintained by Belvoir, Warrington. Please contact the selling agent or developer directly to obtain any information which may be available under the terms of The Energy Performance of Buildings (Certificates and Inspections) (England and Wales) Regulations 2007 or the Home Report if in relation to a residential property in Scotland.
*This is the average speed from the provider with the fastest broadband package available at this postcode. The average speed displayed is based on the download speeds of at least 50% of customers at peak time (8pm to 10pm). Fibre/cable services at the postcode are subject to availability and may differ between properties within a postcode. Speeds can be affected by a range of technical and environmental factors. The speed at the property may be lower than that listed above. You can check the estimated speed and confirm availability to a property prior to purchasing on the broadband provider's website. Providers may increase charges. The information is provided and maintained by Decision Technologies Limited. **This is indicative only and based on a 2-person household with multiple devices and simultaneous usage. Broadband performance is affected by multiple factors including number of occupants and devices, simultaneous usage, router range etc. For more information speak to your broadband provider.
Map data ©OpenStreetMap contributors.





