Land At Pipes Meadow, Bilston, West Midlands, WV14
- PROPERTY TYPE
Land
- SIZE
Ask agent
Description
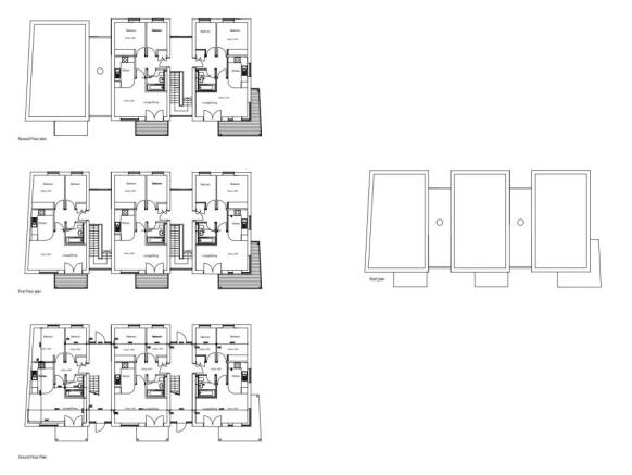
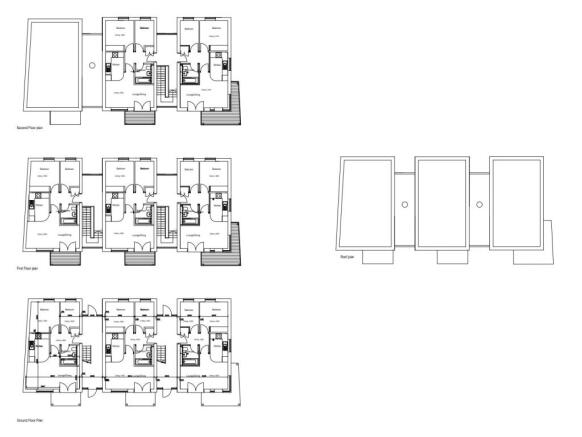
Located in the heart of Bilston, Pipes Meadow offers unique and exciting redevelopment potential. With planning permission approved for eight two-bedroom apartments, this town centre site sits between the former Royal Mail sorting office and the Black Country Route, making it a striking urban canvas.
Once an overgrown and underused site, it now presents a rare opportunity to introduce modern residential units that bridge Bilston’s industrial heritage and its revitalising future. Ideal for homeowners, investors, or developers, this parcel benefits from:
A central town location just steps from top-rated primary and secondary schools.
Excellent access to local amenities, GP practices, dental clinics, shops, and transport links.
A broadband infrastructure supporting gigabit-speed connections.
With eight flats already green-lit, and redevelopment constraints largely resolved, the site is ripe for transformation into highquality residential housing—bringing new life, visual improvement, and added value to the local area.
Erection of three and two storey building containing eight apartments of 530 sq ft (50 m2) with associated landscaping | Site Adjacent To Bilston Post Office Hall Street Pipes Meadow Wolverhampton West Midlands
Planning reference - 20/01426/FUL
IMPORTANT NOTE TO POTENTIAL PURCHASERS & TENANTS:
We endeavour to make our particulars accurate and reliable, however, they do not constitute or form part of an offer or any contract and none is to be relied upon as statements of representation or fact. The services, systems and appliances listed in this specification have not been tested by us and no guarantee as to their operating ability or efficiency is given. All photographs and measurements have been taken as a guide only and are not precise. Floor plans where included are not to scale and accuracy is not guaranteed. If you require clarification or further information on any points, please contact us, especially if you are traveling some distance to view. POTENTIAL PURCHASERS: Fixtures and fittings other than those mentioned are to be agreed with the seller. POTENTIAL TENANTS: All properties are available for a minimum length of time, with the exception of short term accommodation. Please contact the branch for details. A security deposit of at least one month’s rent is required. Rent is to be paid one month in advance. It is the tenant’s responsibility to insure any personal possessions. Payment of all utilities including water rates or metered supply and Council Tax is the responsibility of the tenant in most cases.
WOL250539/2
Brochures
Web DetailsFull Brochure PDFLand At Pipes Meadow, Bilston, West Midlands, WV14
NEAREST STATIONS
Distances are straight line measurements from the centre of the postcode- Bilston Central Tram Stop0.1 miles
- The Crescent Tram Stop0.4 miles
- Loxdale Tram Stop0.5 miles



Notes
Disclaimer - Property reference WOL250539. The information displayed about this property comprises a property advertisement. Rightmove.co.uk makes no warranty as to the accuracy or completeness of the advertisement or any linked or associated information, and Rightmove has no control over the content. This property advertisement does not constitute property particulars. The information is provided and maintained by Your Move, Wolverhampton. Please contact the selling agent or developer directly to obtain any information which may be available under the terms of The Energy Performance of Buildings (Certificates and Inspections) (England and Wales) Regulations 2007 or the Home Report if in relation to a residential property in Scotland.
Map data ©OpenStreetMap contributors.




