2 bedroom apartment for sale
Model Lodging House, Bloom Street, Salford

- PROPERTY TYPE
Apartment
- BEDROOMS
2
- BATHROOMS
2
- SIZE
1,336 sq ft
124 sq m
Key features
- Duplex apartment
- Grade II-listed Victorian conversion
- Open-plan living, dining and kitchen area
- Principal bedroom suite
- Additional bedroom
- Nearby parking options available
- Close proximity to Deansgate & Spinningfields
- 2-minute walk to Salford Central Train Station
Description
Set across the fourth and fifth floors of a Grade II-listed Victorian building, this two-bedroom duplex apartment sits within a characterful conversion in Salford. Originally built in the late 1800s, the former lodging house retains its striking red brick façade with decorative terracotta dressing. In its transformation into modern apartments, a glass atrium was added to connect the building’s two bays. This home benefits from an open layout filled with light, texture, and playful detail - all just moments from the city centre.
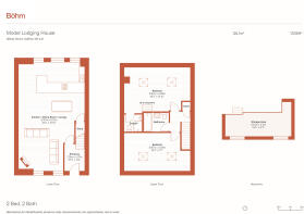
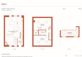
The Space
Entry to the building is through the glazed atrium, where an open lift rises through the centre of the building. From the walkway, the apartment’s front door opens into the lower floor - a hallway lined in hardwood flooring and wrapped in soft pink tones. A stainless steel staircase leads to the upper floor, while just beyond, the open-plan kitchen, dining, and living space unfolds - generous in size and thoughtfully zoned, yet open in feel. Hardwood flooring and exposed brick bring warmth and structure, while a U-shaped kitchen sits to one side, anchored by a breakfast bar that creates a natural place to gather. White cabinetry lines both sides of the worktops, offering ample storage within a clean, functional layout.
The dining zone sits comfortably between the kitchen and living space, where further exposed brick and windows line the perimeter. Deep green walls complement the brick and wood tones, adding a grounded richness that balances the whitewashed interior. Additional storage is tucked neatly beneath the stairs.
Upstairs, two bedrooms and two bathrooms span the top floor. Hardwood flooring continues throughout, bringing consistency and warmth. The main bedroom features two skylights - east- and west-facing - ensuring the space remains bright across the day. Built-in storage is integrated, while a wooden staircase leads to a mezzanine level enclosed by open bannisters. With two additional windows and flexible proportions, this elevated space is well-suited to use as a snug, reading nook, or further storage.
The en-suite bathroom adds a playful contrast: cotton candy-pink square tiles with pink grout line the walk-in shower, framed by a folding glass screen that maximises usable space. A sky-blue door and wall set the backdrop, while black fixtures, a heated towel rail, built-in storage, and an arched mirror complete the room’s tone of bold, balanced fun.
The second bedroom mirrors the main, with matching skylights to the east and west and integrated storage. With space for a desk and bed, it offers flexibility as both a second bedroom and home workspace. The main bathroom features a bath with overhead shower, surrounded by crisp white tiles and softened by warm wood flooring.
For added convenience, secure parking is available nearby.
The Area
Positioned where Trinity Way, Chapel Street, and New Bailey Street converge, the apartment sits at the intersection of Salford and central Manchester - placing many of the city’s highlights within easy reach. Just a 10-minute walk from Spinningfields and Deansgate, it offers access to some of Manchester’s best restaurants, bars, and shops, with Exchange Square also close by for further retail and dining options.
Salford continues to evolve through significant regeneration, introducing new green spaces, independent cafés, and improved pedestrian and cycle routes. Local favourites such as Porta and Foundation Coffee are within easy reach, while the nearby Salford Quays and MediaCity further enhance the area’s vibrancy.
Families are well served by a strong selection of primary and secondary schools, many rated ‘Outstanding’ by Ofsted, ensuring excellent education options close to home.
For commuters, Salford Central Station is just a two-minute walk away, with Manchester Victoria and the Exchange Square Metrolink also nearby. The area is also well connected by road, with the M602, M60, M62, and M56 all easily accessible - linking Salford to the wider region and Manchester Airport in under 25 minutes.
- COUNCIL TAXA payment made to your local authority in order to pay for local services like schools, libraries, and refuse collection. The amount you pay depends on the value of the property.Read more about council Tax in our glossary page.
- Band: C
- PARKINGDetails of how and where vehicles can be parked, and any associated costs.Read more about parking in our glossary page.
- Yes
- GARDENA property has access to an outdoor space, which could be private or shared.
- Ask agent
- ACCESSIBILITYHow a property has been adapted to meet the needs of vulnerable or disabled individuals.Read more about accessibility in our glossary page.
- Ask agent
Model Lodging House, Bloom Street, Salford
Add an important place to see how long it'd take to get there from our property listings.
__mins driving to your place
Get an instant, personalised result:
- Show sellers you’re serious
- Secure viewings faster with agents
- No impact on your credit score
Your mortgage
Notes
Staying secure when looking for property
Ensure you're up to date with our latest advice on how to avoid fraud or scams when looking for property online.
Visit our security centre to find out moreDisclaimer - Property reference L816922. The information displayed about this property comprises a property advertisement. Rightmove.co.uk makes no warranty as to the accuracy or completeness of the advertisement or any linked or associated information, and Rightmove has no control over the content. This property advertisement does not constitute property particulars. The information is provided and maintained by Bohm, Manchester. Please contact the selling agent or developer directly to obtain any information which may be available under the terms of The Energy Performance of Buildings (Certificates and Inspections) (England and Wales) Regulations 2007 or the Home Report if in relation to a residential property in Scotland.
*This is the average speed from the provider with the fastest broadband package available at this postcode. The average speed displayed is based on the download speeds of at least 50% of customers at peak time (8pm to 10pm). Fibre/cable services at the postcode are subject to availability and may differ between properties within a postcode. Speeds can be affected by a range of technical and environmental factors. The speed at the property may be lower than that listed above. You can check the estimated speed and confirm availability to a property prior to purchasing on the broadband provider's website. Providers may increase charges. The information is provided and maintained by Decision Technologies Limited. **This is indicative only and based on a 2-person household with multiple devices and simultaneous usage. Broadband performance is affected by multiple factors including number of occupants and devices, simultaneous usage, router range etc. For more information speak to your broadband provider.
Map data ©OpenStreetMap contributors.




