
18 Coledale Mews, Newtown Road, Carlisle

- PROPERTY TYPE
Apartment
- BEDROOMS
2
- BATHROOMS
1
- SIZE
Ask agent
Key features
- Well-presented first floor apartment
- Generous open plan living dining kitchen
- Two bedrooms and bathroom
- Allocated parking space
- Close to both Cumberland Infirmary and the city centre
- Ideal for first time buyer or buy to let investor
- Quiet location with nearby riverside walks
- Range of local amenities including public house and shops
Description
Situated in a tranquil location, this well-presented first-floor apartment offers a generous open-plan living dining kitchen, two bedrooms, and a bathroom. The property also boasts an allocated parking space, providing added convenience for residents. Perfectly positioned close to both Cumberland Infirmary and the city centre, this apartment is ideal for first-time buyers or buy-to-let investors.
Nestled in a quiet area with nearby riverside walks, residents can enjoy the serenity of the surroundings. A range of local amenities, including a public house and shops, are within easy reach, adding to the appeal of this property. Whether you're looking for a peaceful retreat or a smart investment opportunity, this apartment offers the best of both worlds. Don't miss out on the chance to make this property yours. Contact us now to arrange a viewing and discover the potential this home has to offer.
Directions
Leave the city centre heading west onto Newtown Road, Coledale Mews is located behind Coledale Hall.
Services
Mains electric, water and drains are connected, but neither these services nor any boilers or radiators have been tested.
Key Information:
• Standard construction.
• We understand that broadband and mobile telephone reception are available. For an indication of speeds and supply please see the OFCOM website:
• There is private off road vehicle parking.
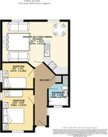
Open plan living dining kitchen
5.66m x 4.57m
Bedroom
3.56m x 2.67m
Bedroom
2.67m x 2.26m
Bathroom
1.98m x 1.78m
Brochures
Particulars- COUNCIL TAXA payment made to your local authority in order to pay for local services like schools, libraries, and refuse collection. The amount you pay depends on the value of the property.Read more about council Tax in our glossary page.
- Band: B
- PARKINGDetails of how and where vehicles can be parked, and any associated costs.Read more about parking in our glossary page.
- Yes
- GARDENA property has access to an outdoor space, which could be private or shared.
- Ask agent
- ACCESSIBILITYHow a property has been adapted to meet the needs of vulnerable or disabled individuals.Read more about accessibility in our glossary page.
- Ask agent
18 Coledale Mews, Newtown Road, Carlisle
Add an important place to see how long it'd take to get there from our property listings.
__mins driving to your place
Get an instant, personalised result:
- Show sellers you’re serious
- Secure viewings faster with agents
- No impact on your credit score


Affordability
Notes
Staying secure when looking for property
Ensure you're up to date with our latest advice on how to avoid fraud or scams when looking for property online.
Visit our security centre to find out moreDisclaimer - Property reference CAR250213. The information displayed about this property comprises a property advertisement. Rightmove.co.uk makes no warranty as to the accuracy or completeness of the advertisement or any linked or associated information, and Rightmove has no control over the content. This property advertisement does not constitute property particulars. The information is provided and maintained by H&H Land & Estates, Carlisle. Please contact the selling agent or developer directly to obtain any information which may be available under the terms of The Energy Performance of Buildings (Certificates and Inspections) (England and Wales) Regulations 2007 or the Home Report if in relation to a residential property in Scotland.
*This is the average speed from the provider with the fastest broadband package available at this postcode. The average speed displayed is based on the download speeds of at least 50% of customers at peak time (8pm to 10pm). Fibre/cable services at the postcode are subject to availability and may differ between properties within a postcode. Speeds can be affected by a range of technical and environmental factors. The speed at the property may be lower than that listed above. You can check the estimated speed and confirm availability to a property prior to purchasing on the broadband provider's website. Providers may increase charges. The information is provided and maintained by Decision Technologies Limited. **This is indicative only and based on a 2-person household with multiple devices and simultaneous usage. Broadband performance is affected by multiple factors including number of occupants and devices, simultaneous usage, router range etc. For more information speak to your broadband provider.
Map data ©OpenStreetMap contributors.





