Light industrial facility to lease
Great Fen Road, Wyberton Fen, Boston, Lincolnshire, PE21 7PB
- SIZE AVAILABLE
1,175-4,835 sq ft
109-449 sq m
- SECTOR
Light industrial facility to lease
Lease details
- Lease available date:
- Ask agent
Key features
- New High Tech Light Industrial Trade Counter/Business Units & Offices
- To Let Leasehold, Available Immediately on FRI Terms
- Superbly Located, High Specification New Units Available
- Units and Office Space Available From 109sqm, 1,175sqft
- Units Include Office, WCs, Kitchenette
- 5.6m Internal Eaves Height
- Roller Shutter Doors, Concrete Floors
- 3 Phase Metered Supply, EV Charging Point
- Broadband Ducting, Parking
- Agreements for Leases Available Immediately
Description
The fast-growing town of Boston is located approximately 115 miles to the north of London on the South Lincolnshire Fens.
The town has a population catchment of around 73,000 residents, strong retail, sporting and educational offering, large port and twice weekly market.
The property is located on the western side of town in an area of predominantly motor trade, commercial and industrial use. Nearby properties include a Tesco Supermarket, B&Q, Lidl as well as motor trading dealerships including Mercedes, BMW, Peugeot and Mini.
The property is located approximately 50m to the north of the Boardsides on Great Fen Road. Nearby properties also include the Princess Royal Sports Arena, Boston Rugby Club and other industrial and commercial users.
Accommodation...
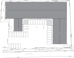
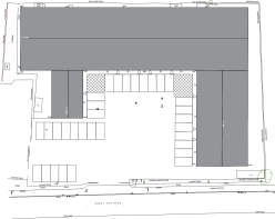
Great Fen Business Park comprises a 'C' shaped arrangement of Steel Portal Framed units and a two storey Office Building.
These versatile units are available in a range of sizes with a minimum of 109sqm, 1,175sqft of accommodation.
Units can be combined to form larger spaces prior to completion of the works. The front of the Business Park having an area of landscaping with gated access.
Description...
Whilst individual unit sizes vary from approximately 109sqm, 1,175sqft with an internal eaves height average of 5.6m, each unit is internally configured to provide:
Partitioned Office...............................................3.6m x 2.8m
Disabled WC
Small Kitchenette.................................................2.2m x 2m
The units benefitting from high levels of thermal insulation, 3 Phase metered electric, metered water, BT Broadband ducted with 35Mb download speeds available, insulated roller shutter doors, EV charging point and a minimum parking allocation of 2 spaces with a loading area at the front, with additional common parking spaces as well as HGV turning areas.
Fit Out...
The developer can provide bespoke internal fit-out options to suit specific requirements of individual occupiers.
These include, but are not limited to: Additional office accommodation, customer facing aluminium glazed frontages, internal lighting solutions, mezzanine flooring.
The developer is happy to discuss details of pricing and incorporation of costs of works into the rent structure.
Schedule of Accommodation...
See brochure for details.?
Terms...
The units are available individually or in combination.
The minimum term will be 5 years with a rent review at Year 3 to Market Rent.
Incoming tenants will be required to contribute a minimum of £1,000 plus VAT towards the landlord's reasonable legal expenses with regards to the preparation of the lease.
Rent will be paid quarterly in advance; a deposit will be held by the landlord the equivalent of a quarter of a year's rent.
A service charge will be levied to cover the costs of servicing communal areas. This is to be reviewed annually.
The tenant will be required to pay an annual insurance rent to cover their apportionment of building insurance calculated on a square footage basis.
Outgoings...
The units will be assessed for Business Rates when built. It is understood that qualifying businesses will be able to claim 100% relief. Otherwise, these will be the responsibility of the tenant along with any utilities.
EPC...
The newly build units will have a SAP Rating which will be confirmed when completed.
Viewing...
All viewings are to be made by appointment through the agent.
Poyntons Consultancy.
Brochures
Great Fen Road, Wyberton Fen, Boston, Lincolnshire, PE21 7PB
NEAREST STATIONS
Distances are straight line measurements from the centre of the postcode- Boston Station1.6 miles
- Hubberts Bridge Station1.8 miles
- Swineshead Station5.0 miles
Notes
Disclaimer - Property reference GreatFenBusinessPark. The information displayed about this property comprises a property advertisement. Rightmove.co.uk makes no warranty as to the accuracy or completeness of the advertisement or any linked or associated information, and Rightmove has no control over the content. This property advertisement does not constitute property particulars. The information is provided and maintained by Poyntons Consultancy Commercial, Lincolnshire Office. Please contact the selling agent or developer directly to obtain any information which may be available under the terms of The Energy Performance of Buildings (Certificates and Inspections) (England and Wales) Regulations 2007 or the Home Report if in relation to a residential property in Scotland.
Map data ©OpenStreetMap contributors.






