Block A, Judds Place, Stanway, Colchester, Essex, CO3
- SIZE AVAILABLE
590-2,420 sq ft
55-225 sq m
- SECTOR
Office to lease
- USE CLASSUse class orders: Class E
E
Lease details
- Lease available date:
- Ask agent
Key features
- Ideal for a wide variety of occupiers, from retailers, to offices, health centers and cafes to leisure uses.
- Prestigious New Development
- Parking Ratio 1:300 sq. ft.
- Split Heating / Cooling Powered by PV
- Prime Location and Unrivalled Connectivity
Description
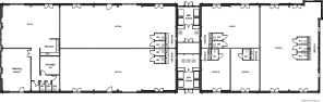
Buildings A1 & A2:
At the heart of Judds Place are buildings A1 and A2, provisionally consisting of 7 units from 590 - 2,520 ft2 but could accommodate a single user (subject to planning) up to 7,260 ft2.
In addition to ample visitor parking, each unit has allocated parking with a ratio of 1:300 ft2.
The facilities include:
* WCs
* Kitchenette
* Raised access flooring
* Split heating/cooling powered by PV
* Intruder / fire alarm
* Option to add EVCs
* Internal heights are 4.9m to the eaves and 6.9m to the ridge to allow for future mezzanine requirements
* LED lighting
* Shared Cycle Storage
Ideal for a wide variety of occupiers, from retailers, to offices, health centres and cafes to leisure uses. Whether you have a growing company or are an entrepreneur in need of premium and flexible space, Judds Place, Tollgate, offers an inspiring environment to support your vision.
Available for occupation from February 2026.
CGI Flythrough Available Upon Request.
Viewing of the Brochure is highly advised for further details.
ACCOMMODATION
A101 - 2,420 sq. ft.
A102 - 2,420 sq. ft.
A103 - 2,420 sq. ft.
A201 - 1,205 sq. ft.
A202 - 2,520 sq. ft.
A203 - 590 sq. ft.
A204 - 590 sq. ft.
Total - 7,260 sq. ft.
Note: The measurements provided are approximate gross internal measurements (except for Building B which is the net internal area) taken from the construction drawings. Please refer to the brochure for further detail on the specification.
LOCATION AND SITUATION
The proximity of the A12, A120, and a mainline railway station at Marks Tey, with frequent fast trains direct to London Liverpool Street, make commuting and business travel effortless. Greater Anglia trains reach London Stratford n 42 minutes, connecting to the Elizabeth line. Judds Place is located to the south of Junction 26 of the A12, 22 miles from Chelmsford and 4 miles from Colchester city centre. Stansted Airport and the ports of Harwich and Felixstowe can be reached in around 30 minutes. The M25 is 36 miles from Judds Place and the M11 is 30 miles away.
The site has an extensive public transport network, with cycleways and pedestrian routes adding to the sustainable travel options.
TERMS
Available to let on new effective full repairing leases, lease length and terms to be agreed,(minimum of five years, with a break on the third anniversary, at the rents outlined above.
The rents, as quoted above, are exclusive of VAT, business rates and service charge. Rent is payable monthly in advance.
Deposit: A minimum of one quarters rent will be required as a deposit. Financial references will be required.
BUILDING INSURANCE
The buildings insurance is to be arranged by the landlord with the cost to be recovered from the tenant. The approximate cost is available upon request.
BUSINESS RATES
We are advised that the premises are yet to be assessed for business rates purposes. The rents quoted are exclusive of business rates and tenants will be responsible for this cost.
We recommend all parties make their own direct enquiries with the local rating authority.
VAT
We are advised that VAT will be applicable on the rent.
SERVICE CHARGE
A service charge will be applicable. Further detail of what is included, and budget figures, are available upon request.
PLANNING
We are advised that the site benefits from use classes E, F1 (a-g) and F2 (b) planning consent, with no restrictions on house of operation, however there are hours restrictions for deliveries. A full copy of the planning consent is available upon request.
Interested parties are advised to make their own enquiries with the local planning authority.
EPC
The premises will be assessed upon completion of the construction works. It is anticipated that the EPC rating will be 'A'.
ANTI MONEY LAUNDERING REGULATIONS
Anti-Money Laundering Regulations require Fenn Wright / Nicholas Percival to formally verify a prospective tenant's identity prior to the instruction of solicitors.
DEVELOPMENT NOTES
Phase one of Judds Place features five buildings tailored for small to medium-sized businesses. The units are available in various sizes, ranging from 590 ft² to 13,500 ft², with the added potential for mezzanine levels in buildings A1 and A2.
- Total floor space: 32,075 ft2
- Ideal for a wide variety of occupiers, from retailers, to offices, health centres and cafes to leisure uses.
- Each unit includes kitchenette and WCs.
Everything you need is within easy reach. Judds Place is within walking distance of a host of attractive amenities, from restaurants, a pub and coffee shops to retailers such as Next, Marks & Spencer and Sainsbury's. If you want to exercise at lunchtime or after work, there is a network of
footpaths and cycle routes and a 24-hour Jetts Gym just metres away.
Be part of Tollgate's bright future. Judds Place is perfectly placed for the next compelling phase of development and is part of the much-anticipated Tollgate Village development, creating a thriving retail, leisure and business hub.
Whether you have a growing company or are an entrepreneur in need of premium and flexible space, Judds Place, Tollgate, offers an inspiring environment to support your vision.
A prestigious development by Tollgate Partnership Limited.
Brochures
Block A, Judds Place, Stanway, Colchester, Essex, CO3
NEAREST STATIONS
Distances are straight line measurements from the centre of the postcode- Marks Tey Station1.7 miles
- Colchester Station3.0 miles
- Colchester Town Station3.2 miles
Notes
Disclaimer - Property reference 5133a. The information displayed about this property comprises a property advertisement. Rightmove.co.uk makes no warranty as to the accuracy or completeness of the advertisement or any linked or associated information, and Rightmove has no control over the content. This property advertisement does not constitute property particulars. The information is provided and maintained by Nicholas Percival Commercial, Colchester. Please contact the selling agent or developer directly to obtain any information which may be available under the terms of The Energy Performance of Buildings (Certificates and Inspections) (England and Wales) Regulations 2007 or the Home Report if in relation to a residential property in Scotland.
Map data ©OpenStreetMap contributors.





