Residential development for sale
Brixton Hill
- PROPERTY TYPE
Residential Development
- BEDROOMS
10
- BATHROOMS
10
- SIZE
Ask agent
Description
Guide Price: £1,300,000
Full Planning Consent Granted | Part Refurbishment & Part New Build | Development-Ready Site
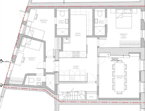
An exceptional opportunity to acquire a development site with full planning permission in place. Located in the desirable Rush Common Conservation Area, within Zone 2 Brixton Hill. This part-refurbishment, part-new build project is designed to deliver 10 premium studio apartments, perfectly suited for modern urban living in a high-demand location.
Key Features:
Full planning permission granted – ready for immediate start
Independent RICS lender valuation completed
10 self-contained studio units across three floors
Each unit includes a private shower room, kitchenette, and ergonomic layout
Retention of original late Georgian features
Purpose-built with a co-living design concept
Secure cycle storage and car club membership provision
Ground-floor refuse store with direct street access
All units exceed London and Lambeth minimum space standards
Location Highlights:
Situated in the vibrant heart of Brixton Hill, the site enjoys superb connectivity and local amenities:
15-minute walk to Brixton Underground Station (Victoria Line)
Bus stop directly outside the property
Proximity to green spaces: Rush Common, Brockwell Park, and Dumbarton Court Gardens
Nearby amenities include shops, cafés, playgrounds, and laundrettes
Finance & Delivery:
Development finance available from 10.5%, arranged via Landmark Specialist Finance
No delays – ready to commence immediately
Ideal for SME developers or seasoned investors
Site access via the rear of 1A New Park Road
All major pre-construction milestones completed
For planning documents, financial structuring, or to arrange a site inspection, contact Landmark Residential today.
Brochures
Brixton HillBrochureBrixton Hill
NEAREST STATIONS
Distances are straight line measurements from the centre of the postcode- Streatham Hill Station0.8 miles
- Herne Hill Station1.0 miles
- Brixton Underground Station1.0 miles

Notes
Disclaimer - Property reference 34077614. The information displayed about this property comprises a property advertisement. Rightmove.co.uk makes no warranty as to the accuracy or completeness of the advertisement or any linked or associated information, and Rightmove has no control over the content. This property advertisement does not constitute property particulars. The information is provided and maintained by Landmark Residential, Canary Wharf. Please contact the selling agent or developer directly to obtain any information which may be available under the terms of The Energy Performance of Buildings (Certificates and Inspections) (England and Wales) Regulations 2007 or the Home Report if in relation to a residential property in Scotland.
Map data ©OpenStreetMap contributors.





