Crown Street, Reading, Berkshire, RG1
- SIZE
Ask agent
- SECTOR
Mixed use property for sale
- USE CLASSUse class orders: A5 Hot Food Take away and Class E
A5, E
Key features
- Established Fish & Chips Shop
- Spacious premises with Four Bed Flat on two floors above
- Main Road Reading with good potential alternative development potential - Subject to Planning Permission
- 3 miles west of Reading Town Centre with a good surrounding catchment from both commercial and residential areas
- A Detached Mixed Use Property set back behind a deep forecourt with parking for up to two cars.
Description
DEVELOPMENT POTENTIAL AT REAR - SUBJECT TO PLANNING PERMISSION
Fish & Chips Shop (last operated 8 years ago) located on a busy main road approximately 3 miles west of Reading Town Centre with a good surrounding catchment from both commercial and residential areas.
A Detached Mixed Use Property set back behind a deep forecourt with parking for up to two cars.
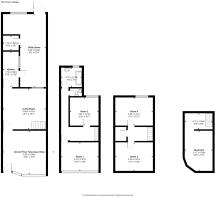
Ground Floor:- Single Fronted Shop (approx. 17'11" x 16'2" - 26m2 / 285sq.ft.) with fish and chips counter range (not tested), commercial potato peeler, industrial chip maker, aluminium kitchen wall cladding, security shutter. Living Room (approx. 15'06" x 11'06" - 16m2 / 175sq.ft. - double glazed). Inner Hall (side access). Breakfast Room / Kitchen (approx. 12'8" x 10' - 12m2 / 125sq.ft. - double glazed) with fitted cupboards and walk-in pantry.
First Floor:- Bedroom One (approx. 17'11" x 15'10" - 26m2 / 280sq.ft. - double glazed). Bedroom Two (approx. 16'1" x 11'6" - 17m2 / 280sq.ft. - double glazed). Bathroom (approx. 6'2" x 5'10" - 3m2 / 35sq.ft. - double glazed) fitted bath, wash basin, toilet, tiled walls.
Semi-Basement (limited headroom):- Four areas adding up to around 400sq.ft. gross - was used as a preparation area for the Fish & Chip shop.
N.B. A new roof was fitted in July 2021.
OUTSIDE
Forecourt with parking area for two cars. Side access driveway (approx. 8' width) leading to a very large garden area to rear (approx. 5,900sq.ft.). Development potential subject to Planning Permission.
EPC RATING
E-123
RATEABLE VALUE
£6,700 (100% small business rate relief to eligible applicants).
NOTES
The property has been in the same ownership for more than 40 years. It has not been trading as a Fish & Chip Shop for circa 8 years.
Energy Performance Certificates
EPC 1Brochures
Crown Street, Reading, Berkshire, RG1
NEAREST STATIONS
Distances are straight line measurements from the centre of the postcode- Reading Station0.6 miles
- Reading West Station1.0 miles
- Reading Green Park Station2.1 miles
Notes
Disclaimer - Property reference DR1547. The information displayed about this property comprises a property advertisement. Rightmove.co.uk makes no warranty as to the accuracy or completeness of the advertisement or any linked or associated information, and Rightmove has no control over the content. This property advertisement does not constitute property particulars. The information is provided and maintained by Lansley Commercial, Reading. Please contact the selling agent or developer directly to obtain any information which may be available under the terms of The Energy Performance of Buildings (Certificates and Inspections) (England and Wales) Regulations 2007 or the Home Report if in relation to a residential property in Scotland.
Map data ©OpenStreetMap contributors.





