10 bedroom character property for sale
Drigg, Holmrook

- PROPERTY TYPE
Character Property
- BEDROOMS
10
- BATHROOMS
2
- SIZE
7,889 sq ft
733 sq m
- TENUREDescribes how you own a property. There are different types of tenure - freehold, leasehold, and commonhold.Read more about tenure in our glossary page.
Freehold
Key features
- Period 10 bedroomed former vicarage
- Over 7000sqft of living accommodation
- Standalone position off set from the road
- Retains many original features
- Original fire places, high ceilings
- Views to the Lakeland fells
- Extensive gardens and orchard, around 1.5 acres
- Original coach house and barn
- On the edge of the Lake District National Park
- Access to one of the most secluded beaches in the UK
Description
A Grand Victorian Residence Awaiting Your Vision!
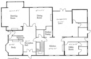
Steeped in history and character, this magnificent ten-bedroom Victorian former vicarage, dating back to 1894, presents an exceptional opportunity, with a coach house and barns offering further development potential (STP). Nestled within approximately 1.5 acres of beautiful grounds, the property boasts over 7,000 square feet of living space arranged over four floors, including a cellar.
Retaining a wealth of original features, including solid wood flooring and fireplaces, the residence exudes timeless elegance, but has been sensitively modernised by the present owner with gas central heating, double glazing, re-wiring and insulation. High ceilings and generously proportioned rooms further enhance the sense of grandeur. A central hallway with a sweeping staircase provides a captivating focal point.
The ground floor comprises three reception rooms, a kitchen, large conservatory, WC’s, two utility rooms, and a pantry. The first floor features a central landing, leading to six bedrooms, with a staircase ascending to the second floor, which accommodates a further four bedrooms. Bathrooms are conveniently located on each floor with five toilets in total. Front bedrooms enjoy picturesque views, while rear bedrooms offer stunning views of the Lakeland fells, including Scafell.
Externally, the property sits on a substantial plot with circular main driveway and a second drive to the side. The grounds encompass approximately 1.5 acres, featuring lawns, one with fountain, terraces, orchard, an original coach house, and outbuildings. Lapsed planning permission suggests potential for further development, subject to necessary consents.
In need of some minor renovation in parts, this distinguished property offers a unique opportunity for a discerning buyer to personalise and restore it to its former glory for those families looking for multi-generational living, income potential, commercial use (STP) or for those simply looking for a magnificent home in a beautiful location.
Services - Mains water, electric and gas
Septic tank
Location - Drigg is a lovely village nestled on the west coast of Cumbria between Whitehaven and Barrow. It has excellent transportation links via the west coast train service between Barrow and Carlisle. It is a stone’s throw away from the Lake District National Park, is within walking distance of a secluded beach and has easy access to the villages of Seascale and Gosforth for local shops and primary schools.
Epc & Council Tax - EPC - E
Council Tax - F
Please be aware that due to a limited number of EPC providers in Cumbria, there may be delays in obtaining Energy Performance Certificates (EPCs) for some properties. We anticipate receiving them within 7-14 days of the property's listing. If there are any further delays, we will update the property brochure with the expected availability of the EPC. Thank you for your understanding.
Disclaimer - These particulars, whilst believed to be accurate are set out as a general guideline and do not constitute any part of an offer or contract. Intending Purchasers should not rely on them as statements of representation of fact but must satisfy themselves by inspection or otherwise as to their accuracy. The services, systems, and appliances shown may not have been tested and has no guarantee as to their operability or efficiency can be given. All floor plans are created as a guide to the lay out of the property and should not be considered as a true depiction of any property and constitutes no part of a legal contract.
Brochures
Drigg, Holmrook- COUNCIL TAXA payment made to your local authority in order to pay for local services like schools, libraries, and refuse collection. The amount you pay depends on the value of the property.Read more about council Tax in our glossary page.
- Band: F
- PARKINGDetails of how and where vehicles can be parked, and any associated costs.Read more about parking in our glossary page.
- Yes
- GARDENA property has access to an outdoor space, which could be private or shared.
- Yes
- ACCESSIBILITYHow a property has been adapted to meet the needs of vulnerable or disabled individuals.Read more about accessibility in our glossary page.
- Ask agent
Drigg, Holmrook
Add an important place to see how long it'd take to get there from our property listings.
__mins driving to your place
Get an instant, personalised result:
- Show sellers you’re serious
- Secure viewings faster with agents
- No impact on your credit score
Your mortgage
Notes
Staying secure when looking for property
Ensure you're up to date with our latest advice on how to avoid fraud or scams when looking for property online.
Visit our security centre to find out moreDisclaimer - Property reference 34086673. The information displayed about this property comprises a property advertisement. Rightmove.co.uk makes no warranty as to the accuracy or completeness of the advertisement or any linked or associated information, and Rightmove has no control over the content. This property advertisement does not constitute property particulars. The information is provided and maintained by David Britton Estates, Penrith. Please contact the selling agent or developer directly to obtain any information which may be available under the terms of The Energy Performance of Buildings (Certificates and Inspections) (England and Wales) Regulations 2007 or the Home Report if in relation to a residential property in Scotland.
*This is the average speed from the provider with the fastest broadband package available at this postcode. The average speed displayed is based on the download speeds of at least 50% of customers at peak time (8pm to 10pm). Fibre/cable services at the postcode are subject to availability and may differ between properties within a postcode. Speeds can be affected by a range of technical and environmental factors. The speed at the property may be lower than that listed above. You can check the estimated speed and confirm availability to a property prior to purchasing on the broadband provider's website. Providers may increase charges. The information is provided and maintained by Decision Technologies Limited. **This is indicative only and based on a 2-person household with multiple devices and simultaneous usage. Broadband performance is affected by multiple factors including number of occupants and devices, simultaneous usage, router range etc. For more information speak to your broadband provider.
Map data ©OpenStreetMap contributors.





