Healthcare facility to lease
Boston West Business Park, Sleaford Road, Boston, Lincolnshire, PE21 8EG
- SIZE AVAILABLE
5,000 sq ft
465 sq m
- SECTOR
Healthcare facility to lease
Lease details
- Lease available date:
- Ask agent
Key features
- Medical Centre Available Leasehold Immediately with No Ingoing Premium
- Modern Medical Facility Available to Rent Immediately
- Extending to Around 5,000sqft, 465sqm Gross
- Parking for Over 20 Cars
- Located on High Profile Business Park
- Other Users Including Pharmacy, Creche, Hospital, Clinics
- Available To Let on New Sub-Lease on FRI Terms
Description
The bustling market town of Boston has a population of approximately 73,000 residents, a twice weekly market, large hospital and is one of the fastest growing towns in the East Midlands.
Boston West Business Park is located close to the town centre to the west of the marketplace off Sleaford Road.
To the north of the property is a large Asda supermarket, the property is located on a bespoke medical development sharing space with other medical related users.
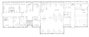
Accommodation...
Reception Area..................................3.8m x 2.5m, 9.8sqm
With an electric entrance door.
Waiting Area.......................................4m x 3.6m, 14.3sqm
Main Clinic........................................10.4m x 14m, 145sqm
Fitted out with sinks, computer compliant lighting, suspended ceilings
Partitioned Office.............................3.4m x 2.8m, 9.8sqm
Office...................................................3.5m x 2.6m, 9.1sqm
Amenity Area........................................2.6m x 2m, 5.3sqm
Store.............................................................................3sqm
Clinical Room....................................2.6m x 3.2m, 8.3sqm
Disposal Store......................................2m x 1.7m, 3.4sqm
Utility Room..........................................3m x 3.2m, 9.4sqm
Workshop Room.............................5.6m x 2.6m, 14.6sqm
Store........................................................5.4m x 5m, 26sqm
Water Treatment Room.................3.2m x 3.9m, 12.5sqm
Consulting Room...............................4.4m x 3.1m, 14sqm
Clinical Room......................................4.4m x 3m, 13.1sqm
Manager's Room............................4.4m x 2.8m...12.5sqm
Changing Room...............................4.4m x 2.5m, 11.3sqm
WC Male
WC Female
Changing Room.....................................................13.9sqm
Staffroom............................................4.4m x 4.4m, 20sqm
Kitchenette
Outside...
To the front of the property is a tarmacadam parking area for approximately 20 vehicles.
Tenure....
The property is available by way of a new Full Repairing and Insuring sub-lease with rent paid quarterly in advance.
Rent will be subject to VAT in addition to which will be levied a service charge for all communal roadways and areas.
Outgoings...
The property has a Rateable value of £29,750. Full details can be found on the VOA website.
EPC...
The property has an Energy Performance Asset Rating B35. Full details are available on request.
Energy Performance Certificates
EPC 1Brochures
Boston West Business Park, Sleaford Road, Boston, Lincolnshire, PE21 8EG
NEAREST STATIONS
Distances are straight line measurements from the centre of the postcode- Boston Station0.2 miles
- Hubberts Bridge Station3.2 miles
Notes
Disclaimer - Property reference ClinicBostonWestBusinessPark. The information displayed about this property comprises a property advertisement. Rightmove.co.uk makes no warranty as to the accuracy or completeness of the advertisement or any linked or associated information, and Rightmove has no control over the content. This property advertisement does not constitute property particulars. The information is provided and maintained by Poyntons Consultancy Commercial, Lincolnshire Office. Please contact the selling agent or developer directly to obtain any information which may be available under the terms of The Energy Performance of Buildings (Certificates and Inspections) (England and Wales) Regulations 2007 or the Home Report if in relation to a residential property in Scotland.
Map data ©OpenStreetMap contributors.






