High street retail property for sale
Elizabethan Gallery, Brook Street, Wakefield, WF1 1QW
- SIZE AVAILABLE
2,681 sq ft
249 sq m
- SECTOR
High street retail property for sale
Key features
- Grade II Listed
- Open plan hall
- Galleried mezzanine level
- Kitchen and Wc facilities
- Excellent central location
- Located opposite Wakefield Exchange and Wakefield bus station
Description
An extremely rare opportunity has arisen to purchase one of Wakefield City Centre's most prestigious and renowned properties.
The Elizabethan Gallery dates back to the 16th Century and is a Grade II* Listed building originally forming the Grammar School of Wakefield founded by Royal Charter from Queen Elizabeth I. The property was most recently utilised as a community space until it became vacant several years ago.
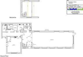
The accommodation is largely single storey comprising of an open plan hall which has a mezzanine galleried area above. A smaller hall, kitchen and ample Wc facilities are also included. The property boasts some of the original features includes exposed beams and trusses, exposed stonework, mullion windows and many other historical features.
The property would lend itself to a variety of uses such as restaurant/bar, leisure, place of worship, training centre, clinic, community centre to name but a few and subject to planning permission.
Please note, the grounds to the front and rear of the property including all grassed and paved areas are not included within the sale. The grounds would be available to let via a separate negotiation.
Bullets Points 1
Grade II Listed
Bullets Points 2
Open plan hall
Bullets Points 3
Galleried mezzanine level
Bullets Points 4
Kitchen and Wc facilities
Bullets Points 5
Excellent central location
Bullets Points 6
Located opposite Wakefield Exchange and Wakefield bus station
Brochures
Elizabethan Gallery, Brook Street, Wakefield, WF1 1QW
NEAREST STATIONS
Distances are straight line measurements from the centre of the postcode- Wakefield Westgate Station0.4 miles
- Wakefield Kirkgate Station0.5 miles
- Sandal & Agbrigg Station1.6 miles
Notes
Disclaimer - Property reference 6928FH. The information displayed about this property comprises a property advertisement. Rightmove.co.uk makes no warranty as to the accuracy or completeness of the advertisement or any linked or associated information, and Rightmove has no control over the content. This property advertisement does not constitute property particulars. The information is provided and maintained by Vickers Carnley, Wakefield. Please contact the selling agent or developer directly to obtain any information which may be available under the terms of The Energy Performance of Buildings (Certificates and Inspections) (England and Wales) Regulations 2007 or the Home Report if in relation to a residential property in Scotland.
Map data ©OpenStreetMap contributors.





