
Ackerman Street, Eaton Socon, St. Neots

- PROPERTY TYPE
Link Detached House
- BEDROOMS
3
- BATHROOMS
3
- SIZE
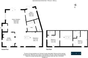
1,927 sq ft
179 sq m
- TENUREDescribes how you own a property. There are different types of tenure - freehold, leasehold, and commonhold.Read more about tenure in our glossary page.
Freehold
Key features
- SPECTACULAR 19TH-CENTURY HOME, METICULOUSLY REFURBISHED
- PRIME LOCATION OVERLOOKING A TRANQUIL GREEN
- EASY WALKING DISTANCE TO AMENITIES, POPULAR PUBS & RESTAURANTS, PARKS, AND RIVERSIDE WALKS
- SPACIOUS ENTRANCE HALL WITH BUILT-IN STORAGE
- DUAL-ASPECT OPEN-PLAN KITCHEN, DINING & FAMILY ROOM
- LARGE CENTRAL KITCHEN ISLAND WITH INTEGRATED APPLIANCES
- BI-FOLD DOORS OPENING TO GARDEN & PATIO
- SEPARATE UTILITY ROOM WITH ACCESS TO SHOWER ROOM & WC
- TWO INTERCONNECTING RECEPTION ROOMS, ONE WITH COSY GAS BURNER
- TWO DOUBLE BEDROOMS, EACH WITH EN-SUITE SHOWER ROOM
Description
Perfectly positioned in one of the area's most desirable locations, it enjoys views over a tranquil green and is within easy walking distance of an abundance of amenities, including popular pubs and restaurants, local parks, and picturesque riverside walks along the River Ouse.
Step inside through the spacious entrance hallway, where built-in storage keeps the space sleek and uncluttered. At the heart of the home lies a breath-taking dual-aspect, open-plan kitchen, dining, and family room. Expansive bi-fold doors invite natural light to pour in and open directly onto the rear garden and patio, creating a seamless indoor-outdoor flow. The beautifully designed kitchen features a substantial central island with integrated appliances and generous dining space, alongside a large bespoke storage unit for effortless organisation.
A separate utility room provides dedicated space for essential appliances and leads to a contemporary shower room and WC.
One of the reception rooms offers flexibility as a study, playroom, or an optional third bedroom. When used as a bedroom, this creates an excellent multi-generational living option for families seeking adaptable space.
Two additional reception rooms connect harmoniously - one a refined living area with a cosy gas burner, the other an inviting space perfect for relaxing or entertaining. A bespoke solid oak staircase with elegant, twisted spindle balusters leads to the first floor, where a generous landing awaits. This versatile space offers the perfect spot for a cosy reading nook, an additional lounging area, or even a dedicated workspace for those working from home.
Upstairs, two generously sized double bedrooms each enjoy their own luxurious en-suite shower room, offering comfort and privacy for residents and guests alike.
Outside, the private rear garden is both attractive and low-maintenance, complete with a patio for al fresco dining. Off-road parking is conveniently located to the rear of the property.
Tenure: Freehold
Brochures
Brochure- COUNCIL TAXA payment made to your local authority in order to pay for local services like schools, libraries, and refuse collection. The amount you pay depends on the value of the property.Read more about council Tax in our glossary page.
- Ask agent
- PARKINGDetails of how and where vehicles can be parked, and any associated costs.Read more about parking in our glossary page.
- Off street
- GARDENA property has access to an outdoor space, which could be private or shared.
- Private garden,Enclosed garden,Rear garden
- ACCESSIBILITYHow a property has been adapted to meet the needs of vulnerable or disabled individuals.Read more about accessibility in our glossary page.
- Ask agent
Energy performance certificate - ask agent
Ackerman Street, Eaton Socon, St. Neots
Add an important place to see how long it'd take to get there from our property listings.
__mins driving to your place
Get an instant, personalised result:
- Show sellers you’re serious
- Secure viewings faster with agents
- No impact on your credit score

Your mortgage
Notes
Staying secure when looking for property
Ensure you're up to date with our latest advice on how to avoid fraud or scams when looking for property online.
Visit our security centre to find out moreDisclaimer - Property reference RS0928. The information displayed about this property comprises a property advertisement. Rightmove.co.uk makes no warranty as to the accuracy or completeness of the advertisement or any linked or associated information, and Rightmove has no control over the content. This property advertisement does not constitute property particulars. The information is provided and maintained by Pirie Homes, St. Neots. Please contact the selling agent or developer directly to obtain any information which may be available under the terms of The Energy Performance of Buildings (Certificates and Inspections) (England and Wales) Regulations 2007 or the Home Report if in relation to a residential property in Scotland.
*This is the average speed from the provider with the fastest broadband package available at this postcode. The average speed displayed is based on the download speeds of at least 50% of customers at peak time (8pm to 10pm). Fibre/cable services at the postcode are subject to availability and may differ between properties within a postcode. Speeds can be affected by a range of technical and environmental factors. The speed at the property may be lower than that listed above. You can check the estimated speed and confirm availability to a property prior to purchasing on the broadband provider's website. Providers may increase charges. The information is provided and maintained by Decision Technologies Limited. **This is indicative only and based on a 2-person household with multiple devices and simultaneous usage. Broadband performance is affected by multiple factors including number of occupants and devices, simultaneous usage, router range etc. For more information speak to your broadband provider.
Map data ©OpenStreetMap contributors.





