High street retail property to lease
High Street, Southend-On-Sea, Essex, SS1
- SIZE AVAILABLE
2,554-9,817 sq ft
237-912 sq m
- SECTOR
High street retail property to lease
- USE CLASSUse class orders: Class E
E
Lease details
- Lease available date:
- Ask agent
- Lease type:
- Long term
Key features
- Prime location on the high street
- Currently fitted out for a retail use
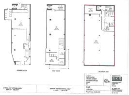
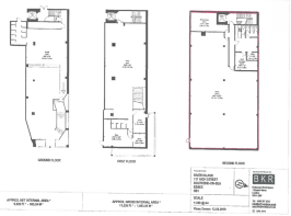
- Unit is spread over 3 floors
- Key adjacencies include Popeyes, JD, Barclays and EE
- Adjacent to Southend Central Train Station
Description
The subject premises are situated in the busiest section of the High Street, with nearby retailers including Greggs, Popeyes, JD, Barclays and EE.
The property provides the following approximate areas:-
Ground Floor: 2,554 sq ft 237.27 sq m
First Floor 2,593 sq ft 240.9 sq m
Second Floor: 4,670 sq ft 433.86 sq m
Total: 9,817 sq ft 912.03 sq m
Brochures
High Street, Southend-On-Sea, Essex, SS1
NEAREST STATIONS
Distances are straight line measurements from the centre of the postcode- Southend Central Station0.1 miles
- Southend Victoria Station0.3 miles
- Southend East Station0.8 miles
Notes
Disclaimer - Property reference HighStreetSouthend. The information displayed about this property comprises a property advertisement. Rightmove.co.uk makes no warranty as to the accuracy or completeness of the advertisement or any linked or associated information, and Rightmove has no control over the content. This property advertisement does not constitute property particulars. The information is provided and maintained by FMX Urban Property Advisers, FMX Urban Property Advisers. Please contact the selling agent or developer directly to obtain any information which may be available under the terms of The Energy Performance of Buildings (Certificates and Inspections) (England and Wales) Regulations 2007 or the Home Report if in relation to a residential property in Scotland.
Map data ©OpenStreetMap contributors.





