Land for sale
Plot At The Old Black Horse, Holbeach clough. PE12 8DJ
- SIZE AVAILABLE
2,906 sq ft
270 sq m
- SECTOR
Land for sale
Description
LOCATION
Plot of land with Full Planning Permission in established residential area -Site area approx 270m² -BNG requirement fulfilled on adjacent land
The plot is located on Roman Bank, Holbeach Clough, at the centre of the village, on the site of the Former Black Horse Pub. The village of Holbeach Clough is just 1 ½ miles north of Holbeach which has Primary and Secondary Schools and a good range of retail and leisure amenities. Long Sutton lies 5 miles east, and the market town of Spalding is 7 miles west of Holbeach where there are further extensive shopping and leisure facilities, and other Secondary Schools. Spalding lies 16 miles north of Peterborough which then provides good access and onward fast train to London Kings Cross (within 50 minutes).
DESCRIPTION
The site is owned by the South Holland Internal Drainage Board and has become surplus to requirements and is offered for fencing has already been erected on the east and south boundaries, and the site is presently Heras fenced to the front boundary.
The plot is that shown edged red in these particulars and has a frontage to the road of approximately 12m and an average depth of 28m. The plot narrows to 6 m at the rear. Overall the plot area extends to approximately 270m².
SERVICES
Mains electricity, water, drainage are understood to be available in Roman Bank, however purchasers are required to check the availability by making their own enquiries with the Utility providers.
TERMS
Conditions of Sale:
1. The purchaser will be responsible for fencing the western boundary of the plot and compliance with all Planning Conditions, and for all costs associated thereto.
2. The purchaser will contribute to the vendor´s legal costs for the sale, capped at £1,500 plus VAT.
3. The use of the site for siting permanent mobile homes, motorhomes or caravans will not be permitted
LEGAL COSTS
The purchaser will contribute to the vendor´s legal costs for the sale, capped at £1,500 plus VAT.
PLANNING
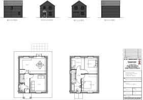
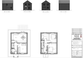
Full Planning consent has been granted by South Holland District Council Planning department for the development of the plot for a 3 bedroom detached house, without garage. Copies of the consented plans are overleaf. Ref H09-0844-24 dated 2 December 2024. Various conditions are attached to the planning consent, however the vendor confirms that the BNG requirements of the planning consent are being met on its retained land. The purchaser will be responsible for meeting all other conditions of the planning consent and costs associated with those. Any further queries in respect of Planning matters should be addressed direct to South Holland District Council - Planning Department - CALL: EMAIL:
VIEWING
At any time with a copy of Particulars to hand.
Brochures
Plot At The Old Black Horse, Holbeach clough. PE12 8DJ
NEAREST STATIONS
Distances are straight line measurements from the centre of the postcode- Spalding Station7.0 miles
Notes
Disclaimer - Property reference 101505031651. The information displayed about this property comprises a property advertisement. Rightmove.co.uk makes no warranty as to the accuracy or completeness of the advertisement or any linked or associated information, and Rightmove has no control over the content. This property advertisement does not constitute property particulars. The information is provided and maintained by Longstaff Chartered Surveyors, Spalding. Please contact the selling agent or developer directly to obtain any information which may be available under the terms of The Energy Performance of Buildings (Certificates and Inspections) (England and Wales) Regulations 2007 or the Home Report if in relation to a residential property in Scotland.
Map data ©OpenStreetMap contributors.






