
3 bedroom semi-detached house for sale
Barnby Road, Knaphill, Woking, Surrey, GU21

- PROPERTY TYPE
Semi-Detached
- BEDROOMS
3
- BATHROOMS
1
- SIZE
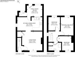
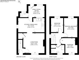
800 sq ft
74 sq m
- TENUREDescribes how you own a property. There are different types of tenure - freehold, leasehold, and commonhold.Read more about tenure in our glossary page.
Freehold
Key features
- Three Bedrooms
- Close to Bus Links Offering Easy Access to Woking Town Centre
- Close to Knaphill Village
- Two Reception Rooms
- Downstairs Cloakroom
- Large Rear Garden Offering Potential to Extend STPP
- Large Outbuilding With Power
- Driveway Providing Off Street Parking
Description
This three-bedroom semi-detached home offers three bedrooms and excellent potential to extend (subject to planning permission), making it an ideal opportunity for buyers looking to add value.
The ground floor comprises two reception rooms, a kitchen/dining room, and a convenient downstairs cloakroom. Upstairs, there are three bedrooms and a family bathroom.
To the rear, the property boasts a large garden, providing ample space for outdoor living and future development. A substantial outbuilding with power offers flexible use as a workshop, home office, or studio. To the front, a private driveway provides off-street parking for multiple vehicles.
Well located within easy reach of Knaphill village, local schools, amenities, and bus routes offering access to Woking town centre and mainline station, this property presents a great opportunity in a popular and well-connected area.
Location
Knaphill village has a vibrant range of shops, pubs and restaurants, including a Post Office. For more comprehensive shopping, Sainsbury's superstore is also close by. For commuting, Brookwood station provides a regular service direct to London Waterloo, Woking and Guildford. For those who enjoy the outdoors, Waterers Park and woodland are close by, which are ideal for dog walking or a family stroll.
Brochures
Particulars- COUNCIL TAXA payment made to your local authority in order to pay for local services like schools, libraries, and refuse collection. The amount you pay depends on the value of the property.Read more about council Tax in our glossary page.
- Band: D
- PARKINGDetails of how and where vehicles can be parked, and any associated costs.Read more about parking in our glossary page.
- Driveway,Off street
- GARDENA property has access to an outdoor space, which could be private or shared.
- Yes
- ACCESSIBILITYHow a property has been adapted to meet the needs of vulnerable or disabled individuals.Read more about accessibility in our glossary page.
- Ask agent
Barnby Road, Knaphill, Woking, Surrey, GU21
Add an important place to see how long it'd take to get there from our property listings.
__mins driving to your place
Get an instant, personalised result:
- Show sellers you’re serious
- Secure viewings faster with agents
- No impact on your credit score
Your mortgage
Notes
Staying secure when looking for property
Ensure you're up to date with our latest advice on how to avoid fraud or scams when looking for property online.
Visit our security centre to find out moreDisclaimer - Property reference KNA250334. The information displayed about this property comprises a property advertisement. Rightmove.co.uk makes no warranty as to the accuracy or completeness of the advertisement or any linked or associated information, and Rightmove has no control over the content. This property advertisement does not constitute property particulars. The information is provided and maintained by Seymours Estate Agents, Knaphill. Please contact the selling agent or developer directly to obtain any information which may be available under the terms of The Energy Performance of Buildings (Certificates and Inspections) (England and Wales) Regulations 2007 or the Home Report if in relation to a residential property in Scotland.
*This is the average speed from the provider with the fastest broadband package available at this postcode. The average speed displayed is based on the download speeds of at least 50% of customers at peak time (8pm to 10pm). Fibre/cable services at the postcode are subject to availability and may differ between properties within a postcode. Speeds can be affected by a range of technical and environmental factors. The speed at the property may be lower than that listed above. You can check the estimated speed and confirm availability to a property prior to purchasing on the broadband provider's website. Providers may increase charges. The information is provided and maintained by Decision Technologies Limited. **This is indicative only and based on a 2-person household with multiple devices and simultaneous usage. Broadband performance is affected by multiple factors including number of occupants and devices, simultaneous usage, router range etc. For more information speak to your broadband provider.
Map data ©OpenStreetMap contributors.





