
Land for sale
Quinta Drive, Barnet, EN5
- PROPERTY TYPE
Land
- SIZE
5,468 sq ft
508 sq m
Description
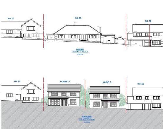
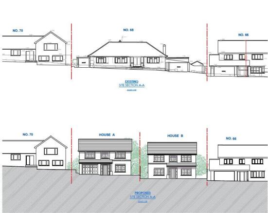
Full planning permission granted for the demolition of the existing dwelling and construction of 2 x four-bedroom, two-storey detached houses with private gardens, off-street parking, and refuse storage.
Planning Ref: 25/0841/FUL -
There will be a CIL liability of approx. £131,000.00
Martyn Gerrard`s New Homes team have advised of a GDV of £3,250,000-£3,500,000 once the properties have been built.
SItuated in the very desirable location of Arkely North London.
Arkley has always enjoyed a reputation as a highly desirable residential area, with a bustling town centre containing restaurants, shops and leisure spaces. Local amenities include the Spires Shopping Centre, Places of worship and Ravenscroft Lawn Tennis Club.
Transport links are excellent, with the A1, M1 and M25 being within a 5 minutes’ drive, and Stanstead and Luton Airports within a 30 minute drive.
Highly regarded schools such as Haberdashers’, Mill Hill, QE Boys, and Aldenham are all nearby, with many offering coach routes through Arkley.
Tenure : Freehold
A excellent opportunity for a developer or one wanting to build their dream homes.
Tenure: Freehold
Viewings are strictly by appointment only
Energy Performance Certificates
EPC Rating GraphQuinta Drive, Barnet, EN5
NEAREST STATIONS
Distances are straight line measurements from the centre of the postcode- High Barnet Station1.3 miles
- New Barnet Station2.2 miles
- Elstree & Borehamwood Station2.4 miles
Notes
Disclaimer - Property reference NEW250113. The information displayed about this property comprises a property advertisement. Rightmove.co.uk makes no warranty as to the accuracy or completeness of the advertisement or any linked or associated information, and Rightmove has no control over the content. This property advertisement does not constitute property particulars. The information is provided and maintained by Martyn Gerrard, Land & New Homes. Please contact the selling agent or developer directly to obtain any information which may be available under the terms of The Energy Performance of Buildings (Certificates and Inspections) (England and Wales) Regulations 2007 or the Home Report if in relation to a residential property in Scotland.
Map data ©OpenStreetMap contributors.








