
Manthorpe Chase, Manthorpe, Grantham

- PROPERTY TYPE
Semi-Detached
- BEDROOMS
3
- BATHROOMS
2
- SIZE
971 sq ft
90 sq m
Key features
- THE LIME
- THREE BED SEMI DETACHED HOUSE WITH DRIVEWAY & GARDEN
- SHARED OWNERSHIP PROPERTY - AVAILABLE TO PURCHASE NOW FROM 10% - 75% - PRICE SHOWN BASED ON 10% SHARE
- KITCHEN DINER WITH INTEGRATED OVEN, HOB & EXTRACTOR & PATIO DOORS
- SPACIOUS LOUNGE
- 3 BEDROOMS, 2 HAVING STORAGE & MASTER BEDROOM WITH ENSUITE - MODERN FAMILY BATHROOM
- "FITTED FLOORING THROUGHOUT"
Description
SUMMARY
The Lime - 3-Bed Semi Detched Home with Driveway & Gardens - with "FITTED FLOORING THROUGHOUT"
Available on a Shared Ownership Basis (10%-75%)
DESCRIPTION
The Lime - 3 Bedroom Semi Detached Home
£28,500 is a 10% shared ownership price, based on 100% value of the home at £285,000 (10-75% share available)
A beautifully presented 2-bed semi detached house built by Allison Homes, offering stylish, modern living in the thriving market town of Grantham.
Step inside the entrance hallway with storage, stairs & doors into the spacious lounge providing a relaxing retreat, with a TV point, the convenient downstairs WC & the heart of the home which is the contemporary kitchen diner, featuring a sleek kitchen with laminate worktops, integrated oven and hob, and vinyl flooring-perfect for both everyday meals & entertaining along with useful understairs storage
Upstairs, you'll find 3 well-proportioned bedrooms, ensuite to master & family bathroom with a three-piece suite & vinyl flooring. Two of the 3 bedrooms also benefit from built-in storage.
Outside, the property boasts a turfed rear garden, landscaped front garden, and a private driveway offering off-road parking
Location - Manthorpe, Grantham
Ideally located in the small historic settlement of Manthorpe less than 2 miles of the market town of Grantham, this home enjoys excellent transport links including direct rail services to London King's Cross and easy access to the A1. Grantham offers a range of amenities, reputable schools, supermarkets, parks, and leisure facilities-making it an ideal setting for families and professionals alike
Entrance Hallway
The spacious entrance hallway provides access to the Lounge, Kitchen Diner, cloakroom and staircase to the first floor.
Also benefitting from built in storage.
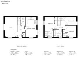
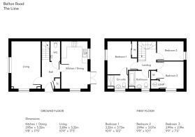
Lounge 10' 9" x 17' 5" ( 3.28m x 5.31m )
A spacious lounge with dual aspect windows to the front & side aspects. The room also includes a TV point, making it perfect for relaxing.
Kitchen Diner 9' 8" x 17' 5" ( 2.95m x 5.31m )
The kitchen features a stylish sleek design, complete with integrated oven, hob, and extractor. A laminate worktop and coordinating splashback add a modern touch, while a stainless steel sink with mixer tap provides practicality. There is space for a fridge freezer and washing machine, and the room is finished with durable vinyl flooring. Patio doors open out to the rear garden, creating a light and airy space perfect for everyday living and entertaining
Cloakroom
The cloakroom is fitted with a contemporary white two-piece suite comprising a wash hand basin & WC, complemented by stylish vinyl flooring.
First Floor Landing
Giving access to all bedrooms & family bathroom
Bedroom One 10' 9" x 12' 2" ( 3.28m x 3.71m )
A spacious master bedroom featuring window to the side aspect and benefiting from built-in storage for added convenience and access into the en-suite.
En-Suite
The en-suite is fitted with a contemporary three-piece suite comprising a shower, wash basin, and WC, all complemented by modern chrome taps. Stylish floor-to-ceiling tiling surrounds the shower, with a tiled splashback to the wash basin and windowsill. The room is finished with practical vinyl flooring for a clean, modern look
Bedroom Two 9' 9" x 10' 1" ( 2.97m x 3.07m )
Having a window to the front aspect and built in storage.
Bedroom Three 9' 9" x 7' 2" ( 2.97m x 2.18m )
Having a window to the side aspect
Family Bathroom
The family bathroom is fitted with a contemporary three-piece suite comprising a bath, wash basin, and WC, all complemented by modern chrome taps. Stylish tiled splashback to the wash basin and windowsill. The room is finished with practical vinyl flooring for a clean, modern look
Exterior
To the front, the property features a landscaped garden creating a welcoming entrance. The fully enclosed rear garden is laid to lawn and bordered by timber fencing, offering a safe and private outdoor space. A driveway provides off-road parking for two vehicles. Additional features include PIR sensor lighting to the front and rear, and a mains-powered doorbell for added convenience and security
Shared Ownership
Shared Ownership is a great way for you to get a foot on the property ladder if you can't afford to buy a home outright on the open market. It can ease the pressure of needing to save for a large deposit, or having to make high mortgage repayments.
Essentially, it means you'll be buying a share of your home - usually up to 75% - and paying an affordable rent on the remainder. When you're in a position to do so, it's also possible to buy further shares in your home. This is known as Staircasing.
Shares are available from 10% to 75%. Please see example prices and rents listed below
10% Share - Purchase Price £28,500 - Rent Charges of £587.81
25% Share - Purchase Price £71,250 - Rent Charges of £489.84
50% Share - Purchase Price £142,500 - Rent Charges of £326.56
75% Share - Purchase Price £213,750 - Rent Charges of £163.28
Full Property Value - £285,000
Service Charges
A monthly service charge of £49.12 will apply.
This will include building insurance, ground maintenance and the management charge
Agents Notes
Please note these homes are in a Designated Protected Area and will therefore have relevant provisions in the Lease. For further information please speak to a member of the sales team
Local connection requirement , please speak to a member of the sales team. In the long description to help if that's best suited.
Agents Note 1:
'The images used are not of the plot or flooring spec itself and are intended as a demonstration only'
Lease details are currently being compiled. For further information please contact the branch. Please note additional fees could be incurred for items such as leasehold packs.
1. MONEY LAUNDERING REGULATIONS: Intending purchasers will be asked to produce identification documentation at a later stage and we would ask for your co-operation in order that there will be no delay in agreeing the sale.
2. General: While we endeavour to make our sales particulars fair, accurate and reliable, they are only a general guide to the property and, accordingly, if there is any point which is of particular importance to you, please contact the office and we will be pleased to check the position for you, especially if you are contemplating travelling some distance to view the property.
3. The measurements indicated are supplied for guidance only and as such must be considered incorrect.
4. Services: Please note we have not tested the services or any of the equipment or appliances in this property, accordingly we strongly advise prospective buyers to commission their own survey or service reports before finalising their offer to purchase.
5. THESE PARTICULARS ARE ISSUED IN GOOD FAITH BUT DO NOT CONSTITUTE REPRESENTATIONS OF FACT OR FORM PART OF ANY OFFER OR CONTRACT. THE MATTERS REFERRED TO IN THESE PARTICULARS SHOULD BE INDEPENDENTLY VERIFIED BY PROSPECTIVE BUYERS OR TENANTS. NEITHER SEQUENCE (UK) LIMITED NOR ANY OF ITS EMPLOYEES OR AGENTS HAS ANY AUTHORITY TO MAKE OR GIVE ANY REPRESENTATION OR WARRANTY WHATEVER IN RELATION TO THIS PROPERTY.
Brochures
Full Details- COUNCIL TAXA payment made to your local authority in order to pay for local services like schools, libraries, and refuse collection. The amount you pay depends on the value of the property.Read more about council Tax in our glossary page.
- Band: TBC
- PARKINGDetails of how and where vehicles can be parked, and any associated costs.Read more about parking in our glossary page.
- Driveway
- GARDENA property has access to an outdoor space, which could be private or shared.
- Back garden
- ACCESSIBILITYHow a property has been adapted to meet the needs of vulnerable or disabled individuals.Read more about accessibility in our glossary page.
- Ask agent
Energy performance certificate - ask agent
Manthorpe Chase, Manthorpe, Grantham
Add an important place to see how long it'd take to get there from our property listings.
__mins driving to your place
Get an instant, personalised result:
- Show sellers you’re serious
- Secure viewings faster with agents
- No impact on your credit score
Affordability
Notes
Staying secure when looking for property
Ensure you're up to date with our latest advice on how to avoid fraud or scams when looking for property online.
Visit our security centre to find out moreDisclaimer - Property reference GST113566. The information displayed about this property comprises a property advertisement. Rightmove.co.uk makes no warranty as to the accuracy or completeness of the advertisement or any linked or associated information, and Rightmove has no control over the content. This property advertisement does not constitute property particulars. The information is provided and maintained by William H. Brown, Grantham. Please contact the selling agent or developer directly to obtain any information which may be available under the terms of The Energy Performance of Buildings (Certificates and Inspections) (England and Wales) Regulations 2007 or the Home Report if in relation to a residential property in Scotland.
*This is the average speed from the provider with the fastest broadband package available at this postcode. The average speed displayed is based on the download speeds of at least 50% of customers at peak time (8pm to 10pm). Fibre/cable services at the postcode are subject to availability and may differ between properties within a postcode. Speeds can be affected by a range of technical and environmental factors. The speed at the property may be lower than that listed above. You can check the estimated speed and confirm availability to a property prior to purchasing on the broadband provider's website. Providers may increase charges. The information is provided and maintained by Decision Technologies Limited. **This is indicative only and based on a 2-person household with multiple devices and simultaneous usage. Broadband performance is affected by multiple factors including number of occupants and devices, simultaneous usage, router range etc. For more information speak to your broadband provider.
Map data ©OpenStreetMap contributors.







