6 bedroom detached house for sale
Cowden, Kent

- PROPERTY TYPE
Detached
- BEDROOMS
6
- BATHROOMS
2
- SIZE
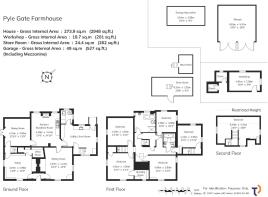
2,948 sq ft
274 sq m
- TENUREDescribes how you own a property. There are different types of tenure - freehold, leasehold, and commonhold.Read more about tenure in our glossary page.
Freehold
Key features
- **NO ONWARD CHAIN**
- Detached Grade II Listed Farmhouse
- Semi-rural location on the edge of Cowden
- Kitchen/Breakfast room
- Large boot/utility room
- 3 Reception rooms
- Cloakroom
- 6 Bedrooms
- 2 Bathrooms
- Detached timber double garage
Description
Situation
The property lies within the High Weald National Landscape in a glorious semi-rural location on the edge of Cowden. Cowden is a pretty Kentish village home to two public houses and plenty of lovely walks across surrounding countryside. Cowden mainline station (1 mile by road) is within a 15 minute walk from the property via a woodland path, with regular trains to London Bridge in less than an hour. Edenbridge and East Grinstead provide a range of local shopping facilities and recreational amenities with further rail services to London. Tunbridge Wells is also within easy reach. A wide range of state and private schools are available locally including Hever CofE Primary and Chiddingstone CofE Primary, Brambletye, Worth and Lingfield College. There are numerous golf courses nearby including Sweetwoods and Holtye and the Ashdown Forest is within 5.3 miles.
Description
Pyle Gate Farmhouse is a charming Grade II listed property with original parts dating from the 18th century. The property, whilst sympathetically improved by the current owners, retains some beautiful character features including some box shutters, inglenook fireplaces and sash windows. The original timber frame and half tile hung farmhouse with its later extensions now offers the ideal layout for a family with exceptionally well proportioned rooms in an idyllic setting with views over adjoining fields. The farmhouse kitchen is very much the heart of the home with handmade kitchen units, some open shelving, a dresser, Aga and space for a large dining table. The kitchen is complemented by a large utility/boot room which has a further range of units, an LPG gas hob, an electric combi oven, deep butler sink and a door through to a cloakroom which also offers space for a washing machine and tumble dryer. The dining room is the perfect entertaining space with an open fireplace and double doors lead to the garden. The double aspect sitting room is bright and airy with inglenook fireplace and wood burning stove, and the study/library, also with inglenook and Rayburn Rembrandt open fire, has built in floor to ceiling book shelving hiding a delightful ‘secret’ wine store. The first floor has been reconfigured and improved to offer five double bedrooms and two family bathrooms, whilst the second floor offers an attic bedroom, which has plumbing in place to create an ensuite, if required.
Outside
The property is approached via a private shared drive from Hartfield Road and leads to a gated, gravelled driveway. There is plenty of parking and a large detached timber double garage with power, lighting and mezzanine storage area. There are further brick and timber outbuildings which offer storage space and potential for alternative uses (subject to all necessary consents). The partly walled garden wraps around three sides of the property, punctuated with lime trees and numerous flower bed and shrub borders to the front, with an apple orchard, a whimsical tree house, children’s swings and terraced area with views across farmland to the rear.
Tenure & Possession
The property is offered freehold with vacant possession on completion.
Services (Not tested and therefore not warrantied)
Mains water and electricity are connected. Drainage to a private shared system. Oil fired central heating to radiators.
According to Ofcom.org, the property is able to access standard and ultrafast speed broadband. Buyers should satisfy themselves as to the broadband availability to the house to ensure it meets their needs.
Fixtures & Fittings
All fixtures, fittings and chattels whether referred to or not are specifically excluded from the sale.
Town & Country Planning
The property (not withstanding any description contained in these particulars) is sold subject to any existing Town & Country Planning legislation and to any development plan, resolution or notice which may be in force and also subject to any statutory provisions or by-laws without any obligation on the part of the Vendor or his Agents to specify them.
Local Authorities
Sevenoaks District Council . Kent County Council .
Council Tax & EPC
Council Tax - Band G £3,933.73 (2025/2026) EPC – Exempt, being Grade II listed.
Brochures
Particulars- COUNCIL TAXA payment made to your local authority in order to pay for local services like schools, libraries, and refuse collection. The amount you pay depends on the value of the property.Read more about council Tax in our glossary page.
- Band: G
- LISTED PROPERTYA property designated as being of architectural or historical interest, with additional obligations imposed upon the owner.Read more about listed properties in our glossary page.
- Listed
- PARKINGDetails of how and where vehicles can be parked, and any associated costs.Read more about parking in our glossary page.
- Garage,Driveway,Off street,Private
- GARDENA property has access to an outdoor space, which could be private or shared.
- Yes
- ACCESSIBILITYHow a property has been adapted to meet the needs of vulnerable or disabled individuals.Read more about accessibility in our glossary page.
- No wheelchair access
Energy performance certificate - ask agent
Cowden, Kent
Add an important place to see how long it'd take to get there from our property listings.
__mins driving to your place
Get an instant, personalised result:
- Show sellers you’re serious
- Secure viewings faster with agents
- No impact on your credit score


Your mortgage
Notes
Staying secure when looking for property
Ensure you're up to date with our latest advice on how to avoid fraud or scams when looking for property online.
Visit our security centre to find out moreDisclaimer - Property reference RWS250060. The information displayed about this property comprises a property advertisement. Rightmove.co.uk makes no warranty as to the accuracy or completeness of the advertisement or any linked or associated information, and Rightmove has no control over the content. This property advertisement does not constitute property particulars. The information is provided and maintained by RH & RW Clutton, East Grinstead. Please contact the selling agent or developer directly to obtain any information which may be available under the terms of The Energy Performance of Buildings (Certificates and Inspections) (England and Wales) Regulations 2007 or the Home Report if in relation to a residential property in Scotland.
*This is the average speed from the provider with the fastest broadband package available at this postcode. The average speed displayed is based on the download speeds of at least 50% of customers at peak time (8pm to 10pm). Fibre/cable services at the postcode are subject to availability and may differ between properties within a postcode. Speeds can be affected by a range of technical and environmental factors. The speed at the property may be lower than that listed above. You can check the estimated speed and confirm availability to a property prior to purchasing on the broadband provider's website. Providers may increase charges. The information is provided and maintained by Decision Technologies Limited. **This is indicative only and based on a 2-person household with multiple devices and simultaneous usage. Broadband performance is affected by multiple factors including number of occupants and devices, simultaneous usage, router range etc. For more information speak to your broadband provider.
Map data ©OpenStreetMap contributors.




