Bar / nightclub to lease
42 Boutport Street, Barnstaple, Devon, EX31
- SIZE AVAILABLE
4,630 sq ft
430 sq m
- SECTOR
Bar / nightclub to lease
- USE CLASSUse class orders: Sui Generis
sui_generis_3
Lease details
- Lease available date:
- Ask agent
- Lease type:
- Long term
- Furnish type:
- Unfurnished
Key features
- Comprises large former nightclub/bar at first floor with 2-bedroom owners flat at second floor
- VAT is NOT applicable to this property
- Available from 18th June 2025 on a new lease with flexible terms
- Situated in the heart of the town centre
Description
Comprises large former nightclub/bar at first floor with 2-bedroom owners flat at second floor
VAT is NOT applicable to this property
Available from 18th June 2025 on a new lease with flexible terms
Landlord may be open to a short rent-free period to allow the right tenant to get into this property and get the business up and running prior to full rent becoming payable. Subject to contract and passing suitable referencing.
Barnstaple is the main commercial, administrative and economic centre of North Devon and a popular tourist destination on the North Devon coast
The property is situated in the heart of the town centre with occupiers nearby including Coral, Barclays, Estate Agents, Halfords Autocentre, Barnstaple Market and large public car park.
Property Description:
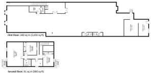
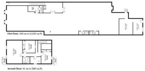
Comprises large former nightclub/bar at first floor with 2-bed owners flat at second floor. The property is accessed from ground floor entrance, situated on the main retail parade, providing the following accommodation and dimensions:
First Floor: 340 sq m (3,650 sq ft)
Open plan bar/nightclub, cellar, storage, office, wc`s
Second Floor: 91 sq m (980 sq ft)
2 Bedrooms, kitchen/living, bathroom
Total GIA: 431 sq m (4,630 sq ft)
Terms:
Available on a new lease with terms to be agreed by negotiation
Rent Year 1: £461.54 per week (PCM: £2,000)
Rent Year 2-3: £576.92 per week (PCM: £2,500)
Deposit: £6,000 (3 Months)
Rateable Value:
Rateable Value - £7,700 p.a.
Rates Payable - £0*
*Note - Small business rates relief available (subject to terms)
EPC:
Certificate and further details available on request.
Location:
Barnstaple is the main commercial, administrative and economic centre of North Devon and a popular tourist destination on the North Devon coast, approximately 34 miles north-west of Exeter. The town is located on the A361, which provides a direct link to the M5 Motorway and the A377 to Exeter. Barnstaple Rail Station provides regular rail services to Exeter (1 hour 10 minutes fastest). The property is situated in the heart of the town centre with occupiers nearby including Coral, Barclays, Estate Agents, Halfords Autocentre, Barnstaple Market and large public car park (1 min walk).
Brochures
42 Boutport Street, Barnstaple, Devon, EX31
NEAREST STATIONS
Distances are straight line measurements from the centre of the postcode- Barnstaple Station0.5 miles
- Chapleton Station4.7 miles
Notes
Disclaimer - Property reference 42Boutport. The information displayed about this property comprises a property advertisement. Rightmove.co.uk makes no warranty as to the accuracy or completeness of the advertisement or any linked or associated information, and Rightmove has no control over the content. This property advertisement does not constitute property particulars. The information is provided and maintained by Blue Alpine, London. Please contact the selling agent or developer directly to obtain any information which may be available under the terms of The Energy Performance of Buildings (Certificates and Inspections) (England and Wales) Regulations 2007 or the Home Report if in relation to a residential property in Scotland.
Map data ©OpenStreetMap contributors.





