Quarryknowe Place, Bellshill, ML4

- PROPERTY TYPE
Terraced
- BEDROOMS
3
- BATHROOMS
1
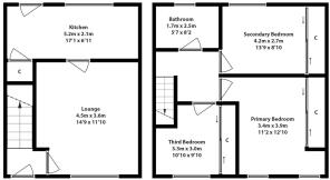
- SIZE
893 sq ft
83 sq m
- TENUREDescribes how you own a property. There are different types of tenure - freehold, leasehold, and commonhold.Read more about tenure in our glossary page.
Freehold
Key features
- Refurbished mid terrace villa
- Highly popular residential address
- Immaculate & fresh decor throughout
- Generous size lounge & bright
- Modern kitchen
- 3 great bedrooms
- White 3 piece bathroom with mains shower
- Low maintenance front & rear gardens
- Off street parking, double glazing & gas central heating
- Early viewing advised
Description
Beautifully Refurbished Mid-Terraced Villa in Popular Bellshill Location
This stunning externally and internally refurbished mid-terraced villa enjoys a sought-after position within a popular residential area of Bellshill. Freshly redecorated throughout, the property offers bright and generous accommodation over two levels, making it ideal for first-time buyers, families, or those looking to downsize.
A welcoming white PVC door opens into the entrance hallway with staircase to the upper landing and stylish laminate flooring flowing seamlessly throughout the ground floor. The spacious lounge is flooded with natural light, creating a warm and comfortable living space.
Particular mention goes to the upgraded modern kitchen, fitted with a quality range of wall and base units complemented by contemporary worktops. Appliances include a four-ring gas hob with extractor hood, oven/grill, and space for a washing machine, dishwasher, and fridge freezer. There is also access to a large understair storage cupboard and the fully enclosed rear garden.
Upstairs, all bedrooms are generously proportioned and offer ample space for freestanding furniture. The refitted bathroom features a modern white three-piece suite with mains shower, finished in easy-maintenance wet-wall panelling.
Externally, the property boasts low-maintenance gardens to the front and rear, with off-street parking to the front. Additional features include double glazing, gas central heating, and the potential—seen in neighbouring homes—to extend into the sizeable attic space, subject to relevant consents.
Internal viewing is highly recommended to fully appreciate the quality, space, and style this home offers.
Brochures
Home Report- COUNCIL TAXA payment made to your local authority in order to pay for local services like schools, libraries, and refuse collection. The amount you pay depends on the value of the property.Read more about council Tax in our glossary page.
- Band: C
- PARKINGDetails of how and where vehicles can be parked, and any associated costs.Read more about parking in our glossary page.
- Yes
- GARDENA property has access to an outdoor space, which could be private or shared.
- Yes
- ACCESSIBILITYHow a property has been adapted to meet the needs of vulnerable or disabled individuals.Read more about accessibility in our glossary page.
- Ask agent
Energy performance certificate - ask agent
Quarryknowe Place, Bellshill, ML4
Add an important place to see how long it'd take to get there from our property listings.
__mins driving to your place
Get an instant, personalised result:
- Show sellers you’re serious
- Secure viewings faster with agents
- No impact on your credit score
Your mortgage
Notes
Staying secure when looking for property
Ensure you're up to date with our latest advice on how to avoid fraud or scams when looking for property online.
Visit our security centre to find out moreDisclaimer - Property reference e4a8fb36-a899-4c2b-92fb-7f3fb4111c1a. The information displayed about this property comprises a property advertisement. Rightmove.co.uk makes no warranty as to the accuracy or completeness of the advertisement or any linked or associated information, and Rightmove has no control over the content. This property advertisement does not constitute property particulars. The information is provided and maintained by Housespotters Estate Agents, Covering Central Belt. Please contact the selling agent or developer directly to obtain any information which may be available under the terms of The Energy Performance of Buildings (Certificates and Inspections) (England and Wales) Regulations 2007 or the Home Report if in relation to a residential property in Scotland.
*This is the average speed from the provider with the fastest broadband package available at this postcode. The average speed displayed is based on the download speeds of at least 50% of customers at peak time (8pm to 10pm). Fibre/cable services at the postcode are subject to availability and may differ between properties within a postcode. Speeds can be affected by a range of technical and environmental factors. The speed at the property may be lower than that listed above. You can check the estimated speed and confirm availability to a property prior to purchasing on the broadband provider's website. Providers may increase charges. The information is provided and maintained by Decision Technologies Limited. **This is indicative only and based on a 2-person household with multiple devices and simultaneous usage. Broadband performance is affected by multiple factors including number of occupants and devices, simultaneous usage, router range etc. For more information speak to your broadband provider.
Map data ©OpenStreetMap contributors.




