
Panfield Road, Bocking, Braintree, CM7 5BJ

- PROPERTY TYPE
Link Detached House
- BEDROOMS
4
- SIZE
Ask developer
- TENUREDescribes how you own a property. There are different types of tenure - freehold, leasehold, and commonhold.Read more about tenure in our glossary page.
Ask developer
Key features
- Impressive home over 2,000sq.ft
- Show Home now open!
- Bi-fold doors to the rear garden
- Integrated garage with driveway parking
- Four spacious double bedrooms
- Estimate Move-in March - May 2026
- Tenure: Freehold
- 10-Year Premier warranty for stress-free living & 2-Year warranty from a 5* HBF house builder
Description
Tailor Made Package! Reserve Home 19 before April 30th and receive £20,000 towards a tailor made package! How about a kitchen upgrade? Or help towards your deposit or Stamp Duty? Let's tailor your perfect home buying package today.
Want to hear the tale about extra space? There’s 3 storeys to choose from. More room. Better value for money. Discover your 3 storey home at Birch Park today.
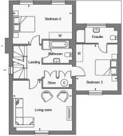
With living accommodation over 3 floors, The Cambridge is a stunning link-detached family home that features an open-plan kitchen-dining area on the ground floor with bi-fold doors to the rear garden. There is also a spacious study and a separate utility room with access to the garage. The hallway features a cloakroom and several storage provisions.
The first floor features a light and airy living room, and 2 double bedrooms, 1 with an ensuite shower room. There’s also a stylish family bathroom along with additional storage off the landing. On the second floor are 2 further double bedrooms both with ensuite shower rooms. Bedroom 1 includes fitted mirrored wardrobes as well. This level is complete with additional storage cupboards.
Outside, The Cambridge benefits from an integrated garage, driveway parking and private turfed rear garden.
Skip the chains and move faster with Part Exchange – your brand new, energy-efficient home awaits at Birch Park.
Plot Number: Home 19
Tenure: Freehold
Council Tax band : TBC
Please speak to a member of the sales team for full offer T&C's.
Homes shown: 14, 16, 18 & 20. Homes handed 13, 15, 17, 19 & 15. *Chimney to 13 & 20. **Plans differ for 151 & 152
Prices and details are correct at the time of distribution. All images, videos and virtual tours shown may be from another Dandara development and are for illustrative purposes only. Dimensions, specifications and details may vary and are subject to change.
- COUNCIL TAXA payment made to your local authority in order to pay for local services like schools, libraries, and refuse collection. The amount you pay depends on the value of the property.Read more about council Tax in our glossary page.
- Ask developer
- PARKINGDetails of how and where vehicles can be parked, and any associated costs.Read more about parking in our glossary page.
- Yes
- GARDENA property has access to an outdoor space, which could be private or shared.
- Yes
- ACCESSIBILITYHow a property has been adapted to meet the needs of vulnerable or disabled individuals.Read more about accessibility in our glossary page.
- Ask developer
Energy performance certificate - ask developer
- Superb 3 & 4 bedroom Show Home now open
- Exclusive offers saving you thousands
- New homes ready to move into for Summer 2023
- Stylish open-plan living areas and relaxing private gardens
Panfield Road, Bocking, Braintree, CM7 5BJ
Add an important place to see how long it'd take to get there from our property listings.
__mins driving to your place
Get an instant, personalised result:
- Show sellers you’re serious
- Secure viewings faster with agents
- No impact on your credit score
About Dandara Eastern
Show Home & Marketing Suite now open.
Introducing Birch Park, our brand-new collection of houses for sale in Braintree, Essex. Our beautiful 2, 3, 4 and 5 bedroom new homes in Essex, are tucked away in quiet cul-de-sacs with big development plans in store for the community.
With open-plan living spaces, double bedrooms, spacious relaxing gardens, plus EV charging points and solar PV panels included on selected homes, these new build homes are designed with growing families and their future in mind.
If you are looking for a new family home in Braintree, our brand-new development Birch Park should be at the top of your list. Residents can expect retail spaces, play areas, an on-site nursey and vast open green space, creating the perfect space to raise a family in.
Want to learn more this new build homes in Essex? Get in touch with our sales team today.
Affordability
Notes
Staying secure when looking for property
Ensure you're up to date with our latest advice on how to avoid fraud or scams when looking for property online.
Visit our security centre to find out moreDisclaimer - Property reference 4_the_cambridge_home_19. The information displayed about this property comprises a property advertisement. Rightmove.co.uk makes no warranty as to the accuracy or completeness of the advertisement or any linked or associated information, and Rightmove has no control over the content. This property advertisement does not constitute property particulars. The information is provided and maintained by Dandara Eastern. Please contact the selling agent or developer directly to obtain any information which may be available under the terms of The Energy Performance of Buildings (Certificates and Inspections) (England and Wales) Regulations 2007 or the Home Report if in relation to a residential property in Scotland.
*This is the average speed from the provider with the fastest broadband package available at this postcode. The average speed displayed is based on the download speeds of at least 50% of customers at peak time (8pm to 10pm). Fibre/cable services at the postcode are subject to availability and may differ between properties within a postcode. Speeds can be affected by a range of technical and environmental factors. The speed at the property may be lower than that listed above. You can check the estimated speed and confirm availability to a property prior to purchasing on the broadband provider's website. Providers may increase charges. The information is provided and maintained by Decision Technologies Limited. **This is indicative only and based on a 2-person household with multiple devices and simultaneous usage. Broadband performance is affected by multiple factors including number of occupants and devices, simultaneous usage, router range etc. For more information speak to your broadband provider.
Map data ©OpenStreetMap contributors.






