Uppingham Road, Houghton-On-The-Hill, Leicester

- PROPERTY TYPE
Semi-Detached
- BEDROOMS
2
- BATHROOMS
1
- SIZE
1,281 sq ft
119 sq m
- TENUREDescribes how you own a property. There are different types of tenure - freehold, leasehold, and commonhold.Read more about tenure in our glossary page.
Freehold
Key features
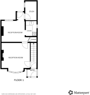
- Semi-Detached Property
- Two Reception Rooms
- Kitchen
- Study
- Two Bedrooms
- Bathroom
- Front & Rear Gardens
- Driveway & Garage
Description
For those looking to move to Houghton on the Hill or simply their next home then this could be the investment you have been seeking. A two bedroom semi-detached property benefitting from off road parking in the form of a driveway and a garage. The home features two reception rooms, a fitted kitchen and ground floor study. The first floor has two bedrooms and a bathroom. Outside enjoys front and rear gardens. For further information, please contact our office.
The property is well located for popular local schooling. There is also a nearby Coop and a wide range of amenities available in nearby Evington or Oadby Town Centres. The village is well served by bus links running to and from Leicester City Centre with its professional quarters and train station. Leicestershire’s rolling countryside is also within reach.
EPC Rating: E
Entrance Porch
With double glazed windows and door to the front elevation, tiled floor.
Entrance Hall
With tiled floor, stairs to first floor, radiator.
Reception Room One
3.77m x 3.36m
With double glazed bay window to the front elevation, multi-fuel burner, hearth, laminate floor, radiator.
Reception Room Two
3.19m x 2.85m
With double glazed window to the rear elevation, storage cupboards, laminate floor.
Kitchen
2.02m x 1.47m
With double glazed window to the side elevation, vinyl floor, wall and base units with work surface over, sink and drainer, gas cooker point, plumbing for washing machine, wood panel walls, radiator.
Lobby Area
With double glazed door to the rear elevation, tiled floor.
Study
2.49m x 1.49m
With double glazed window to the side elevation, wooden floor, electric heater.
First Floor Landing
With double glazed window to the side elevation, loft access, carpet floor.
Bedroom One
3.91m x 3.28m
With double glazed window to the front elevation, laminate floor, radiator.
Bedroom Two
3m x 2.99m
With double glazed window to the rear elevation, laminate floor, storage cupboard, radiator.
Bathroom
2.15m x 1.74m
With double glazed window to the rear elevation, laminate floor, bath with overhead electric shower, part tiled walls, wash hand basin with storage below, low-level WC, ladder towel rail/radiator.
Front Garden
With gravelled area, flowerbeds and shrubs, paved pathway.
Rear Garden
With paved patio area, pond, lawn, paved pathway, flowerbeds and shrubs, trees, gravelled area.
Parking - Driveway
Please note that parking is subject to vehicle size. Prospective purchasers should ensure the dimensions are suitable for their vehicle before relying on it for parking purposes.
Parking - Garage
With doors to the front and rear elevation. Please note that parking within the garage is subject to vehicle size. Prospective purchasers should ensure the dimensions are suitable for their vehicle before relying on it for parking purposes.
Disclaimer
Measurements are taken electronically and are for guidance only — not to be relied upon as exact. Services, appliances, and fittings have not been tested. Buyers must satisfy themselves through inspection. Floor plans are not to scale and are for layout guidance only. Knightsbridge Estate Agents make no warranties regarding the property. By law, we must carry out anti-money laundering checks for buyers and sellers. These are handled on our behalf by Lifetime Legal, who will contact you once you instruct us to sell or have an offer accepted. A £60 fee (incl. VAT) covers required data and any manual checks. This must be paid before we can publish your property (for vendors) or issue a memorandum of sale (for buyers). The fee is non-refundable and paid directly to Lifetime Legal. We receive a portion of this fee for facilitating the checks.
Brochures
Key Facts for BuyersProperty Brochure- COUNCIL TAXA payment made to your local authority in order to pay for local services like schools, libraries, and refuse collection. The amount you pay depends on the value of the property.Read more about council Tax in our glossary page.
- Band: B
- PARKINGDetails of how and where vehicles can be parked, and any associated costs.Read more about parking in our glossary page.
- Garage,Driveway
- GARDENA property has access to an outdoor space, which could be private or shared.
- Front garden,Rear garden
- ACCESSIBILITYHow a property has been adapted to meet the needs of vulnerable or disabled individuals.Read more about accessibility in our glossary page.
- Ask agent
Uppingham Road, Houghton-On-The-Hill, Leicester
Add an important place to see how long it'd take to get there from our property listings.
__mins driving to your place
Get an instant, personalised result:
- Show sellers you’re serious
- Secure viewings faster with agents
- No impact on your credit score



Your mortgage
Notes
Staying secure when looking for property
Ensure you're up to date with our latest advice on how to avoid fraud or scams when looking for property online.
Visit our security centre to find out moreDisclaimer - Property reference 0a3df837-457b-4881-9fa6-5f404b1bb5b1. The information displayed about this property comprises a property advertisement. Rightmove.co.uk makes no warranty as to the accuracy or completeness of the advertisement or any linked or associated information, and Rightmove has no control over the content. This property advertisement does not constitute property particulars. The information is provided and maintained by Knightsbridge Estate Agents & Valuers, Oadby. Please contact the selling agent or developer directly to obtain any information which may be available under the terms of The Energy Performance of Buildings (Certificates and Inspections) (England and Wales) Regulations 2007 or the Home Report if in relation to a residential property in Scotland.
*This is the average speed from the provider with the fastest broadband package available at this postcode. The average speed displayed is based on the download speeds of at least 50% of customers at peak time (8pm to 10pm). Fibre/cable services at the postcode are subject to availability and may differ between properties within a postcode. Speeds can be affected by a range of technical and environmental factors. The speed at the property may be lower than that listed above. You can check the estimated speed and confirm availability to a property prior to purchasing on the broadband provider's website. Providers may increase charges. The information is provided and maintained by Decision Technologies Limited. **This is indicative only and based on a 2-person household with multiple devices and simultaneous usage. Broadband performance is affected by multiple factors including number of occupants and devices, simultaneous usage, router range etc. For more information speak to your broadband provider.
Map data ©OpenStreetMap contributors.





