7 Eccles Court Stirling FK7 9AT

- PROPERTY TYPE
Flat
- BEDROOMS
2
- BATHROOMS
1
- SIZE
Ask agent
- TENUREDescribes how you own a property. There are different types of tenure - freehold, leasehold, and commonhold.Read more about tenure in our glossary page.
Freehold
Key features
- Immaculately Presented Retirement Flat
- Spacious layout
- Recently re-fitted kitchen and shower room
- Modern Electric Heating
- Ground Floor
Description
CLOSING DATE SET - WEDNESDAY 17TH SEPTEMBER 2025 AT 12 NOON
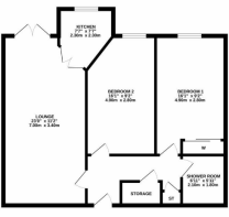
This immaculately presented flat offers a rare opportunity to purchase a ground floor, two bedroom apartment within this well-regarded retirement development.
The accommodation is accessed through am immacultely presented main door security entrance. The flat opens into a bight hallway with storage. A generous lounge is situated to the front of the building with patio doors allowing direct access to the communal gardens. An attractive kitchen with modern, contemporary, units has recently been installed. The two bedrooms are both double in size with the larger also benefiting from fitted wardrobe. Completeing the accommodation is a bright stylish shower room which has also been re-fitted to a high standard.
All rooms are presented in bright neutral decor and quality floor coverings have been fitted.
Double glazing has been installed and warmth is provided by a modern electric heating system. For security, each room is fitted with a pull-cord alarm system for 24-hour emergency call.
To the rear of the development are resident and visitor parking spaces.
The development itself has been immaculately maintained and offers residents access to a shared communal lounge and laundry room as well as attractive landscaped gardens.
Brochures
Web Details- COUNCIL TAXA payment made to your local authority in order to pay for local services like schools, libraries, and refuse collection. The amount you pay depends on the value of the property.Read more about council Tax in our glossary page.
- Band: E
- PARKINGDetails of how and where vehicles can be parked, and any associated costs.Read more about parking in our glossary page.
- Residents
- GARDENA property has access to an outdoor space, which could be private or shared.
- Yes
- ACCESSIBILITYHow a property has been adapted to meet the needs of vulnerable or disabled individuals.Read more about accessibility in our glossary page.
- Ask agent
7 Eccles Court Stirling FK7 9AT
Add an important place to see how long it'd take to get there from our property listings.
__mins driving to your place
Get an instant, personalised result:
- Show sellers you’re serious
- Secure viewings faster with agents
- No impact on your credit score
Your mortgage
Notes
Staying secure when looking for property
Ensure you're up to date with our latest advice on how to avoid fraud or scams when looking for property online.
Visit our security centre to find out moreDisclaimer - Property reference 107942. The information displayed about this property comprises a property advertisement. Rightmove.co.uk makes no warranty as to the accuracy or completeness of the advertisement or any linked or associated information, and Rightmove has no control over the content. This property advertisement does not constitute property particulars. The information is provided and maintained by Property Bureau, Stirling. Please contact the selling agent or developer directly to obtain any information which may be available under the terms of The Energy Performance of Buildings (Certificates and Inspections) (England and Wales) Regulations 2007 or the Home Report if in relation to a residential property in Scotland.
*This is the average speed from the provider with the fastest broadband package available at this postcode. The average speed displayed is based on the download speeds of at least 50% of customers at peak time (8pm to 10pm). Fibre/cable services at the postcode are subject to availability and may differ between properties within a postcode. Speeds can be affected by a range of technical and environmental factors. The speed at the property may be lower than that listed above. You can check the estimated speed and confirm availability to a property prior to purchasing on the broadband provider's website. Providers may increase charges. The information is provided and maintained by Decision Technologies Limited. **This is indicative only and based on a 2-person household with multiple devices and simultaneous usage. Broadband performance is affected by multiple factors including number of occupants and devices, simultaneous usage, router range etc. For more information speak to your broadband provider.
Map data ©OpenStreetMap contributors.






