
High Street, Markyate, AL3

- PROPERTY TYPE
Cottage
- BEDROOMS
2
- BATHROOMS
1
- SIZE
Ask agent
- TENUREDescribes how you own a property. There are different types of tenure - freehold, leasehold, and commonhold.Read more about tenure in our glossary page.
Freehold
Key features
- Beautifully presented 2 bedroom character cottage
- Open plan lounge kitchen dining room
- Luxuriously fitted first floor bathroom
- Two first floor bedrooms
- Useful loft area
- Private rear garden
- Tandem parking
- Viewing is highly recommended
- Call NOW to arrange a viewing
Description
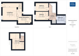
The ground floor is arranged with an open plan lounge kitchen dining room and stairs leading to the first floor. The kitchen is fitted with a range of matching shaker style wall and floor mounted units comprising both cupboards and drawers.
The first floor features with 2 bedrooms and a luxuriously fitted bathroom. The bathroom is fitted in white with chrome fittings and comprises a bath with a mixer tap with a shower over and a fitted shower screen, a wall hung wash hand basin, a low level WC a contemporary heated towel rail, colour coordinated tile walls and flooring. The first floor landing also offers access via a fixed stairs case to a useful loft space with two Velux window and eaves storage that the current owners use as an additional sleeping area although no building regulations are in place.
The rear garden is pleasantly private and along with the tandem allocated parking is access from the road to the rear of the property. The garden is arranged with a decked seating area, a paved pathway, an area laid to lawn and a garden shed.
The vendor has informed us that they are in the process of fitting a new gas boiler
Viewing is highly recommended to fully appreciate this unique character cottage.
Disclaimer
David Doyle Estate Agents (DD), for themselves and the vendors, give notice that: These particulars and floorplans are for general guidance only and do not form part of any offer or contract. All descriptions, dimensions, permissions, and other details are given in good faith but must be independently verified. Fixtures, fittings, services, plant and equipment noted were present at first inspection but have not been tested, and no warranty is given as to condition or suitability. Information on council tax, rates, or planning use is informal; purchasers or tenants must confirm with the Local Authority. No employee of DD has authority to make or give any representation or contract. DD accept no liability for loss arising from use of these particulars or from viewing the property. Prices are exclusive of VAT unless stated and are subject to contract. Some developments may have management charges; solicitors to confirm any liabilities.
- COUNCIL TAXA payment made to your local authority in order to pay for local services like schools, libraries, and refuse collection. The amount you pay depends on the value of the property.Read more about council Tax in our glossary page.
- Band: C
- PARKINGDetails of how and where vehicles can be parked, and any associated costs.Read more about parking in our glossary page.
- Yes
- GARDENA property has access to an outdoor space, which could be private or shared.
- Yes
- ACCESSIBILITYHow a property has been adapted to meet the needs of vulnerable or disabled individuals.Read more about accessibility in our glossary page.
- Ask agent
High Street, Markyate, AL3
Add an important place to see how long it'd take to get there from our property listings.
__mins driving to your place
Get an instant, personalised result:
- Show sellers you’re serious
- Secure viewings faster with agents
- No impact on your credit score


Affordability
Notes
Staying secure when looking for property
Ensure you're up to date with our latest advice on how to avoid fraud or scams when looking for property online.
Visit our security centre to find out moreDisclaimer - Property reference RX609172. The information displayed about this property comprises a property advertisement. Rightmove.co.uk makes no warranty as to the accuracy or completeness of the advertisement or any linked or associated information, and Rightmove has no control over the content. This property advertisement does not constitute property particulars. The information is provided and maintained by David Doyle Estate Agents, Boxmoor. Please contact the selling agent or developer directly to obtain any information which may be available under the terms of The Energy Performance of Buildings (Certificates and Inspections) (England and Wales) Regulations 2007 or the Home Report if in relation to a residential property in Scotland.
*This is the average speed from the provider with the fastest broadband package available at this postcode. The average speed displayed is based on the download speeds of at least 50% of customers at peak time (8pm to 10pm). Fibre/cable services at the postcode are subject to availability and may differ between properties within a postcode. Speeds can be affected by a range of technical and environmental factors. The speed at the property may be lower than that listed above. You can check the estimated speed and confirm availability to a property prior to purchasing on the broadband provider's website. Providers may increase charges. The information is provided and maintained by Decision Technologies Limited. **This is indicative only and based on a 2-person household with multiple devices and simultaneous usage. Broadband performance is affected by multiple factors including number of occupants and devices, simultaneous usage, router range etc. For more information speak to your broadband provider.
Map data ©OpenStreetMap contributors.






